




Location Bureau 3 869 m²
33800 Bordeaux
3 869 m²
Divisible dès 137 m²
250 €
HT/HC/m²/an
Disponibilité : 31/12/2025

LAURA MOURGUIART
Description
Locaux de santé à louer à Bordeaux Euratlantique – Programme HEKA
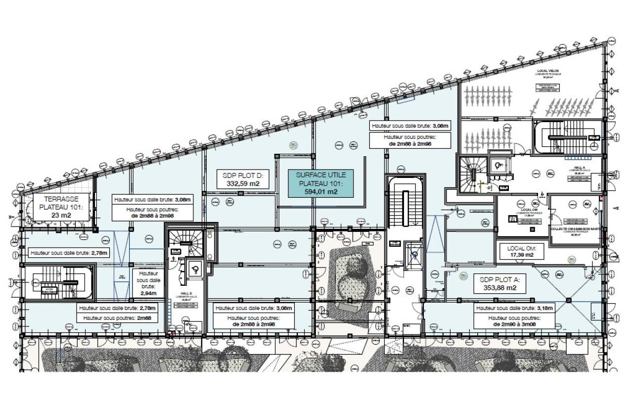
Au cœur de l’Opération d’Intérêt National Bordeaux Euratlantique et à proximité immédiate de la gare Saint-Jean, le projet HEKA s’assoit sur un socle de 3 niveaux formés par un pôle santé de 3 500 m².
Cet ensemble immobilier bénéficie d’un classement SPIC adapté aux activité de santé. Des commerces, une crèche et un restaurant viennent compléter l’offre de services disponible au sein de l’immeuble.
BNP Paribas Real Estate vous invite à découvrir HEKA, un programme tertiaire neuf à louer, situé sur la Promenade des Forges, à moins de 10 minutes à pied de la Gare Bordeaux Saint-Jean. Implanté dans le quartier Euratlantique, en pleine mutation urbaine, ce bâtiment moderne est dédié aux professionnels de santé à la recherche d'un emplacement central, facilement accessible et conforme aux dernières normes environnementales et techniques.
Des locaux de santé neufs à louer Livraison prévue T4 2025
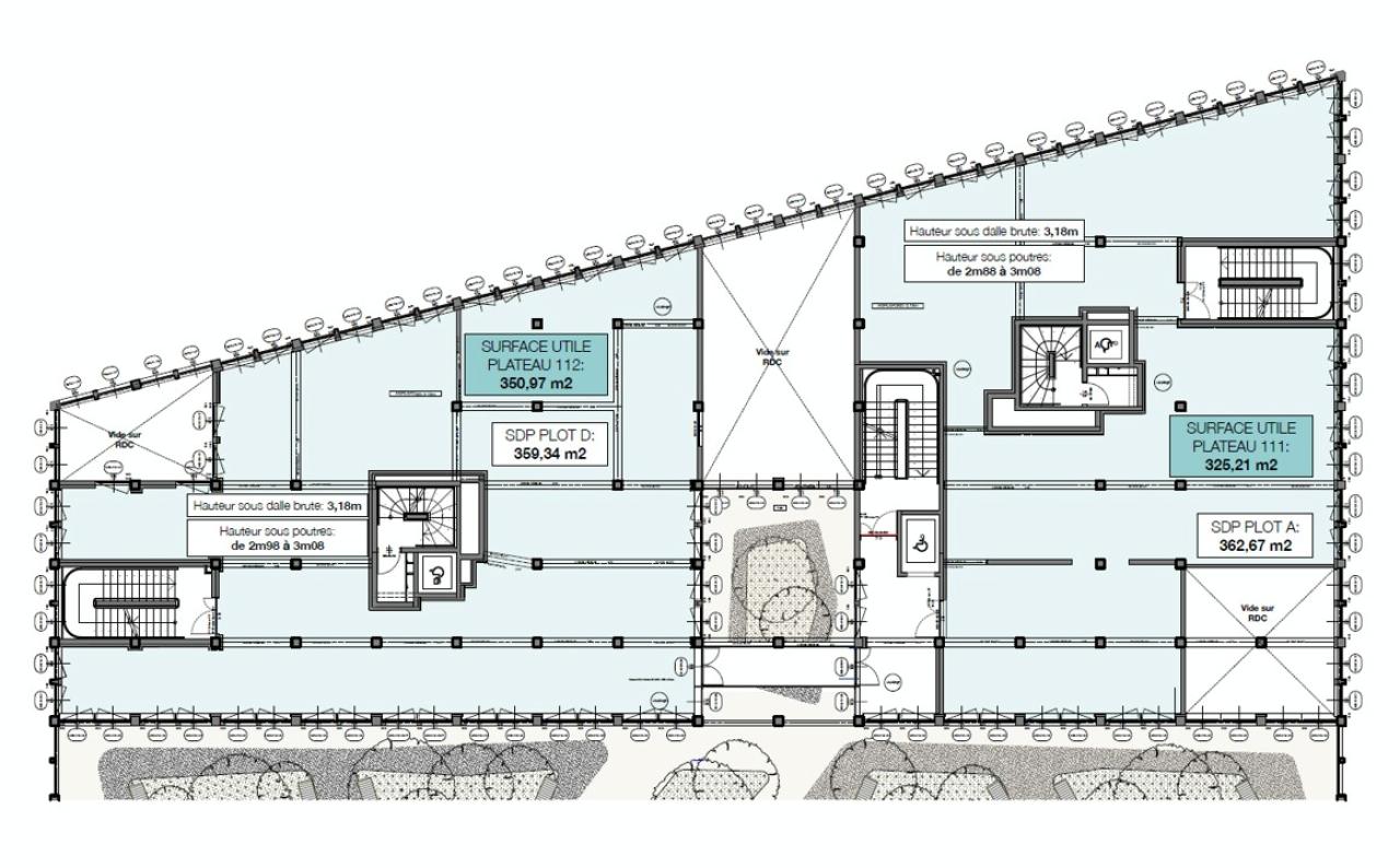
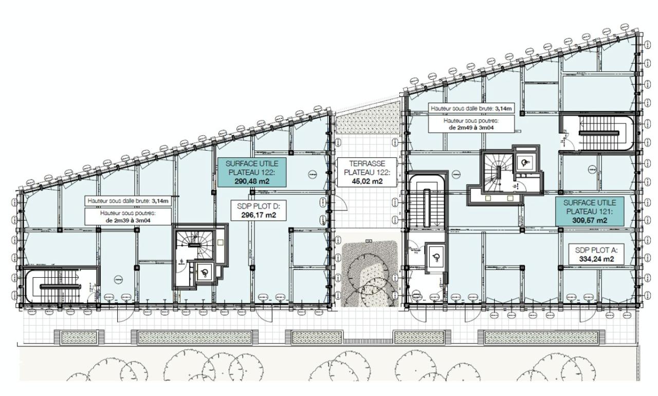
Conçu pour répondre aux besoins des médecins, praticiens paramédicaux, laboratoires ou centres de soins, le programme HEKA développe 1 430 m² répartis sur deux niveaux, divisibles selon vos besoins.
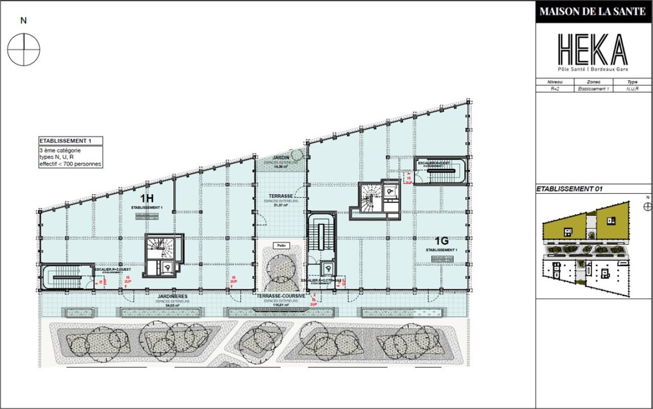
Classé SPIC, ce bâtiment permet l'installation de structures de santé (cabinet médical, maison de santé, centre pluridisciplinaire) en toute conformité.
Caractéristiques principales :
Surface à louer : 1 430 m² (divisibles)
Typologie : bureaux / locaux professionnels à usage médical et paramédical
Classement SPIC : adapté aux activités de santé
Livraison : 4e trimestre 2025
Localisation : Bordeaux Euratlantique Promenade des Forges
Bail : commercial ou professionnel selon le besoin
Un programme à haute performance environnementale
HEKA vise les certifications les plus exigeantes en matière de construction durable :
Labellisation RE2020
Certification NF HQE 9 étoiles
Label BREEAM niveau GOOD
Ces labels garantissent un confort optimal, des consommations énergétiques maîtrisées, et un environnement de travail sain, conforme aux attentes du secteur de la santé.
Une localisation premium dans Bordeaux Euratlantique
Le quartier Euratlantique constitue aujourd'hui le nouveau coeur tertiaire et urbain de Bordeaux, concentrant bureaux, commerces, logements, infrastructures culturelles et services de proximité.
Points d'attractivité :
À moins de 10 minutes à pied de la Gare Saint-Jean (TGV, TER, Tram C)
À proximité du Pont Simone Veil, de la Cité Numérique et de la Halle Boca
Connecté aux lignes de tram, bus, pistes cyclables et rocades
Fort potentiel de patientèle résidentielle et professionnelle
Pourquoi louer vos locaux de santé dans l'immeuble HEKA ?
Ce programme est idéal pour :
Installer un cabinet médical ou paramédical
Créer un centre de santé pluridisciplinaire
S'implanter dans une zone à fort potentiel de développement
Louer dans un immeuble neuf, durable et facilement accessible
À découvrir également :
Vous souhaitez plus d'informations sur la location au sein du programme HEKA ?
Contactez nos équipes BNP Paribas Real Estate au 05 56 44 09 12 pour recevoir les plans, conditions locatives et options d'aménagement.
Services & prestations
Aménagements
-
Aménagement des bureaux : Pré-aménagés ou brut de béton
Prestations de service
-
Parking
Type / Etat du bâtiment
-
Etat de l'immeuble : Neuf
-
Etat des locaux : Neuf
Informations complémentaires
-
Classement SPIC










