




24 Avenue Joannes Masset
69009 Lyon
235 m²
517 000 €
HT/HD
Disponibilité : Immédiate

Odine KLEIN
Description
PARC JOANNES MASSET
LYON 09
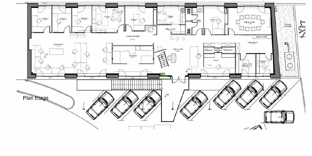
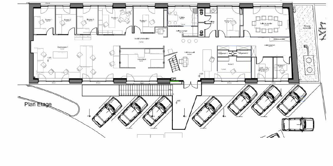
Dans le parc d’activité GORGE DE LOUP nous vous proposons un lot cloisonné, câblés et cuisine équipée à la vente ou à la location.
Une vue dégagée, un rapport qualité prix très attractif.
A visiter rapidement.
Services & prestations
Aménagements
-
Accès Pers. Mobilité Réduite : Ascenseur
-
Aménagement des bureaux : Cloisonnés/Ouverts
-
Effectif théorique
-
Sanitaires : Privatif(s)
Equipements
-
Ascenseurs
-
Climatisation : Réversible
-
Câblage informatique
-
Eclairage Bureaux : Luminaires encastrés
-
Faux plafond
-
Fenêtres : Fenêtres ouvrantes
-
Plinthes techniques périphériques
-
Sol bureaux : Moquette
-
Source chauffage : Electrique
-
Type de chauffage : Individuel
Hauteurs
-
Hauteur sous-plafond
Prestations de service
-
Sécurité : Contrôle d'accès
Type / Etat du bâtiment
-
Etat de l'immeuble : Etat d'usage
-
Immeuble copropriété : Oui, Oui
Informations complémentaires
-
Baie de brassage - accès fibre










