




24 Avenue Joannes Masset
69009 Lyon
235 m²
145 €
HT/HC/m²/an
Disponibilité : Immédiate

Odine KLEIN
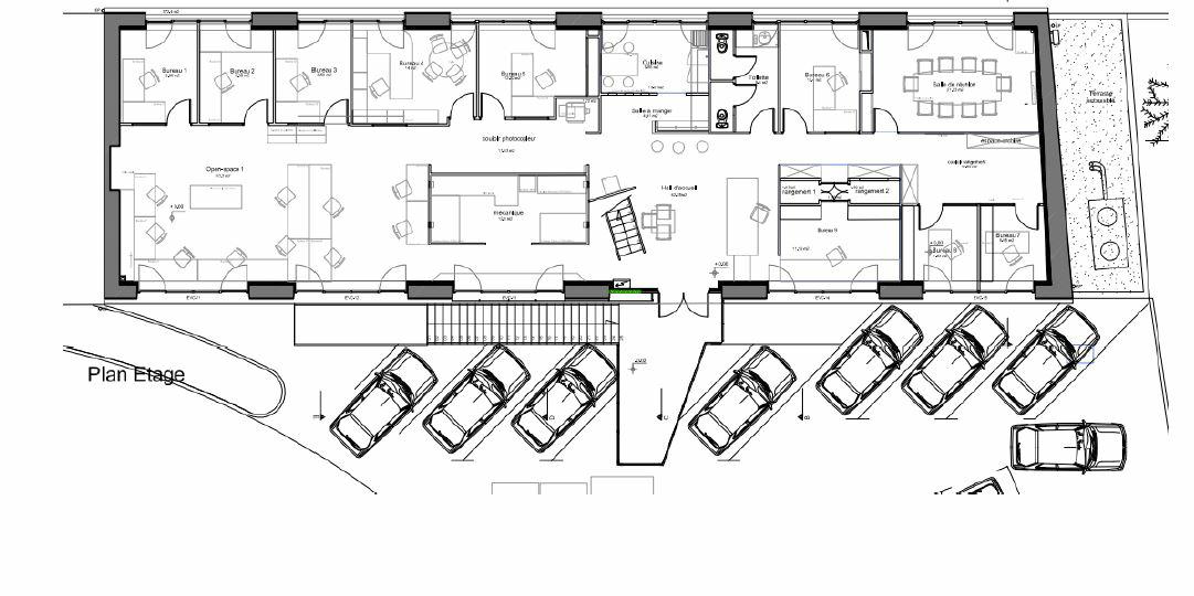
Description
PARC JOANNES MASSET
LYON 09
Dans le parc d’activité GORGE DE LOUP nous vous proposons un lot cloisonné, câblés et cuisine équipée à la vente ou à la location.
Une vue dégagée, un rapport qualité prix très attractif.
A visiter rapidement.
Services & prestations
Equipements
-
Climatisation : Réversible
-
Câblage informatique
-
Fenêtres : Fenêtres ouvrantes
-
Type de chauffage : Collectif
Prestations de service
-
Sécurité
Type / Etat du bâtiment
-
Etat de l'immeuble : Etat d'usage
-
Immeuble copropriété
Informations complémentaires
-
Baie de brassage - accès fibre










