




Vente Local d'activité 428 m²
93270 Sevran
428 m²
1 150 000 €
HT/HD
Disponibilité : 3 mois après accord

Charlie ISNARDON
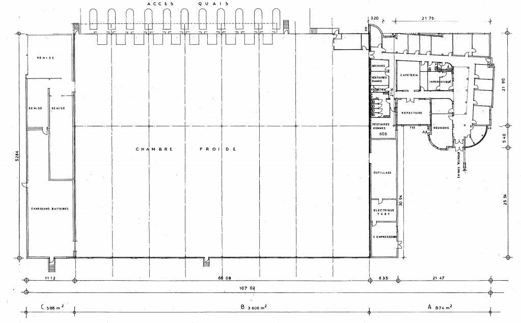
Description
SEVRAN (93)
A VENDRE / BATIMENT A USAGE D'ACTIVITES ET BUREAUX
BNP Paribas Real Estate vous propose, à l'acquisition, un bâtiment à usage d'activités et bureaux dans la commune de Sevran d'une surface globale d'env. 427 m².
Prestations techniques : accès tous porteurs, 1 accès plain-pied, charpente métallique, murs en parpaing
Prestations bureaux : hall d'accueil, bureaux cloisonnés
Les locaux sont idéalement situés à proximité des axes routiers N2, A104 et N3, RER B station SEVRAN BEAUDOTTES ainsi que des lignes de bus (147, 618). Aéroports Paris-le Bourget et Roissy Charles-de-Gaulle.
Services & prestations
Accès véhicules
-
Accessibilité type véhicules : Tous porteurs
Equipements
-
Porte d'accès plain-pied : 1
-
Source chauffage : Gaz
Type / Etat du bâtiment
-
Etat de l'immeuble : Seconde main
-
Etat du terrain : Bétonné
Structure du bâtiment
-
Charpente : Métallique
-
Murs : Parpaings
Aménagements
-
Aménagement des bureaux : Cloisonnés
-
Hall d'accueil










