




LES CIMES
3 Rue Célestin Freinet
33800 Bordeaux
12 904 m²
Divisible dès 132 m²
à partir de 210 €
HT/HC/m²/an
Disponibilité : Nous consulter

Maxence DUMONT
Description
Bureaux neufs à louer à Bordeaux Euratlantique – Programme tertiaire d’envergure avec terrasses et commerces
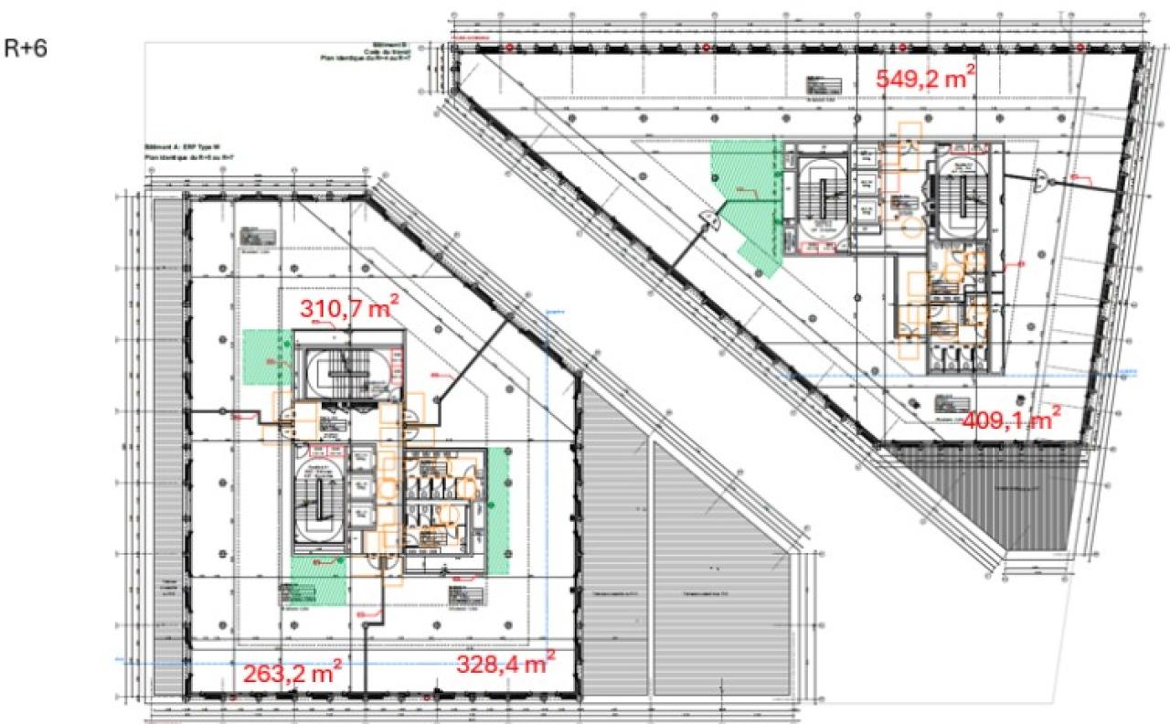
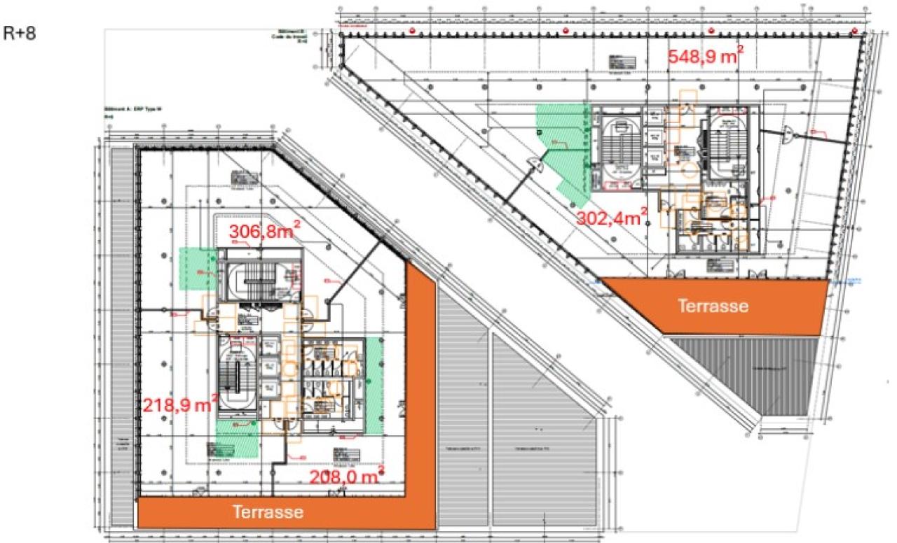
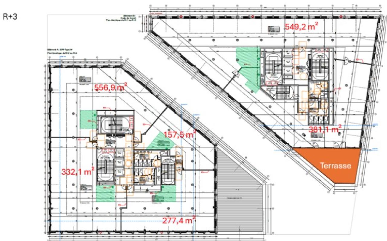
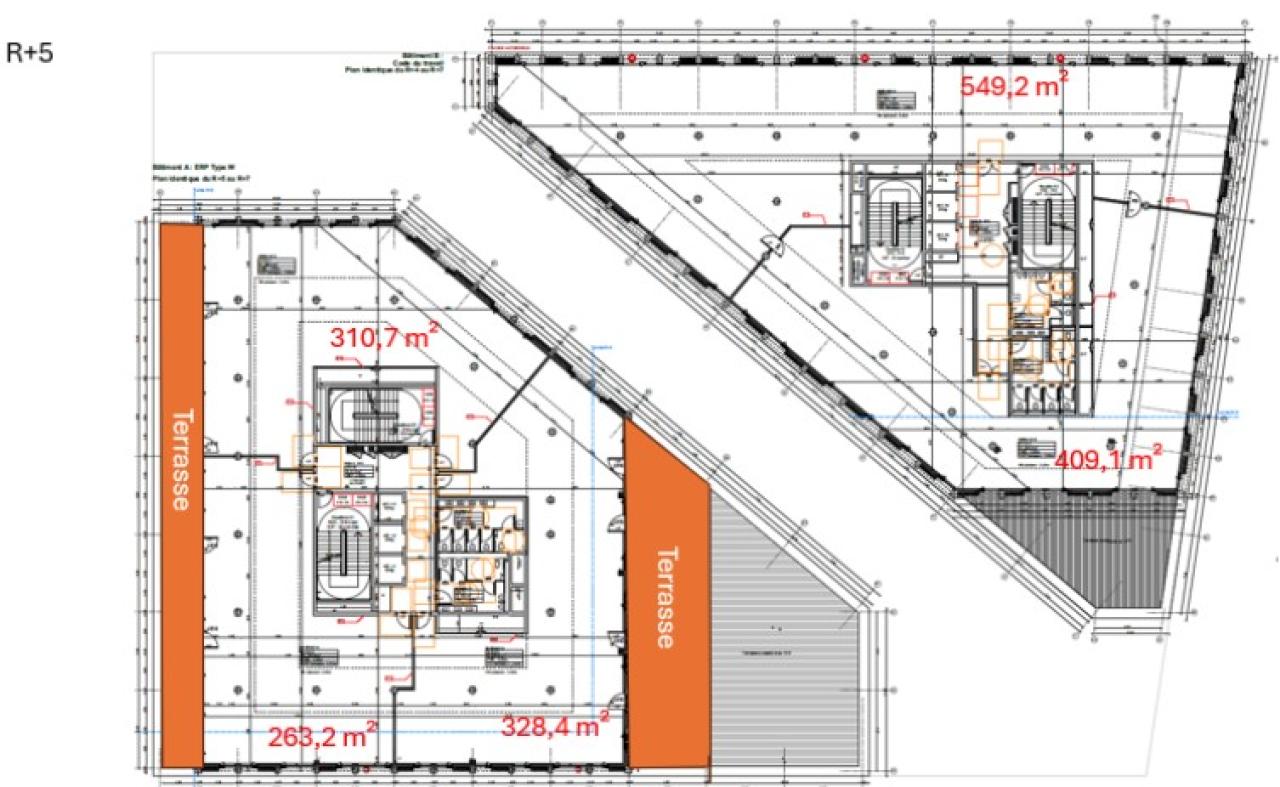
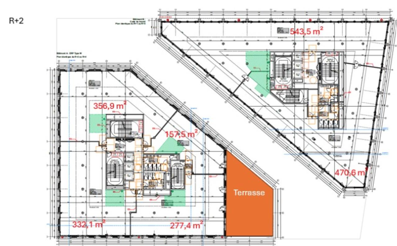
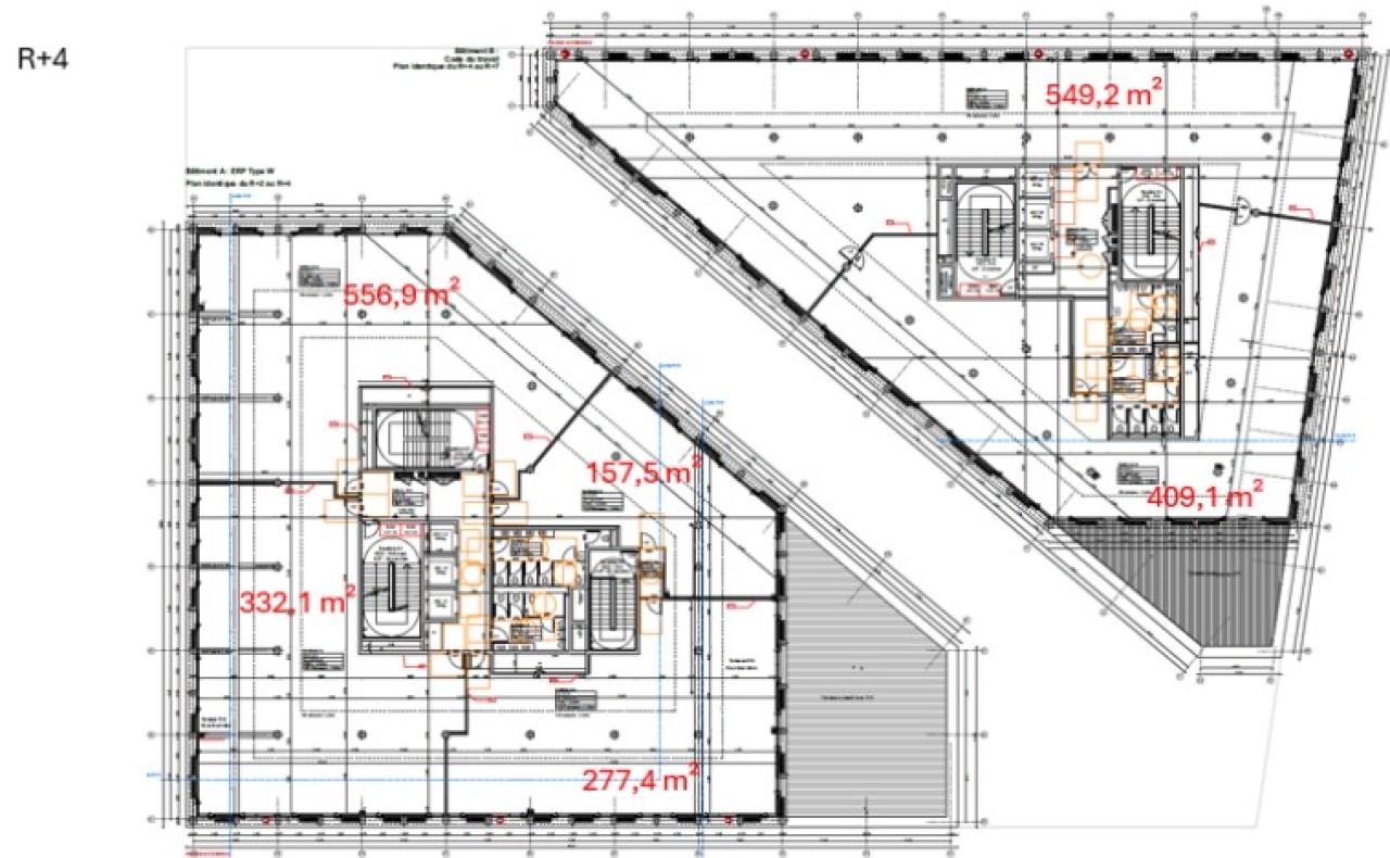
Au cœur du quartier Euratlantique, ce programme tertiaire de plus de 17 000 m² haut de gamme composé de deux bâtiments en R+8 séparés par une faille piétonne se compose de grands plateaux flexibles et divisibles.
Ces Immeubles certifiés BREEAM VERY GOOD et labélisés E+C- et R2S disposeront de deux coques brutes par immeuble au RDC pour accueillir des commerces ou restaurants et des espaces bureaux en étages.
Des terrasses sont accessibles aux étages 2, 5 et 8.
Excellente desserte en transport en commun avec la proximité de la Gare Saint jean et ses deux lignes de Tramway C et D.
Situé au coeur du quartier Bordeaux Euratlantique, BNP Paribas Real Estate vous propose à la location un programme tertiaire neuf de plus de 17 000 m², composé de deux immeubles indépendants en R+8, reliés par une faille piétonne centrale. Cet ensemble emblématique allie performance environnementale, architecture contemporaine et flexibilité d'usage, dans l'un des secteurs les plus dynamiques de la métropole.
Un immeuble de bureaux dernière génération, certifié et modulable
Ce programme de très haut standing offre de grands plateaux divisibles et une très grande modularité pour s'adapter à tous types d'implantation d'entreprise. Il répond aux exigences environnementales et numériques les plus élevées.
Caractéristiques principales :
- Surface totale de plus de 17 000 m² répartie sur 2 immeubles en R+8
- Plateaux de bureaux flexibles et divisibles
- Coques commerciales brutes en rez-de-chaussée pour commerces ou restauration
- Terrasses accessibles aux étages 2, 5 et 8
- Certification BREEAM Very Good
- Labels E+C- et R2S
- Optimisation des consommations énergétiques
- Architecture soignée et signature urbaine forte
Les immeubles ont été conçus pour favoriser le bien-être des collaborateurs, tout en intégrant les enjeux de sobriété énergétique et de connectivité numérique.
Un emplacement stratégique au coeur d'Euratlantique
Le programme s'implante au sein du quartier Euratlantique, secteur en plein essor qui redéfinit les usages urbains autour de la Gare Saint-Jean. L'environnement immédiat est composé d'immeubles de bureaux récents, de services, de commerces et d'équipements publics.
Avantages du quartier :
- Quartier d'affaires stratégique et en mutation
- Proximité directe de la Gare Saint-Jean (LGV, TER)
- Cadre de vie urbain et contemporain
- Forte attractivité pour les entreprises et les talents
Accessibilité et mobilités
Le site est idéalement desservi par les transports en commun et les grands axes :
- Gare Saint-Jean à quelques minutes à pied
- Tramway C et D à proximité immédiate
- Connexion rapide à la rocade et aux axes autoroutiers
- Lignes de bus et mobilités douces (pistes cyclables, bornes vélos)
Voir d'autres programmes dans le quartier
- Bureaux à louer Bordeaux Euratlantique
- Espaces de bureaux à proximité de la Gare Saint-Jean
- Opportunités à Bordeaux rive droite
Contactez BNP Paribas Real Estate
Ce programme tertiaire neuf à Bordeaux Euratlantique constitue une opportunité unique pour implanter votre entreprise dans un immeuble performant, flexible et durable, au coeur d'un quartier d'avenir. Contactez-nous pour en savoir plus sur les surfaces disponibles, les conditions de location ou organiser une visite.
Services & prestations
Aménagements
-
Accueil
-
Accès Pers. Mobilité Réduite
-
Aménagement des bureaux : Espaces Ouverts
-
Sanitaires : Parties communes H/F PMR
Equipements
-
Ascenseurs
-
Climatisation : Réversible
-
Faux plancher
-
Gestion technique centralisée
-
Sol bureaux : Moquette
Prestations de service
-
Parking : 104 Places
Normes, Certifications et Labels
-
Catégorie ERP : 2 type W, BAT B: code travail
-
Certification : BREEAM
Type / Etat du bâtiment
-
Etat de l'immeuble : Neuf
-
Etat des locaux : Neuf
Informations complémentaires
-
Entrée palière à chaque étage, Local vélo sur les 2 bâtiments










