




35 Boulevard Joliot Curie
33100 Bordeaux
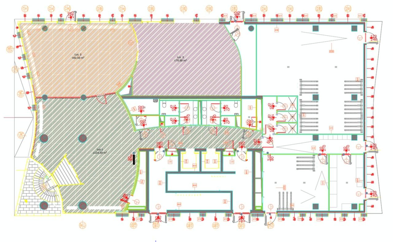
3 709 m²
Divisible dès 91 m²
à partir de 195 €
HT/HC/m²/an
Disponibilité : Immédiate

Ludovic MICHELON
Description
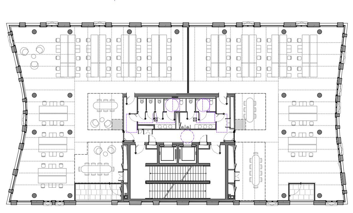
Bureaux à louer à Bordeaux Belvédère – Immeuble L’ARK
Au cœur du nouveau quartier dynamique et connecté de Bordeaux Belvédère, BNP Paribas Real Estate, vous propose en exclusivité l'ARK, un immeuble de bureaux performant et agile. L'ARK est un bâtiment intelligent résolument inscrit dans son époque avec son architecture soignée, ses prestations techniques élevées, son hall d'accueil chaleureux, ses nombreuses loggias et sa vaste terrasse. Les plateaux de bureaux se prêtent à tout type de configuration et offrent une grande flexibilité.
BNP Paribas Real Estate vous propose, en exclusivité, la location de bureaux à Bordeaux Belvédère, dans un immeuble tertiaire emblématique du quartier : L'ARK, situé au coeur de ce nouveau quartier d'affaires dynamique et connecté, L'ARK se distingue par son architecture contemporaine, son haut niveau de prestations techniques et sa grande agilité d'aménagement.
Pensé pour répondre aux nouveaux usages du travail, ce bâtiment intelligent conjugue design, performance énergétique et confort d'usage, dans un environnement urbain en pleine mutation, au sein de l'opération d'aménagement Bordeaux Euratlantique.
Un immeuble de bureaux nouvelle génération à la hauteur des exigences professionnelles
L'ARK est un immeuble tertiaire neuf offrant des plateaux de bureaux flexibles et lumineux, facilement adaptables en open-space, bureaux cloisonnés ou espaces collaboratifs. L'ensemble intègre une conception bioclimatique et un haut niveau de services pour favoriser le bien-être des utilisateurs.
Atouts et caractéristiques de l'ARK :
- Architecture soignée et durable
- Prestations techniques de haut niveau
- Hall d'accueil spacieux et qualitatif
- Nombreuses loggias et grande terrasse partagée
- Plateaux divisibles et configurables selon vos besoins
- Immeuble connecté et agile, prêt pour les nouveaux modes de travail
Ce programme est parfaitement adapté aux entreprises recherchant un environnement moderne et stimulant dans l'un des quartiers les plus ambitieux de la métropole bordelaise.
Bordeaux Belvédère : un quartier d'avenir sur la rive droite
Situé sur la rive droite de Bordeaux, à proximité immédiate du pont Saint-Jean et de la Gare Saint-Jean, le quartier Belvédère s'inscrit dans le périmètre stratégique de Bordeaux Euratlantique, l'un des plus grands projets d'aménagement urbain de France. Ce nouveau pôle économique et résidentiel accueille entreprises, commerces, logements, équipements culturels et services dans un cadre urbain qualitatif.
Les atouts du quartier Bordeaux Belvédère :
- Quartier moderne, mixte et en pleine transformation
- Proximité immédiate de la Gare Saint-Jean
- Connexion directe au centre-ville de Bordeaux
- Accès facilité par le Pont Saint-Jean et les axes routiers
- Équipements, services, commerces et restaurants sur zone
Accessibilité et transports
L'ARK bénéficie d'une excellente desserte multimodale :
- Tramway lignes A et C à proximité
- Accès rapide à la rocade et au pont Simone-Veil
- À quelques minutes à pied de la Gare Bordeaux Saint-Jean (LGV)
- Réseau de bus et mobilités douces (pistes cyclables, bornes de vélos en libre-service)
Découvrez d'autres immeubles de bureaux à Bordeaux
En complément, consultez notre sélection de bureaux à louer dans Bordeaux centre
Contactez nos équipes
Ne manquez pas cette opportunité de vous implanter dans un immeuble de bureaux moderne à Bordeaux Belvédère, alliant flexibilité, confort et performance environnementale. Contactez dès maintenant BNP Paribas Real Estate pour organiser une visite et découvrir l'ensemble des prestations de L'ARK.
Services & prestations
Equipements
-
Ascenseurs : 2
-
Climatisation : 4 tubes Géothermie
-
Faux plafond
-
Faux plancher
-
Sol bureaux : Moquette
-
Type de chauffage : Urbain
Hauteurs
-
Hauteur sous-plafond : 2,70 mètre(s)
Prestations de service
-
Parking : 77 places : 37 pkg intérieurs et 40 pkgs extérieurs
Normes, Certifications et Labels
-
Catégorie ERP : 5 type W
-
Certification : BREEAM
Type / Etat du bâtiment
-
Etat de l'immeuble : Neuf
-
Etat des locaux : Neuf
Informations complémentaires
-
Immeuble structure béton
-
Effinergie
-
Ratio parking : 1 place/64 m²










