




Location Bureau 376 m²
33800 Bordeaux
376 m²
Divisible dès 159 m²
210 €
HT/HC/m²/an
Disponibilité : Immédiate

Laura MOURGUIART
Description
Bureaux à louer Bordeaux Euratlantique – Plateau Plug and Play avec vue sur la Garonne
BNP Paribas Real Estate vous propose un plateau de bureaux à louer Plug and Play avec une vue magnifique sur la Garonne et la MECA. Le plateau est distribué avec un grand open space, des bureaux fermés ainsi qu’une magnifique salle de réunion. Ces bureaux sont divisibles à partir de 16 0m². Vous bénéficierez d’un super emplacement sur le quai de Paludate avec un accès direct à la rocade, au tram C et D ainsi qu’aux halles BOCA au coeur du quartier de Bordeaux Euratlantique.
BNP Paribas Real Estate vous propose à la location des bureaux à Bordeaux, au sein de l'immeuble EMERGENCE, idéalement situés sur le Quai de Paludate dans le quartier d'affaires Bordeaux Euratlantique. Ce plateau de bureaux Plug and Play, aménagé et lumineux, offre un cadre de travail contemporain tout en bénéficiant d'une vue exceptionnelle sur la Garonne et sur la Maison de l'Économie Créative et de la Culture (MECA).
Découvrez également l'ensemble des opportunités tertiaires disponibles en centreville et dans le quartier en pleine expansion sur la page dédiée aux bureaux à louer à Bordeaux Euratlantique.
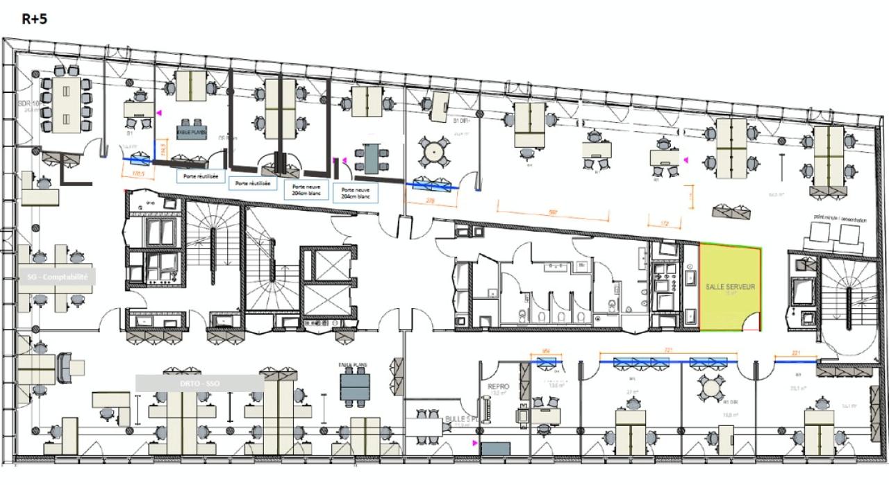
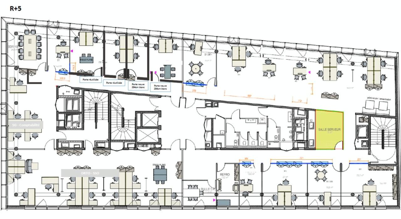
Un plateau de bureaux modulable, fonctionnel et lumineux
Le plateau proposé d'environ 377 m², situé au 5 étage, est conçu pour répondre aux besoins des entreprises modernes en matière d'efficacité, de confort et de flexibilité d'usage :
Caractéristiques principales :
Surface totale : ~377 m², divisible dès 160 m²
Configuration Plug and Play : prêt à l'usage
Vaste openspace favorisant la collaboration
Bureaux fermés pour les zones de confidentialité
Salle de réunion spacieuse et bien équipée
Grande luminosité naturelle
Patio extérieur accessible depuis le plateau pour les pauses en plein air
Vue panoramique sur la Garonne et la MECA
Accès PMR et circulation fluide dans l'immeuble
Possibilité d'adapter l'espace selon vos besoins opérationnels
Cette configuration intelligente permet d'accueillir des équipes de tailles variées, tout en offrant un cadre de travail inspirant et professionnel.
Une localisation stratégique dans Bordeaux Euratlantique
Le quartier Bordeaux Euratlantique constitue aujourd'hui l'un des secteurs d'affaires les plus dynamiques de la métropole bordelaise, alliant innovation urbaine, performances immobilières et accessibilité multimodale.
Atouts du quartier :
Proximité immédiate de la gare de Bordeaux SaintJean, pôle central de mobilité nationale et internationale
Accès direct aux lignes de tramway C et D, facilitant les déplacements internes à la métropole
Sorties rocade et axes autoroutiers proches pour les trajets interurbains
Réseau de bus urbains dense et nombreuses options de mobilité douce
Environnement mixte et dynamique, combinant bureaux, services, commerces et lieux de vie
Environnement de services :
Halle Boca et son foodcourt à quelques pas pour vos pauses déjeuner ou rendezvous professionnels
Restaurants, cafés, hôtels et services urbanisés
Espaces publics rénovés, promenades le long de la Garonne et espaces verts
Ce secteur bénéficie d'un cadre urbain attractif, propice à l'implantation durable d'entreprises innovantes, de PME comme de grands groupes.
Pourquoi choisir ce plateau à Bordeaux Euratlantique ?
Points forts :
Plateau Plug and Play, prêt à l'usage
Vue sur la Garonne et bâtiments emblématiques du quartier
Accessibilité multimodale : tram, bus, gare, rocade
Cadre professionnel dynamique et moderne
Possibilité de division à partir de 160 m²
Proximité d'infrastructures de services et de restauration
À découvrir également à Bordeaux Euratlantique :
Bureaux de 3 716 m² à louer à Bordeaux Euratlantique : immeuble indépendant au pied de la gare SaintJean, avec des plateaux modulables et des prestations modernes.
Bureaux de 667 m² à louer à Bordeaux HYPERION Euratlantique : plateaux de bureaux contemporains dans l'immeuble HYPERION sur la place d'Armagnac, à proximité de la gare et du tram.
Pour consulter un panorama complet des bureaux à louer dans Bordeaux, visitez notre page dédiée aux bureaux à louer à Bordeaux.
Disponible immédiatement à la location, ce plateau de bureaux à Bordeaux Euratlantique est une opportunité à saisir pour implanter ou développer votre activité dans un quartier d'affaires en plein essor.
Contactez nos équipes pour organiser une visite et découvrir le potentiel de votre future adresse professionnelle.
Services & prestations
Aménagements
-
Accès Pers. Mobilité Réduite
-
Aménagement des bureaux : Cloisonnés/Ouverts
-
Complexe Salle de réunion
-
Sanitaires : Parties communes
Equipements
-
Ascenseurs : 1
-
Climatisation : Réversible Double flux
-
Câblage informatique
-
Sol bureaux : Dls.thermoplastiques
Hauteurs
-
Hauteur sous-plafond
Prestations de service
-
Parking : Oui, Sécurisé
-
Sécurité : Contrôle d'accès Accès 7j7 par badge
Type / Etat du bâtiment
-
Etat de l'immeuble : Etat d'usage Récent
-
Etat des locaux : Etat d'usage Récent
Informations complémentaires
-
Baie de brassage, Locaux lumineux
-
Equipements informatiques
-
Courant fort et faible, Patio exterieur










