




Location Bureau 5 604 m²
33000 Bordeaux
5 604 m²
Divisible dès 379 m²
à partir de 280 €
HT/HC/m²/an
Disponibilité : 18 mois après accord

Ludovic MICHELON
Description
Campus ERP 2 à louer à Bordeaux – Bâtiment réhabilité au cœur de la ville, proche Jardin Public
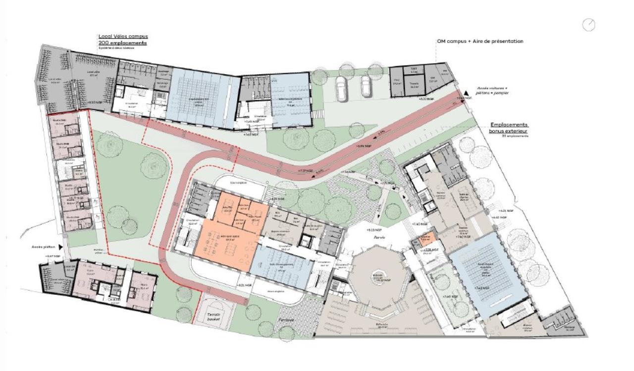
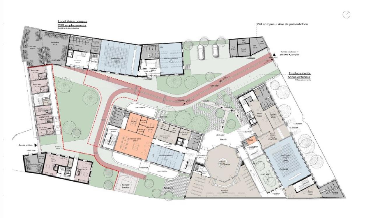
Le projet vise la réhabilitation de ce site historique en Campus afin d’accueillir une école supérieure avec quelques logements étudiants. Le programme développé proposera ainsi : Une école d’enseignement supérieur pour environ 5.600 m² SUBL environ (ERP 2) ainsi qu'une résidence étudiante de 25 chambres avec services pour 600 m² SHAB environ qui sera cédée à un bailleur social. Le Campus offrira un capacitaire adapté aux besoins des écoles et campus (ERP 2 / 1.490 personnes) et une qualité de projet répondant aux nouvelles exigences concurrentielles des groupes d’enseignement supérieur.
BNP Paribas Real Estate vous propose un futur campus ERP 2, né de la restructuration lourde d'un bâtiment historique, situé en plein centre de Bordeaux, à deux pas du Jardin Public et de la rue Fondaudège.
Ce projet rare allie patrimoine architectural, modernité et qualité de vie en hyper-centre, dans un environnement privilégié, à proximité immédiate des transports, commerces et des principaux points d'intérêt culturels de la ville.
Un campus d'exception en plein coeur de Bordeaux
Ce bâtiment à louer pour usage ERP 2 à Bordeaux développera :
5 600 m² d'espaces pédagogiques dédiés à l'enseignement
Une capacité d'accueil jusqu'à 1 490 personnes
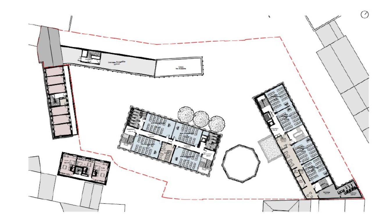
Une résidence étudiante intégrée de 600 m² avec 25 chambres
Plusieurs espaces extérieurs privatifs, propices au bien-être et aux échanges informels
Idéal pour un établissement d'enseignement supérieur, un organisme de formation, ou une école privée, ce campus offre un cadre d'apprentissage exceptionnel, en lien direct avec l'énergie et la richesse du centre-ville bordelais.
Un environnement urbain agréable et stimulant
Le site bénéficie d'une situation centrale premium, dans un quartier à la fois calme, verdoyant et vivant, à proximité :
Du Jardin Public, véritable poumon vert du centre-ville
De la rue Fondaudège, récemment rénovée, avec ses commerces, cafés et restaurants
De la ligne C du tramway, facilitant les déplacements depuis la gare Saint-Jean ou les autres pôles urbains
L'environnement immédiat est idéal pour créer un campus intégré dans la ville, à taille humaine, où étudiants et équipes pédagogiques profiteront d'un cadre de vie de qualité.
Les points forts à retenir
Campus ERP 2 à louer à Bordeaux, en plein centre-ville
5 600 m² d'espaces pédagogiques + 600 m² de résidence étudiante
Capacité d'accueil jusqu'à 1 490 personnes
Bâtiment historique entièrement réhabilité
Espaces extérieurs privatifs pour détente ou travail en plein air
Quartier dynamique, bien desservi et agréable à vivre
À découvrir aussi :
Envie de découvrir ce projet unique en coeur de ville ?
Contactez BNP Paribas Real Estate au 05 56 44 09 12 pour obtenir plus d'informations ou organiser une visite du site.
Services & prestations
Aménagements
-
Complexe Salle de réunion
-
Effectif théorique : Incendie 1 490 personnes
Prestations de service
-
Cafétéria : Restauartion
Extérieurs
-
Terrasses - jardins : Aménagés et privatifs
Normes, Certifications et Labels
-
Catégorie ERP : 2 type R (école)
Informations complémentaires
-
Amphithéâtre de 123 places, Nombreux espaces communs
-
1 salle polyvalente de 155 places assises, Postes administratifs à tous les étages
-
20 salles de 40 étudiants et 8 salles de 20 étudiants, Locaux pour 240 vélos abrités et sécurisés










