




Location Bureau 3 287 m²
33610 Cestas
3 287 m²
Divisible dès 534 m²
174 €
HT/HC/m²/an
Disponibilité : Immédiate

Ludovic MICHELON
Description
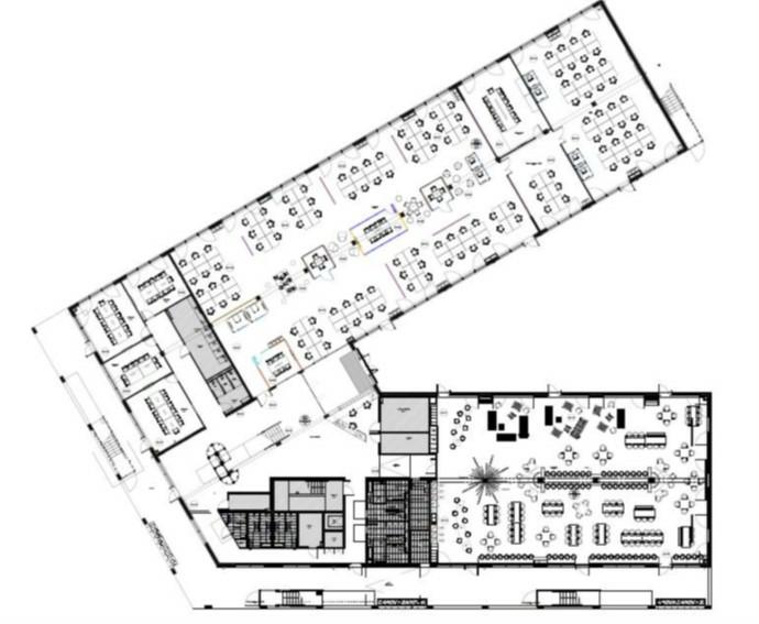
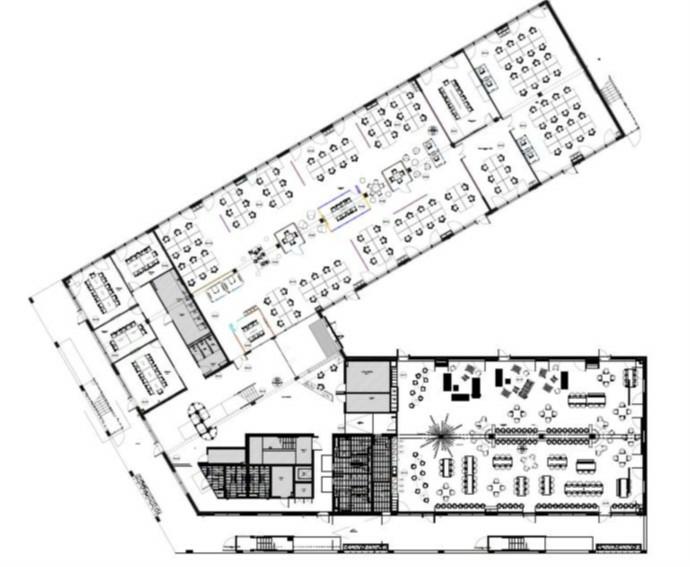
Bureaux à louer Pessac – Immeuble IKIGAI, rue Thomas Edison
Au sein de l'immeuble IKIGAI à Pessac, BNP Paribas Real Estate vous propose des locaux à louer entièrement équipés aux prestations haut de gamme. La mise au point de ce bâtiment adaptable et flexible est capable d’accueillir toute la technicité et l’exigence des équipes en termes de contrôle d’accès, de sécurité, de datas, de protection des données et surtout en termes d’espace et de travail collaboratif de bureaux clé en mains. Les plateaux proposent également d'agréables et de vastes terrasses.
À la recherche de bureaux clé en main à louer à Pessac dans un immeuble neuf, performant et stratégiquement situé ?
Découvrez l'immeuble IKIGAI, implanté dans un environnement dynamique de la métropole bordelaise, au coeur d'un parc tertiaire moderne, parfaitement adaptée aux entreprises désireuses d'installer leurs équipes dans un cadre immédiatement opérationnel.
Bien situé à Pessac, ces bureaux divisibles permettent une adaptation fine à vos besoins. L'immeuble propose des espaces entièrement aménagés et meublés, prêts à accueillir vos collaborateurs sans délai ni contraintes majeures. L'agencement privilégie l'openspace collaboratif, tout en intégrant des salles de réunion et du mobilier ergonomique, pour un confort de travail optimal.
Prestations & aménagements
- Bureaux entièrement aménagés, meublés, prêts à l'emploi
- Configurable en openspace ou en bureaux cloisonnés selon les usages
- Mobilier de qualité, choix de finitions modernes, ergonomie soignée
- Grandes terrasses ou espaces extérieurs généreux pour chaque plateau
- Câblage RJ45, fibre optique haut débit
- Climatisation réversible performante
- Parking ou stationnement à proximité créant une réelle valeur ajoutée
- Immeuble neuf, livré dans un cadre tertiaire contemporain, conçu pour favoriser productivité et bienêtre
Localisation & accessibilité
- Commune : Pessac (33610), à proximité immédiate de la métropole bordelaise
- Accès rocade : proche de la sortie de la rocade et de l'autoroute A63
- Transports en commun : ligne B du tramway à portée, nombreuses lignes de bus, stations VCub à proximité
- Cadre de vie qualitatif : Pessac est réputée pour son dynamisme économique, son environnement universitaire et sa proximité avec Bordeaux
- Positionnement : dans un parc tertiaire bien identifié, offrant visibilité, services et infrastructures adaptées aux entreprises
Pourquoi cet immeuble constitue une opportunité
- Une solution immédiatement opérationnelle grâce aux surfaces aménagées et meublées
- Une localisation stratégique offrant à la fois accessibilité métropolitaine et tranquillité de zone tertiaire
- Un environnement valorisant, propice à l'accueil d'équipes, favorisant l'attractivité pour collaborateurs et visiteurs
- Une flexibilité d'usage : adaptation des surfaces, mobilier inclus, installation rapide
- Un cadre professionnel premium, conçu pour les entreprises à fort besoin de connectivité et d'ergonomie
Découvrir aussi :
Bureaux à louer à Pessac surfaces divisibles et hautes prestations
Offre bureaux neufs à louer Mérignac parc tertiaire aéroportuaire
Bureaux à louer Bordeaux métropole immeuble indépendant proche rocade
Services & prestations
Aménagements
-
Accès Pers. Mobilité Réduite : Oui, Oui
-
Aménagement des bureaux : Cloisonnés/Ouverts aménagés et meublés
-
Complexe Salle de réunion
Equipements
-
Climatisation : Réversible
-
Câblage informatique : RJ45, baie de brassage
-
Eclairage Bureaux : Luminaires encastrés dalles acoustiques
-
Sol bureaux : Moquette
Prestations de service
-
Cafétéria : équipée
-
Parking
-
Sécurité : Contrôle d'accès, Vidéo-surveillance alarme anti intrusion
Extérieurs
-
Terrasses - jardins : Terrasse
Type / Etat du bâtiment
-
Etat de l'immeuble : Neuf
-
Etat des locaux : Rénové
Informations complémentaires
-
Casiers, écrans, Fibre optique










