




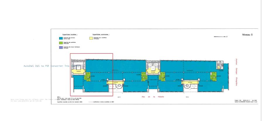
Location Bureau 1 129 m²
69003 Lyon
1 129 m²
Divisible dès 229 m²
à partir de 230 €
HT/HC/m²/an
Disponibilité : Immédiate

Ludovic NE
Description
VIP
RUE DE LA VILLETTE - 69003 LYON
Dans un immeuble récent de standing au cœur du quartier d'affaires de la Part-Dieu, nous vous proposons à la location plusieurs plateaux de bureaux. Proximité immédiate avec le réseau multimodal de la Part Dieu et les nombreux services de proximité.
Construit autour de la gare TGV, en liaison directe avec Paris et l'Europe, le quartier de Lyon Part-Dieu s’est imposé comme le deuxième pôle tertiaire et de décision français. Plus de 2 500 établissements y emploient quelques 60 000 salariés, sur près 1.150 000 m² de bureaux.
Depuis 2010, la Métropole de Lyon a initié le projet urbain d’envergure de renouvellement du quartier autour de la restructuration de la gare et du centre commercial, facilitant des déplacements repensés.
L’enjeu de faire de Lyon-Part-Dieu une référence internationale en matière d’innovation urbaine et de performance économique d’ici 2030 devient une réalité. La gare de la Part-Dieu bénéficie aujourd'hui d'un nouveau hall, d'une nouvelle voie et de nouveaux accès. La galerie de la gare, dédiée aux commerces, a accueilli en juin dernier une brasserie.
Services & prestations
Aménagements
-
Sanitaires : Privatif(s)
Equipements
-
Climatisation : Réversible
-
Eclairage Bureaux : Luminaires encastrés LED
-
Faux plafond
-
Faux plancher
-
Sol bureaux : Moquette
Prestations de service
-
Parking : Gare Part Dieu
Type / Etat du bâtiment
-
Etat de l'immeuble : Etat d'usage
-
Etat des locaux : Rénové Plateaux livrés entièrement rénovés
Informations complémentaires
-
Local vélo en sous-sol
-
Lumineux, Nouvelle entrée Gare Pompidou, Nouvelles parties communes, Visibilité de qualité
-
Installation places électriques fin 2022, Plateau livré rénové










