




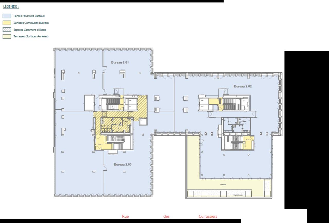
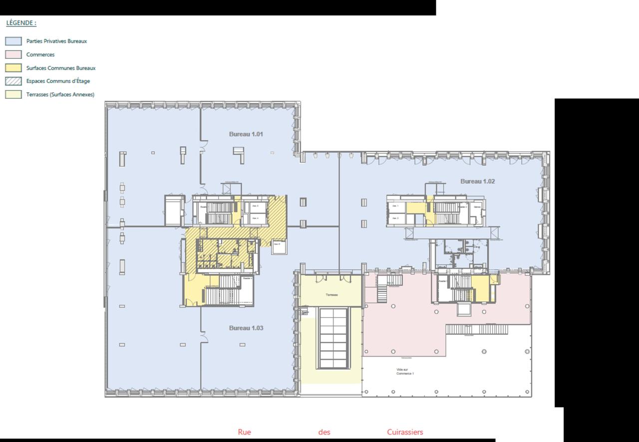
Location Bureau 12 076 m²
69003 Lyon
12 076 m²
Divisible dès 1 391 m²
à partir de 350 €
HT/HC/m²/an
Disponibilité : Immédiate

Stephan POULAT
Description
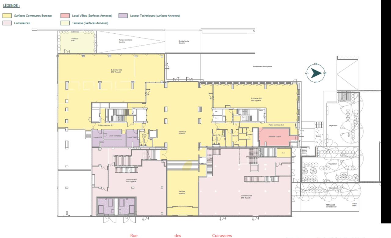
AUDESSA
Coeur Part Dieu
Au cœur du quartier d’affaire de la Part Dieu, nous vous proposons un immeuble de bureau neuf, idéalement situé au pied du centre Commercial Westfield Part Dieu et de la Gare TGV.
L’immeuble bénéfice de tous les services de proximité (commerces, restaurants, parking, etc…)
Services & prestations
Equipements
-
Climatisation : Air rafraîchi rafraichissement d'air
-
Type de chauffage : Collectif
Prestations de service
-
Parking
-
Sécurité : Contrôle d'accès










