




Location Bureau 1 815 m²
69003 Lyon
1 815 m²
Divisible dès 200 m²
à partir de 200 €
HT/HC/m²/an
Disponibilité : Immédiate

Ludovic NE
Description
GARDEN PART-DIEU - LYON 03
Au cœur de quartier d'affaires de la Part-Dieu, nous vous proposons dans un très bel immeuble plusieurs surfaces de bureaux à la location, pour certains rénovés et décloisonnés, pour d'autres en état d'usage, et des places de stationnement en sous-sol. Disponible immédiatement.
LA PART DIEU - Lyon 3ème
Située sur la Rive gauche du Rhône, dans le prolongement du quartier des Brotteaux et du 6ème arrondissement, La Part Dieu voit le jour dans les années 1975.
Premières constructions réalisées : La tour M+M (1972), la Tour EDF (1975), la Tour Caisse d’Epargne (1976), la Tour Part Dieu (« le crayon » 1977), des logements, le centre commercial, la Cité Administrative, la bibliothèque (1972) et l’auditorium (1975).
Ouverture de la gare Part Dieu en 1983, deux ans après l’inauguration de la ligne à grande vitesse reliant Paris à Lyon.
Construit autour de la gare TGV, en liaison directe avec Paris et l'Europe, le quartier de Lyon Part-Dieu s’est imposé comme le deuxième pôle tertiaire et de décision français. Plus de 2 500 établissements y emploient quelques 56 000 salariés, sur près 1.150 000 m² de bureaux.
Depuis 2010, la Métropole de Lyon a initié le projet urbain d’envergure de renouvellement du quartier autour de la restructuration de la gare et du centre commercial, facilitant des déplacements repensés.
L’enjeu ? faire de Lyon-Part-Dieu une référence internationale en matière d’innovation urbaine et de performance économique d’ici 2030
A terme, le tissu tertiaire sera encore renforcé pour accueillir 70 000 emplois, de nouvelles entreprises autour de l'ingénierie et les services urbains
En 2021, l'offre immobilière tertiaire - neuve ou réhabilitée - sera portée à 1 650 000 m².
Porte d’entrée de la Métropole, Lyon Part-Dieu est un lieu d’échanges et de distribution des flux traversé par un demi-million de déplacements chaque jour :
- La Part Dieu est un véritable hub de mobilités, il bénéficie du plus important pôle multimodal de transports urbains : TGV, TER, Tramways (T1-T3_T4), Métro (ligne B), 11 lignes de bus, gare routière, connexion à l’aéroport international Saint Exupéry par la navette Rhon’Express, stations de taxis, Velov’, loueurs de véhicules
Une offre de services très diversifiée :
- Une centaine de restaurants grandes enseignes, grandes tables, offre de restauration traditionnelle.
- Une offre d'hôtellerie diversifiée : 2 000 chambres de 1 à 4 étoiles en hôtels et résidences hôtelières.
- Le 1er centre commercial urbain d'Europe fréquenté par 34 millions de visiteurs.
- Une offre culturelle et de loisirs étendue : médiathèque centrale de Lyon, Halles Paul Bocuse, Auditorium, cinémas multiplexes.
- Plusieurs équipements sportifs, privés et publics : piscine, gymnase, halle de sport, clubs privés de fitness, squash..
Le quartier de la Part Dieu représente aujourd’hui le quartier central des affaires de Lyon et le premier quartier d’affaires régional.
Le quartier de la Part Dieu s’est engagé dans une phase de renouvellement avec la restructuration de la gare, de l’ensemble des accès et du centre commercial.
De nombreux projets tertiaires et de logements sont en cours et composeront la future « skyline » de Lyon avec plusieurs projets de tours réalisées (Oxygène, Incity), en cours (Silex², To Lyon ou en développement (MLyon) qui porteront le parc de bureaux à plus de 1 650 000 m² environ.
Un quartier à vivre
Lyon Part-Dieu bénéficie d'ores et déjà d'un cadre de vie et de travail facilité par la présence d'une offre importante de loisirs, de culture, de commerces, de services et de restaurants.
À l'avenir, le quartier sera plus animé, actif et accueillant, avec de nouveaux logements, des commerces et services en pied d'immeubles au cœur du quartier, un centre commercial complètement repensé des institutions culturelles plus visibles et mieux reliées entre elles.
Des espaces publics requalifiés intégrant lieux de pause et espaces verts favoriseront l'orientation, l'information et les déplacements des nombreux piétons.
Plus humain et plus vivant, le quartier sera agréable et attractif après les heures de bureau, et une nouvelle destination urbaine le soir et le week-end au cœur de Lyon, pour se détendre, se cultiver et se divertir.
Depuis 2015, le projet urbain est conduit par la Société Publique Locale Lyon Part-Dieu qui représente l'outil d'aménagement de la Métropole et de la Ville de Lyon sur un périmètre de 177 hectares qui s'étend pour l'essentiel au cœur du 3e arrondissement de Lyon. Elle poursuit le travail initié par la mission Part-Dieu entre 2010 et 2014 qui a permis le lancement du projet urbain et la mobilisation de l'ensemble des acteurs publics et privés qui le coproduisent.
Services & prestations
Aménagements
-
Hall d'accueil
-
Sanitaires : En parties communes
Equipements
-
Ascenseurs : 2 vitrés panoramiques
-
Climatisation : Réversible
-
Douche
-
Plinthes techniques périphériques
-
Type de chauffage : Par ventilo-convecteurs
Prestations de service
-
Parking : Places pour véhicules électriques
-
Sécurité : Gardiennage
Type / Etat du bâtiment
-
Etat de l'immeuble : Seconde main
-
Etat des locaux : Rénové
Informations complémentaires
-
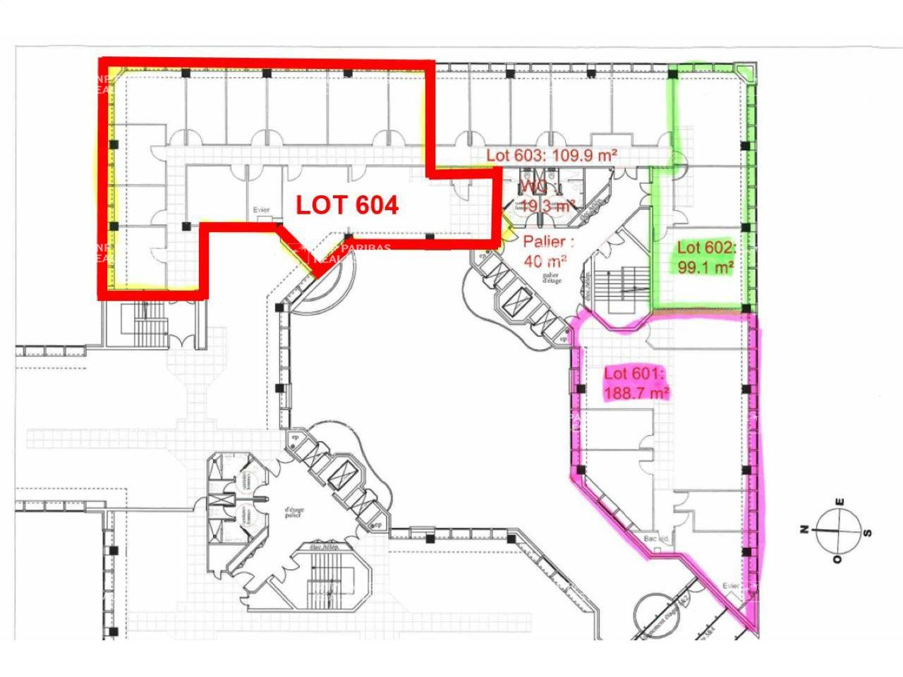
Lots R+3/R+6 : locaux entièrement rénovés, décloisonnés
-
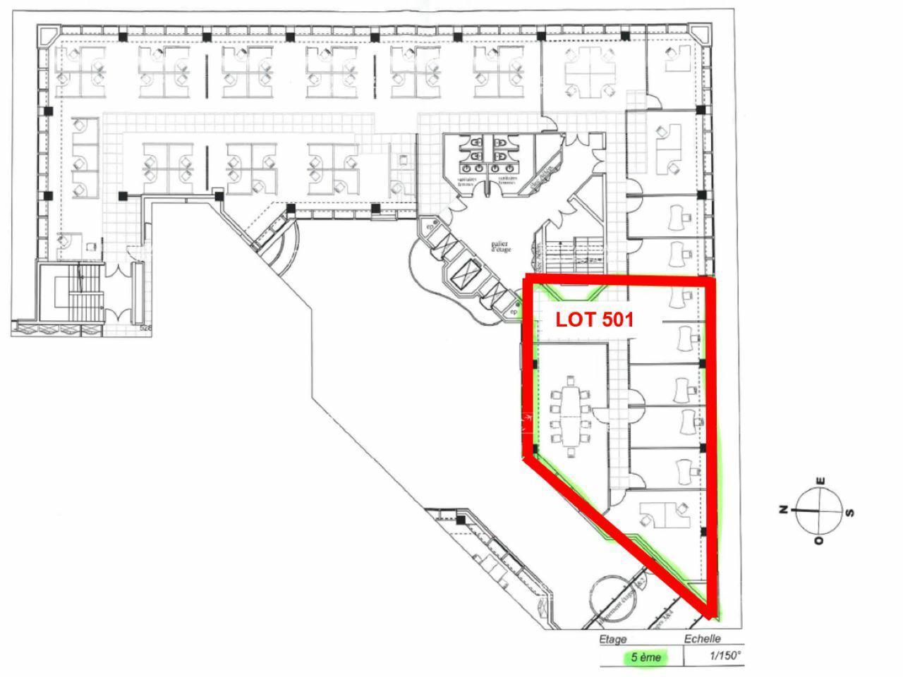
Lot R+5 : locaux en état d'usage
-
Local vélos en sous-sol










