




Location Local d'activité 360 m²
13600 La Ciotat
360 m²
130 €
HT/HC/m²/an
Disponibilité : Immédiate

Jean-Jacques BIAU
Description
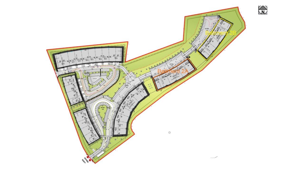
A louer Local d'activités 360 m²
Un local d'activité neuf de 360 m², dont 272 m² au RDC et 88 m² en mezzanine.
Il bénéficie de 4 places de stationnement attribuées, plus la possibilité de garer encore un véhicule devant le lot.
Adresse : La zone est localisée à La Ciotat.
Transports : Elle est desservie par les transports en commun, dont plusieurs lignes de bus.
Proximité : Elle se trouve à proximité de l'autoroute A50, facilitant les liaisons avec les grandes villes des alentours comme Marseille , Aubagne et Toulon.
Diversité des entreprises : La zone héberge plus de 350 entreprises de différentes tailles et dans de multiples secteurs.
Aménagement : Des services et infrastructures spécifiques sont aménagés pour les besoins des entreprises qui y sont implantées.
Services & prestations
Hauteurs
-
Hauteur libre : 7,00 mètre(s)
Accès véhicules
-
Accessibilité type véhicules
Equipements
-
Eclairage intérieur : Rampes tubes fluo.
-
Faux plafond : Dal. fibres minéral.
-
Porte d'accès plain-pied : 1
-
Sol bureaux : Moquette/Carrelage
-
Sols du bâtiment : Béton
Structure du bâtiment
-
Couverture : Bac acier isolé
-
Murs : Bardage double peau










