




508 Avenue Pierre Corneille
67200 Strasbourg
8 000 m²
Divisible dès 750 m²
à partir de 2 496 000 €
HT/HD
Disponibilité : 25 mois après accord

Nalan KOLAT
Description
BUREAUX NEUFS A CONSTRUIRE A LA VENTE
STRASBOURG SECTEUR HOPITAL HAUTEPIERRE - REF. OVBUR2317521
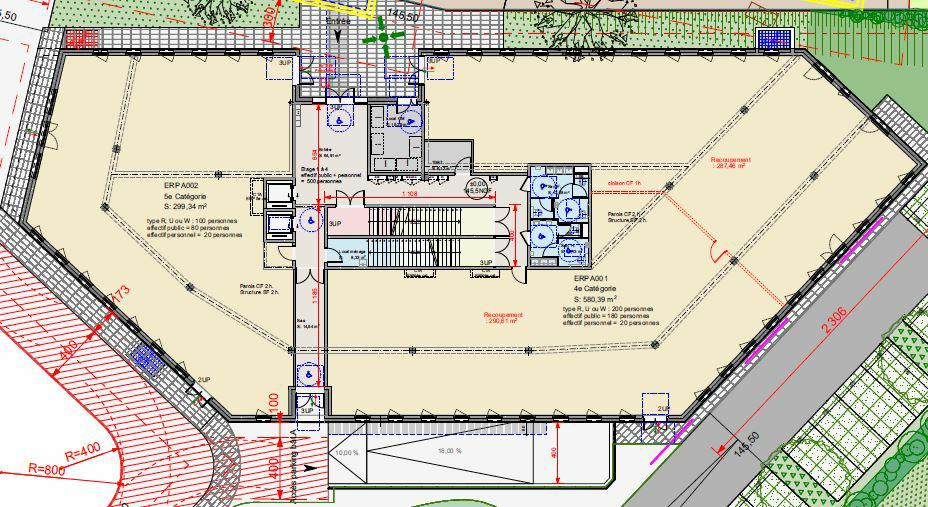
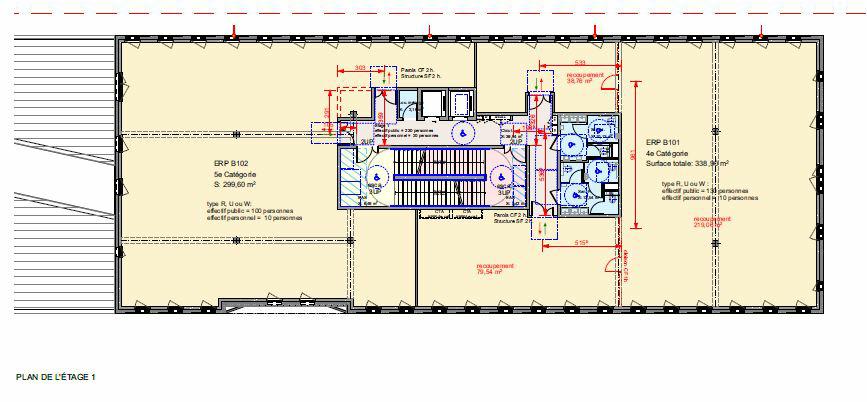
A VENDRE/A LOUER : 2 immeubles, à construire, en R+3 totalisant une surface de d'environ 8 140 m² SUL. Le bâtiment A d'une surface de 5 140 m² SUL, le bâtiment B une surface de 3 000 m² SUL. 108 emplacements de parking voitures et 22 parking vélos seront disponibles pour l'ensemble. Certains lots du rez-de-chaussée disposeront un jardin. RE 2020- Certification BREEAM VERY GOOD. Aux normes PMR et ERP cât. 4 aussi pour le 1er étage du bât. A.
Situé à l'Ouest d'Eurométropole de STRASBOURG, à la sortie d'AUTOROUTE A35 / A4, proche du CHU de Hautepierre, le projet "OXYMORE" profite d'une accessibilité multimodale parfaite. Il sera situé à proximité du demi-échangeur de l'A351, le reliant au CENTRE-VILLE DE STRASBOURG en moins de 10 minutes.
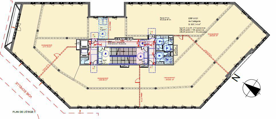
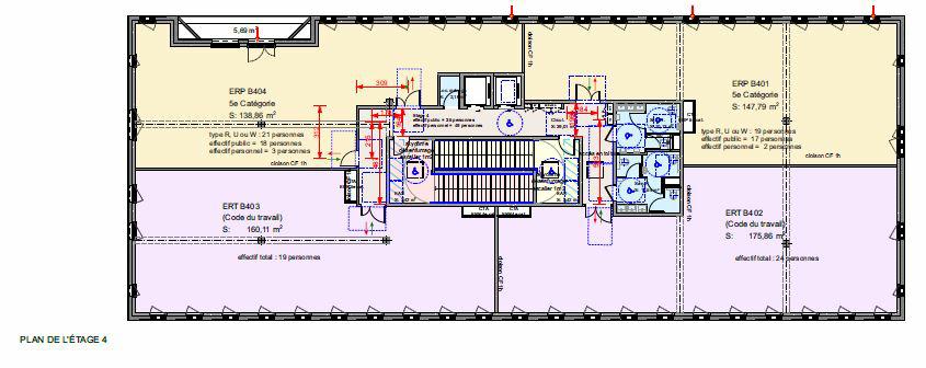
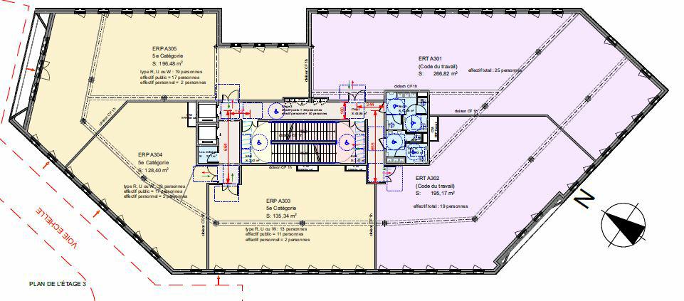
Se composant des deux bâtiments en R+3 dont plusieurs lots en ERP 4 sur les deux immeubles, à construire, d'une surface totalisant 8 140 m² environ qui se composent comme suit :
- le bâtiment A d'une surface totale d'environ 5 140 m², soit 1 250 m² par niveau.
- le bâtiment B d'une surface totale d'environ 3 000 m², soit 750 m² environ par niveau
Certains lots du rez-de-chaussée disposeront un jardin. Certification BREEAM VERY GOOD. Aux normes PMR et ERP cât. 4 pour le 1er étage du bât. A.
Un espace extérieur sera reservé pour certains lots du rez-de-chaussée, permettant ainsi les activités d'accueil d'enfants/CRECHES.
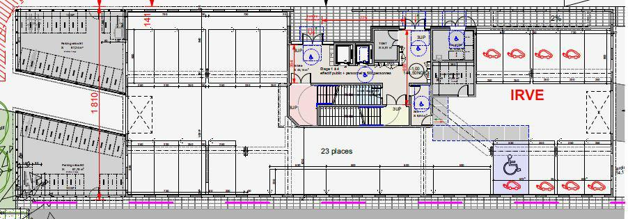
108 emplacements de PARKING, dont 50 à l'extérieur, 60 à l'intérieur, 22 places pourles vélos et 2 places visiteurs seront disponibles pour l'ensemble.
Les BUREAUX seront situés à proximité de l'arrêt du TRAM lignes A et D vous reliant à la GARE TGV de STRASBOURG. Des BUS desservent également la zone.
Prévisionnellement : 4ème Trimestre 2026
Sous réserve de pré-commercialisation de 50% minimum du programme
Que vous recherchiez à la LOCATION ou à l'ACQUISITION, n'attendez plus et faites nous part de votre projet et contactez BNP PBRE pour plus d'information et une visite !
Services & prestations
Aménagements
-
Accès Pers. Mobilité Réduite
-
Aménagement des bureaux : Espaces Ouverts
-
Hall d'accueil : Collectif Carrelage
-
Sanitaires : Parties communes
Equipements
-
Ascenseurs : 2 par Bâtiment - 8 personnes - 630 kg
-
Climatisation : Air rafraîchi -6°C température extérieure
-
Distribution chauffage : Réversible
-
Eclairage Bureaux : Luminaires encastrés Détecteurs de présence de la luminosité
-
Faux plafond : Dal. fibres minéral.
-
Fenêtres : Double vitrage
-
Plinthes techniques périphériques : 2 compartiments
-
Revêtement mural : Peint
-
Sol bureaux : Moquette Dalles U3P3E1C0
Hauteurs
-
Hauteur sous-plafond : 2,60 m
Prestations de service
-
Parking : 50 places ext. prix : 6 900 €/U/HT + 57 places couvertes prix : 15 900€/U/HT dont 2 places visiteurs
-
Sécurité : Contrôle d'accès par badge
Normes, Certifications et Labels
-
Catégorie ERP : 4 & Catégorie 5
-
Certification : BREEAM
Type / Etat du bâtiment
-
Etat de l'immeuble : Neuf
Informations complémentaires
-
Fibre optique en attente dans les gaines
-
Toiture panneaux photovoltaïque










