




Vente Bureau 1 933 m²
33520 Bruges
1 933 m²
3 500 000 €
HT/HD
Disponibilité : Après accord

Ludovic MICHELON
Description
Bureaux à vendre à Bruges – Immeuble indépendant stratégique en bordure de Rocade
Immeuble indépendant à l’acquisition sur une vaste parcelle. Immeuble à usage de bureaux bénéficiant d'une visibilité de premier plan en bordure de Rocade. Nombreux parkings disponibles.
BNP Paribas Real Estate vous propose cet immeuble de bureaux à vendre à Bruges, une opportunité rare sur le marché de l'immobilier d'entreprise en Gironde, bénéficiant d'une visibilité de premier ordre en bordure de la rocade bordelaise, d'un grand foncier et de parkings généreux, et idéalement positionné pour des entreprises recherchant accessibilité, fonctionnalité et potentiel de développement.
Une implantation tertiaire attractive à Bruges
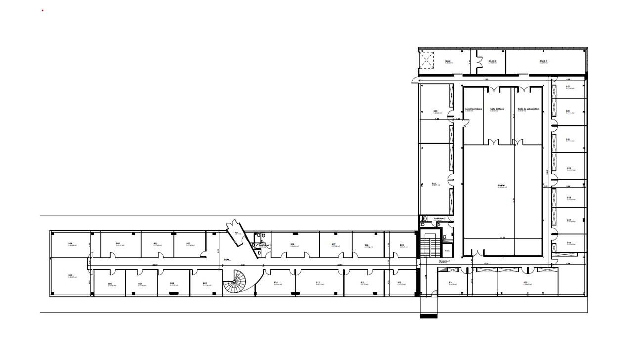
Situé dans la commune dynamique de Bruges, cet immeuble indépendant d'environ 1 933 m² de bureaux se déploie sur une vaste parcelle sécurisée avec portail automatique et contrôle d'accès. La configuration du bâtiment, répartie sur deux niveaux en bureaux cloisonnés, offre une organisation claire des espaces et une modularité adaptée aux besoins de PME, services, siège social ou laboratoires d'activités tertiaires.
La localisation en bordure de la rocade bordelaise garantit une visibilité exceptionnelle et un accès rapide vers l'ensemble de l'agglomération bordelaise, tandis que la proximité de la ligne de tramway C (station Gare de Bruges) et de plusieurs lignes de bus renforce l'attractivité du site pour vos collaborateurs et visiteurs.
Le foncier résiduel disponible permet également des droits à construire supplémentaires, offrant une marge de développement intéressante pour un projet sur mesure.
Atouts clés du bien
- Immeuble indépendant à usage de bureaux bénéficiant d'une visibilité en premier plan
- Emplacement stratégique en bordure de la rocade bordelaise
- Nombreux parkings (70 places), apportant confort et accessibilité
- Plateaux aménagés en bureaux fonctionnels et cloisonnés
- Parcelle sécurisée avec portail automatique
- Foncier résiduel avec potentiel de construction complémentaire
Disponible immédiatement après accord, cet immeuble constitue une offre d'implantation ou d'investissement performante à proximité de Bordeaux, dans une zone d'activités bien desservie et en plein développement.
Autres bureaux à vendre à Bruges et Bordeaux
Consultez notre sélection complète de bureaux à vendre à Bruges 33520
Découvrez également ces bureaux à vendre de 768 m² divisibles à Bruges
Explorez ces bureaux à vendre de 4 331 m² divisibles à Bordeaux
Services & prestations
Aménagements
-
Bureaux cloisonnés
-
Sanitaires
Equipements
-
Ascenseurs
-
Climatisation : Réversible
-
Câblage informatique : En périphérie
-
Eclairage Bureaux : Luminaires encastrés
-
Faux plafond
-
Faux plancher
-
Sol bureaux : Moquette/Carrelage
Prestations de service
-
Parking : 79 Places 1 place PMR et 3 bornes électriques
-
Sécurité : Contrôle d'accès Portail automatique
Type / Etat du bâtiment
-
Etat de l'immeuble : Etat d'usage
-
Etat des locaux : Etat d'usage
-
IGH / Code du travail
-
Immeuble indépendant
Informations complémentaires
-
Local atelier










