




Vente Bureau 768 m²
33520 Bruges
768 m²
Divisible dès 375 m²
1 550 000 €
HT/HD
Disponibilité : Immédiate

Ludovic MICHELON
Description
Bureaux à vendre Bruges – Immeuble de bureaux indépendant à acheter à Bruges‑Bordeaux Lac
BNP Paribas Real Estate vous propose à l'achat un immeuble de bureaux indépendant. Au sein de la zone tertiaire de Bruges-Bordeaux Lac, emplacement attractif proche des axes routiers (accès rocade à 5 min), du tramway et du centre-ville de Bordeaux. Ces locaux fonctionnels offre une bonne flexibilité et un confort de travail optimal. L'immeuble va faire l'objet d'un nettoyage de sa façade. Site clos et sécurisé. Nombreuses places de parking disponibles (35 pkg ext). Opportunité d'acquisition par plateau.
BNP Paribas Real Estate vous propose à l'achat un immeuble de bureaux indépendant à Bruges, idéalement situé dans la zone tertiaire de BrugesBordeaux Lac, un secteur professionnel attractif de la métropole bordelaise. Ce bien représente une opportunité d'investissement en immobilier d'entreprise pour les sociétés recherchant un immeuble de bureaux fonctionnel et bien desservi, proche des grands axes et des transports en commun.
Emplacement stratégique bureaux à vendre Bruges
L'emplacement de cet immeuble de bureaux à vendre à Bruges vous offre des avantages opérationnels notables :
Accès rapide à la rocade bordelaise (à env. 5 minutes), facilitant les déplacements vers Bordeaux et la métropole.
Proximité du tramway, offrant une liaison efficace vers la gare de Bordeaux SaintJean et le centreville.
Situe à quelques minutes du centreville de Bordeaux, renforçant la visibilité et l'attractivité professionnelle du site.
Environnement tertiaire dynamique, à proximité de services, commerces et restaurants.
Grâce à cette localisation, investir dans des bureaux à vendre à Bruges Bordeaux Lac permet de bénéficier d'un emplacement professionnel structuré, attractif tant pour l'usage propre que pour la valorisation patrimoniale.
Description du bien bâtiment tertiaire indépendant
Cet immeuble de bureaux à vendre se distingue par ses caractéristiques techniques et fonctionnelles :
Immeuble de bureaux indépendant sur une parcelle dédiée, offrant autonomie et visibilité.
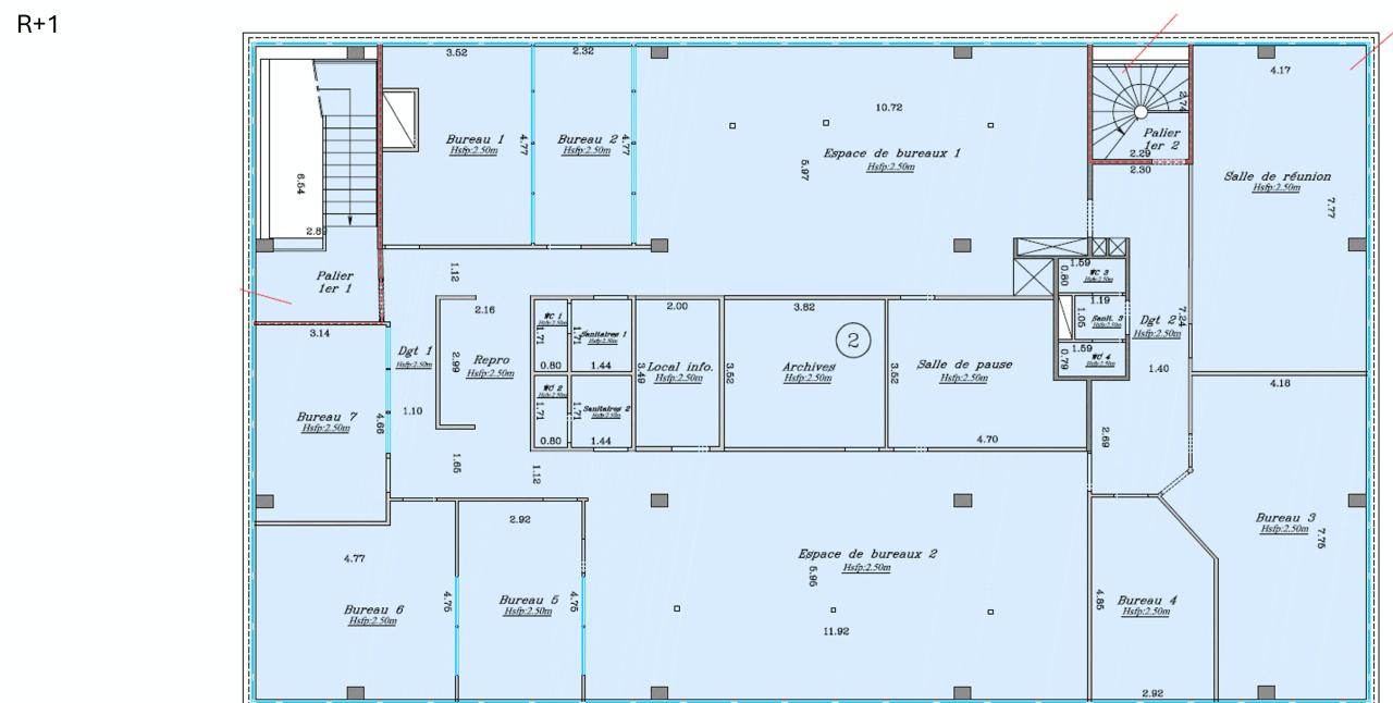
Espaces intérieurs flexibles, pensés pour une organisation modulable (openspace, bureaux cloisonnés, zones de réunion).
Confort de travail optimal : locaux lumineux, bien agencés et adaptés à divers besoins professionnels.
Site clos et sécurisé, garantissant sérénité et confidentialité aux occupants.
Nettoyage de façade prévu, offrant une présentation soignée et une image professionnelle valorisée.
Cette configuration est adaptée à des entreprises souhaitant acheter un immeuble de bureaux en Gironde pour y implanter leurs équipes ou renforcer leur présence sur un marché dynamique.
Parkings et accessibilité
Un atout significatif de ce bien :
35 places de parkings extérieures privatives, facilitant le stationnement pour vos collaborateurs et visiteurs.
Ce niveau de stationnement répond à une attente forte des utilisateurs professionnels dans les zones tertiaires et constitue un critère majeur dans la décision d'achat et d'usage quotidien.
Un choix pertinent pour votre entreprise
Acheter cet immeuble de bureaux à Bruges Bordeaux Lac, c'est :
Bénéficier d'une accessibilité renforcée par tramway, rocade et proximité de Bordeaux.
Intégrer un environnement économique dynamique, très fréquenté par les entreprises.
Profiter d'un site sécurisé avec parking, indispensable pour la vie de bureau quotidienne.
Ce bien est particulièrement adapté aux organisations cherchant une implantation durable en immobilier d'entreprise, qu'il s'agisse d'un siège social, d'une direction régionale ou d'un centre d'affaires à Bordeaux métropole.
Offres bureaux à vendre à découvrir
Bureaux à vendre 1 267 m² à Bruges Offre de grande surface tertiaire indépendante avec potentiel d'aménagement.
Bureaux à vendre 640 m² à Bruges Opportunité tertiaire adaptée aux tailles moyennes d'entreprise.
Ne manquez pas cette opportunité d'acheter un immeuble de bureaux à Bruges Bordeaux Lac !
Pour organiser une visite ou obtenir plus d'informations, contactez nos équipes au 05 56 44 09 12.
Services & prestations
Aménagements
-
Accès Pers. Mobilité Réduite
-
Aménagement des bureaux : Cloisonnés/Ouverts
-
Bureaux cloisonnés
-
Complexe Salle de réunion
-
Sanitaires : Privatif(s)
Equipements
-
Eclairage Bureaux : LED
-
Sol bureaux : Moquette
Prestations de service
-
Cafétéria : Cuisine
-
Parking : 35 Places
Normes, Certifications et Labels
-
Catégorie ERP : RDC ERPéable
Type / Etat du bâtiment
-
Etat de l'immeuble : Seconde main
Informations complémentaires
-
Entrée indépendante, Plateaux traversants et lumineux










