



Vente Local d'activité 892 m²
37300 Joué-lès-Tours
892 m²
Divisible dès 429 m²
à partir de 579 569 €
HT/HD
Disponibilité : Immédiate

Bertrand BEGAT
Description
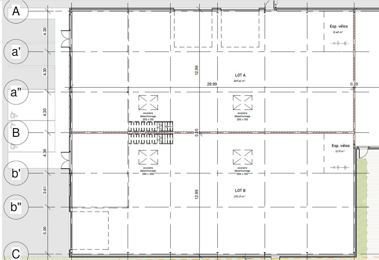
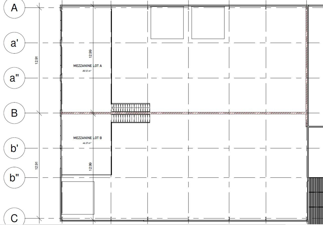
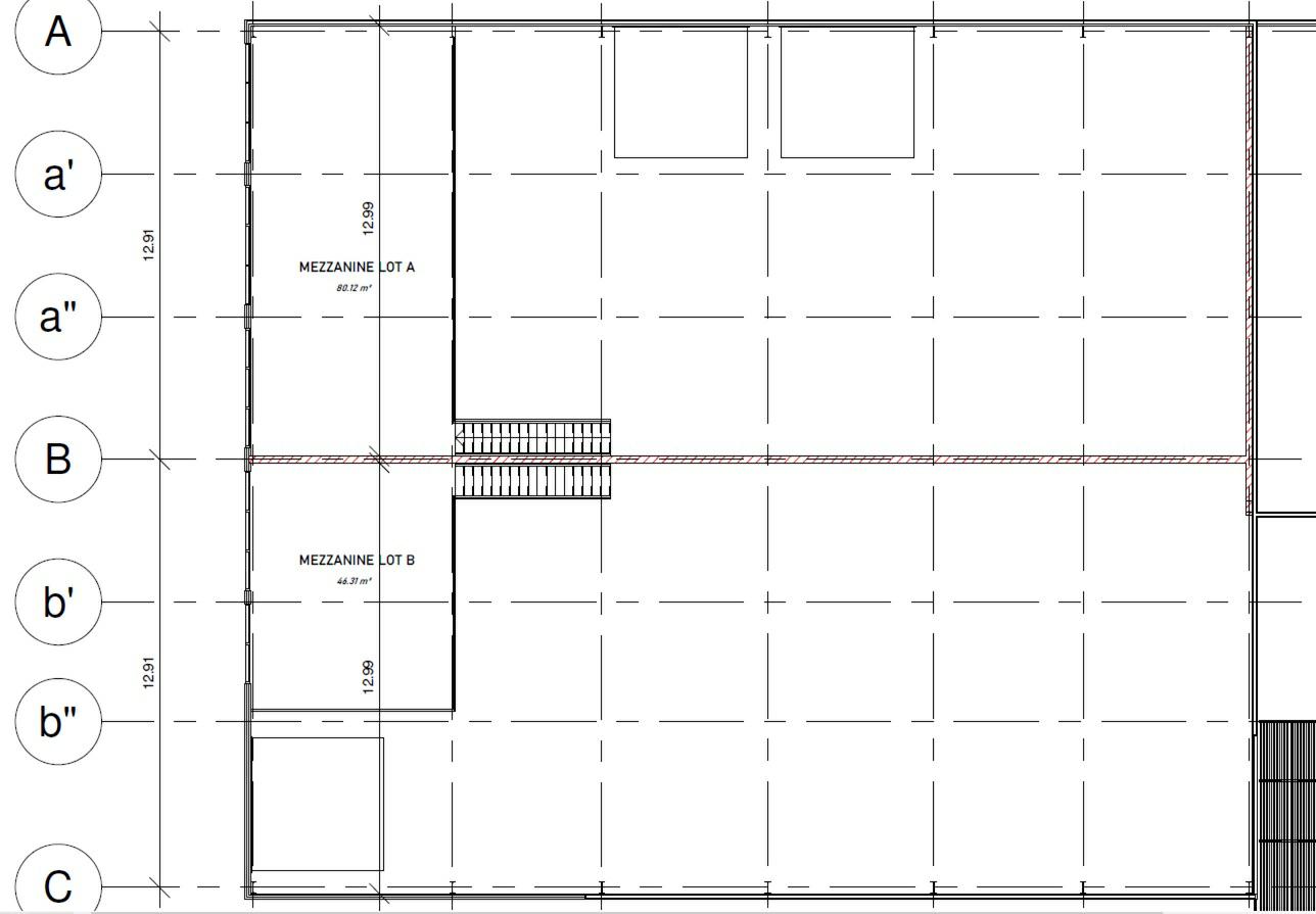
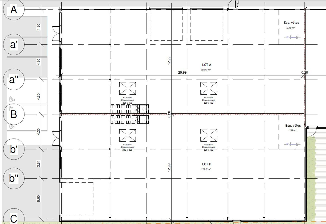
Cellules d'activités neuves
- Joué les Tours - A vendre
Dans la zone d'activités de la Liodière à Joué les Tours - A vendre dans un bâtiment neuf, 858 m² de locaux d'activités avec mezzanine de bureaux. Belle hauteur sous plafond, trois portes sectionnelles et places de parking.
Divisible en deux cellules de 463 m² (dont 80 m² de mezzanine) et 430 m² (dont 46 m² de mezzanine).
Locaux livrés bruts de béton, fluides en attente
A proximité du périphérique et des grandsd axes.
Services & prestations
Hauteurs
-
Hauteur libre : : minutes 5 m
Accès véhicules
-
Accessibilité type véhicules : Moyens porteurs
Equipements
-
Eclairage naturel : : exutoires de fumée
-
Porte d'accès plain-pied : 3 (dont 2 dans le lot A)
-
Sols du bâtiment : Béton quartzé
Type / Etat du bâtiment
-
Etat de l'immeuble : Neuf
-
Etat des locaux : Neuf
-
Etat du terrain : Voirie lourde
Structure du bâtiment
-
Charpente : Métallique
-
Couverture : Bac acier isolé
-
Murs : Bardage double peau
Informations complémentaires
-
A aménager : livrés bruts de béton, fluides en attente, Site clos










