




Location Bureau 125 m²
67400 Illkirch-Graffenstaden
125 m²
Loyer sur demande
Disponibilité : Immédiate

Nalan KOLAT
Description
BUREAUX A LA LOCATION - LE GAUSS
PARC D'INNOVATION -ILLKIRCH-GRAFFENSTADEN - REF. OLBUR2532499
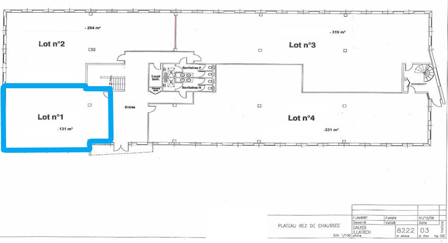
BUREAUX A LOUER : Bureaux d'une surface d'environ 125 m² PCI environ situés au rez-de-chaussée plain-pied dans un immeuble soigné au Parc d'Innovation de Strasbourg à Illkirch-Graffenstaden. Les bureaux sont aménagés, et rénovés. L'immeuble est fibré. 10 places de parking extérieures sont attitrées au lot et incluses dans le loyer. A visiter rapidement!
BUREAUX A LOUER : Découvrez l'Immeuble LE GAUSS qui dispose des BUREAUX d'une surface d'environ 125 m² situés au rez-de-chaussée plain-pied, ainsi que 5 places de PARKING à l'extérieur, disponible à la location dès le 01/09/25!
Situés dans la troisième commune de l'Eurométropole de STRASBOURG, à Illkirch-Graffenstaden, proche du zone commerciale d'Illkirch-Baggersee.
Cette partie Est d'Illkirch-Graffenstaden se trouve à seulement 15 minutes du CENTRE VILLE DE STRASBOURG et de l'AEROPORT d'Entzheim. Le P2I s'étale sur plus de 160 hectares.
Le Parc d'Innovation (PII) acceuil toute activité en les domaines de la RECHERCHE et de l'INNOVATION, notamment en biotechnologie, en chimie, en informatique. Il est
- relié aux axes AUTOROUTIERS (A35/A4) et
- desservi par les transports en commun (TRAM ligne A et E et BUS L63).
L'offre immobilière du Parc d'innovation s'étale sur plus de 200 000 m² de surface tertiaire, de 70 000 m² à l'enseignement supérieur et à la recherche.
L'Université international de l'Espace (International Space University- ISU), avec ses établissements d'enseignement supérieur scientifique, des sociétés d'accompagnement à l'innovation et technologie, soit plus d'une centaine d'organismes et de sociétés sont installés dans cet lieu unique dédié à la haute technologie, l'innovation et de science avec près de 7000 personnes présentes sur le site.
Dans un environnement international, disposant d'un cadre de travail idéal, proche d'un FORET, disposant des nombreux SERVICES comme la RESTAURANTS, hôtellerie 4*, salle de sport, CRECHE d'entreprise, centre de séminaires et de conférences .
Les informations sur les risques auxquels ce bien est exposé sont disponibles sur le site Géorisques : www. georisques. gouv. fr
Consultez BNP PARIBAS REAL ESTATE pour connaître le détail des tarifs, et planifiez votre visite dès à présent!
Services & prestations
Aménagements
-
Accès Pers. Mobilité Réduite
-
Aménagement des bureaux : Cloisonnés
-
Hall d'accueil
-
Sanitaires : Parties communes
Equipements
-
Climatisation : Réversible
-
Faux plafond : Dal. fibres minéral.
-
Faux plancher : Technique
-
Fenêtres : Double vitrage et stores motorisés
-
Revêtement mural : Toile de verre peinte
-
Sol bureaux : Moquette
Prestations de service
-
Fitness : Salle de sport au sein du parc
Type / Etat du bâtiment
-
Etat de l'immeuble : Très bon
-
Etat des locaux : Rénové
-
Immeuble copropriété
Informations complémentaires
-
Hôtels et restaurants à proximité, Vues dégagées
-
Cabinets médicaux à proximité










