




Location Local d'activité 601 m²
35510 Cesson-Sévigné
601 m²
160 €
HT/HC/m²/an
Disponibilité : Immédiate

Kevin LEVAIRE
Description
CESSON-SEVIGNE - ZA DES PEUPLIERS
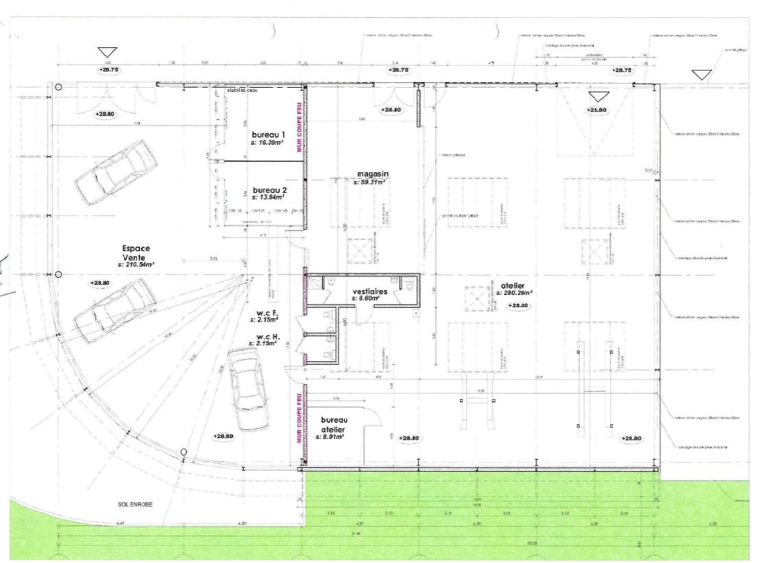
BNP PARIBAS REAL ESTATE vous propose la location de ce bâtiment indépendant de 600 m² idéalement situé à proximité du centre-ville de Cesson-Sévigné et des commerces.
Il est composé d'un espace accueil avec un très beau showroom, des bureaux d'accompagnement, d'un atelier, accessible par une porte sectionnelle de plain-pied,
Le site dispose d'un foncier clos de 2 800 m² permettant du stockage extérieur.
Opportunité rare, disponibilité immédiate.
Cette zone est située à la sortie de l'ECOPOLE SUD EST; 1ère Zone économique de Bretagne, à l'entrée de Rennes Est et à la sortie de l'axe de Paris
De nombreuses enseignes commerciales en BtoB et BtoC y sont présentes ainsi que de nombreux services : restauration, hôtels ().
Proximité immédiate de la rocade et du centre-ville de Rennes.
Services & prestations
Equipements
-
Câblage informatique : RJ 45
-
Eclairage Bureaux : Luminaires encastrés
-
Eclairage intérieur : Néon
-
Eclairage naturel : Skydomes
-
Porte d'accès plain-pied : 1
-
Sol bureaux : Carrelage
-
Sols du bâtiment
Type / Etat du bâtiment
-
Etat de l'immeuble : Seconde main
-
Etat du terrain : Goudronné
-
Immeuble indépendant
Structure du bâtiment
-
Charpente : Métallique
-
Couverture : Bac acier isolé
-
Murs : Bardage double peau
Prestations de service
-
Parking
Aménagements
-
Accueil
-
Aménagement des bureaux : Cloisonnés/Ouverts
-
Bureaux cloisonnés
-
Locaux sociaux
-
Sanitaires
Extérieurs
-
Aire de manoeuvre
-
Aire de stockage extérieure
Informations complémentaires
-
Chauffage par Aérothermes Gaz, Chauffage électrique










