- Paramétrer l'affichage
Actualiser la recherche quand je déplace la carte
Lorsque cette option est activée, les résultats de recherche s'actualisent en fonction du positionnement de la carte.Paramétrer la zone de distance
- Paramétrer la zone
Lorsque cette option est activée, une zone de distance s'affiche autour d'un point sélectionné.
Personnalisez et délimitez la zone de distance en fonction du moyen de locomotion. Par défaut, la zone est programmée à 5 min à pieds.
Moyen de locomotion :
en voitureen transportsà véloà piedsTemps de trajet :
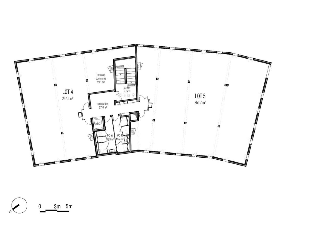
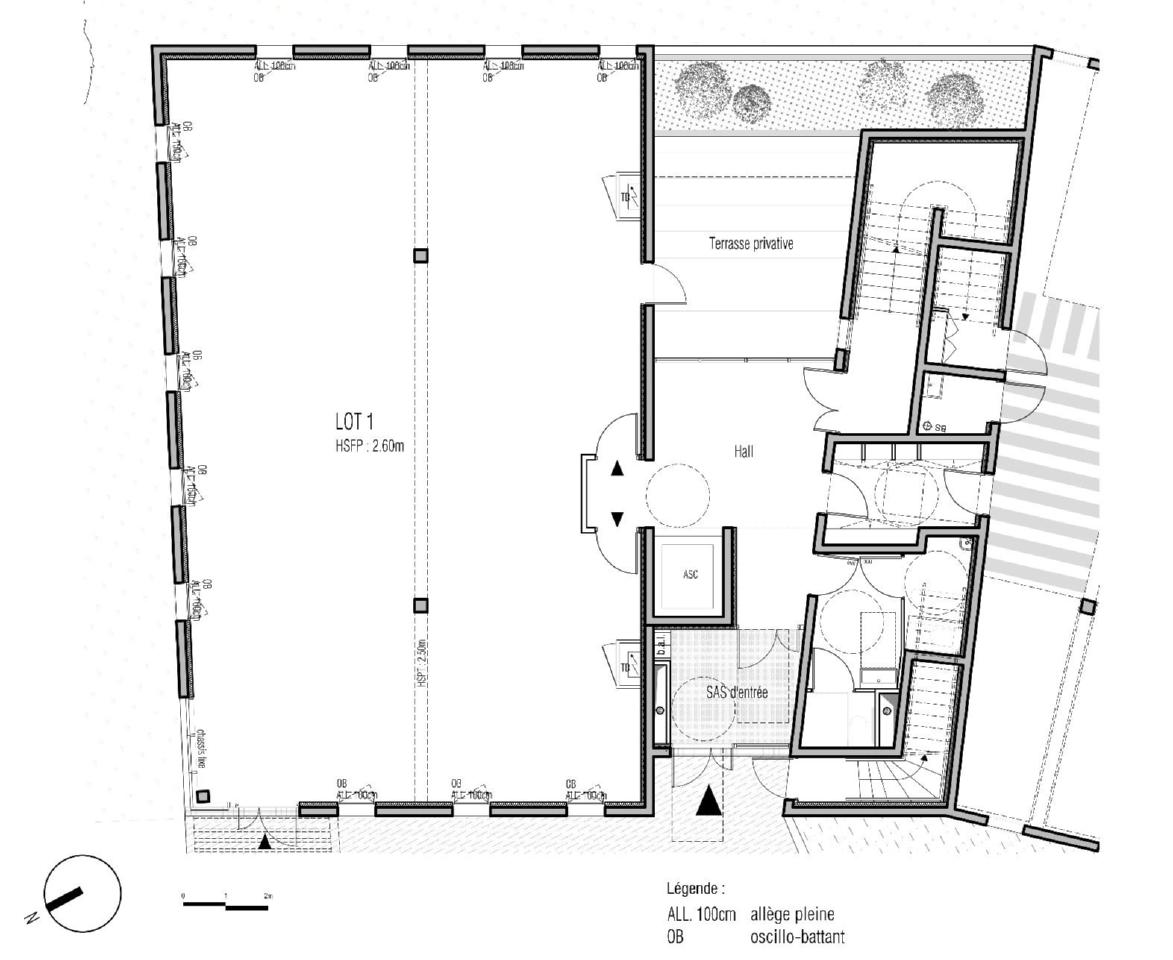
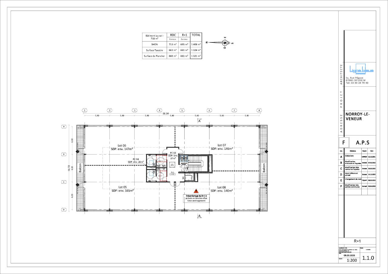
Vente Bureaux en France
853 bureaux à vendre
Comparateur

Bureau à vendre : Tout savoir
Acheter un bureau est un pas important pour une entreprise. Une fois le chiffre d’affaires stable, l’idée d’acquérir des locaux professionnels s’installe bien souvent. Quels avantages versus la location ? Où s’installer pour rester performant et conserver ses talents, ou en séduire de nouveaux ?
Achat des bureaux : comment se décider et où s’installer ?
Si votre activité existe depuis un certain temps et continue d’évoluer de façon stable, vous vous posez peut-être la question de l’achat des bureaux. Parmi les principaux arguments qui peuvent vous motiver à acheter de nouveaux bureaux : éviter les loyers changeants et devenir propriétaire d’un patrimoine professionnel. Que vous achetiez des bureaux au nom de votre entreprise ou en votre propre nom, investir dans de l’immobilier tertiaire vous évite des déménagements imprévus.
>>> Déménager ses bureaux : les 10 étapes-clés
Si vous considérez diversifier votre patrimoine immobilier, vous allez vous demander où investir. Parmi tous les bureaux à vendre, que choisir ? Car si les bureaux en vente sont abondants, il vous faut la perle rare.
La localisation de vos nouveaux bureaux joue un rôle important. Elle doit être en accord avec votre budget mais aussi avec les valeurs et besoins de votre activité et de vos employés. Est-il important de vous trouver au centre d’une grande ville comme Strasbourg, Bordeaux ou Toulouse ? Un écoquartier émergeant, tel que Saint Sauveur à Lille ou Flaubert à Rouen, est-il plus représentatif des valeurs que votre entreprise incarne ? Ou peut-être une zone industrielle ou réhabilitée convient plus à votre activité ? Les quartiers d’affaires déjà bien établis, tels que La Défense, la Part-Dieu ou l’Euroméditerranée, restent toujours des valeurs sûres pour acheter des bureaux qu’il s’agisse d’un investissement ou du futur siège de votre société. Etudiez avec minutie vos nécessités avant de procéder à l’achat et renseignez-vous auprès de votre consultant en immobilier d’entreprise.
>>> Nos experts sont là pour répondre à toutes vos questions concernant vos projets immobiliers
Acheter des bureaux : les nouvelles tendances
L’immobilier ne cesse d’évoluer et de nouvelles tendances sont aujourd’hui à prendre en compte lors de l’achat de bureaux. Le bien-être des employés et la digitalisation de l’immobilier sont les plus marquantes. Ces tendances changent les enjeux du monde de travail. Acquérir des bureaux connectés peut vous permettre d’être en adéquation avec les nouveaux modes et organisations de travail. Par ailleurs, les outils auxquels vous aurez accès vous permettront d’optimiser les performances de vos salariés et donc de votre activité.
Si vous achetez des bureaux pour investir, étudiez bien le marché et les besoins des utilisateurs. Avec l’arrivée de nouveaux modes de travail, un espace de coworking peut se relever être plus avantageux selon le quartier où vous achetez.























































































































































































































































































































































































































































































































































































