




Hôtel Fortuny
9 Rue Fortuny
75017 Paris
983 m²
25 000 000 €
HT/HD
Disponibilité : Nous consulter

Pierre BITTON
Description
A deux pas du Parc Monceau, BNP Paribas Real Estate vous propose à la vente un très bel Hôtel Particulier du 19e siècle, entièrement rénové, aux beaux volumes haut de gamme alliant prestige historique et fonctionnalité contemporaine.
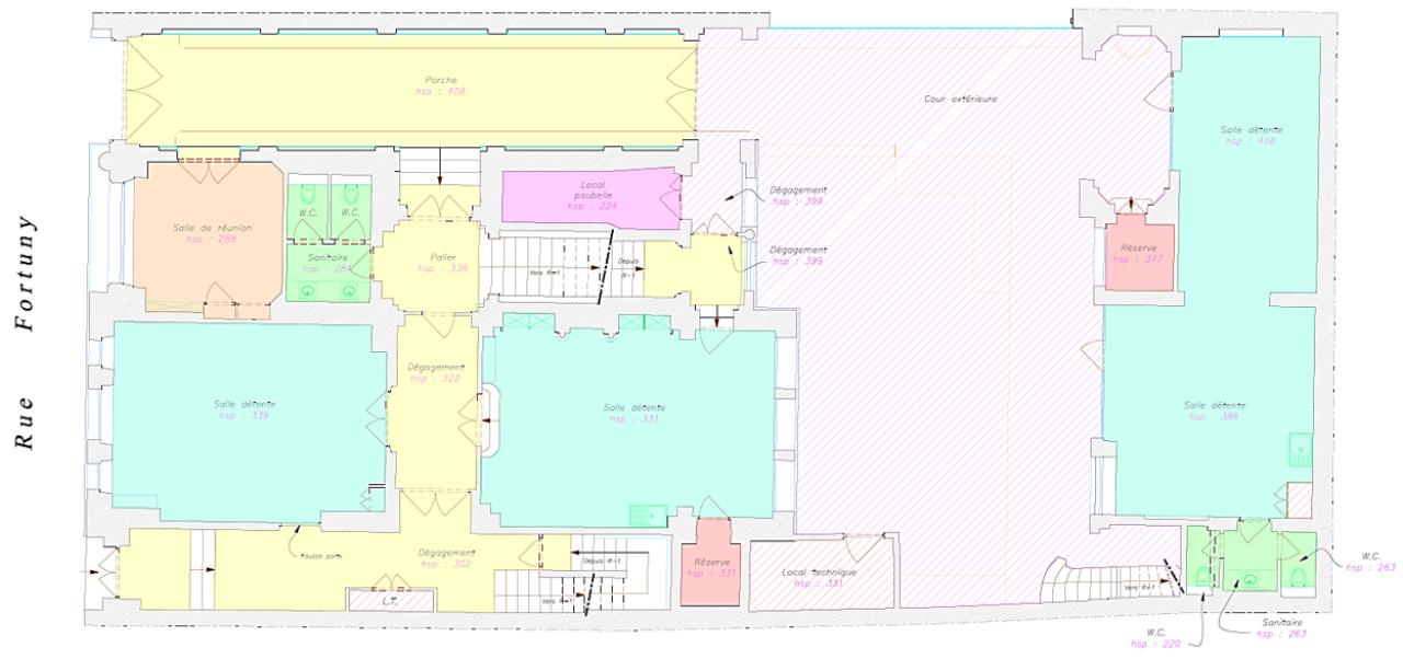
Cet immeuble de standing est constitué de deux bâtiments agencés autour d'une très belle cour intérieure arborée et aménagée :
un bâtiment sur rue élevé en R+3 avec combles sur sous-sol et
un bâtiment sur cour élevé en R+1, accessible via un passage cocher.
Il est agrémenté de nombreuses prestations de qualité :
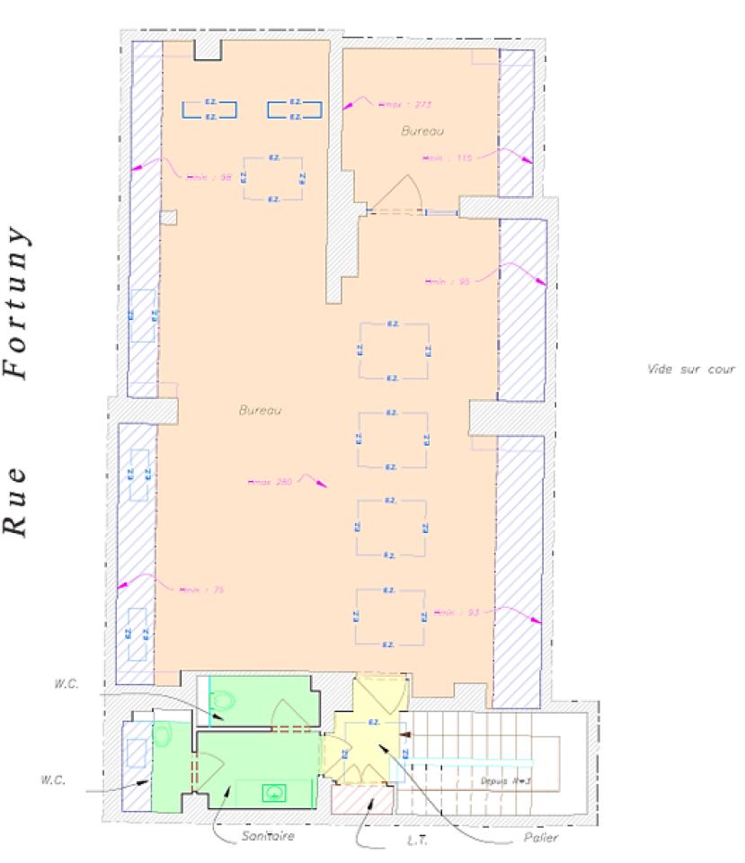
Des plateaux traversants lumineux et modulables
De très belles hauteurs sous plafonds
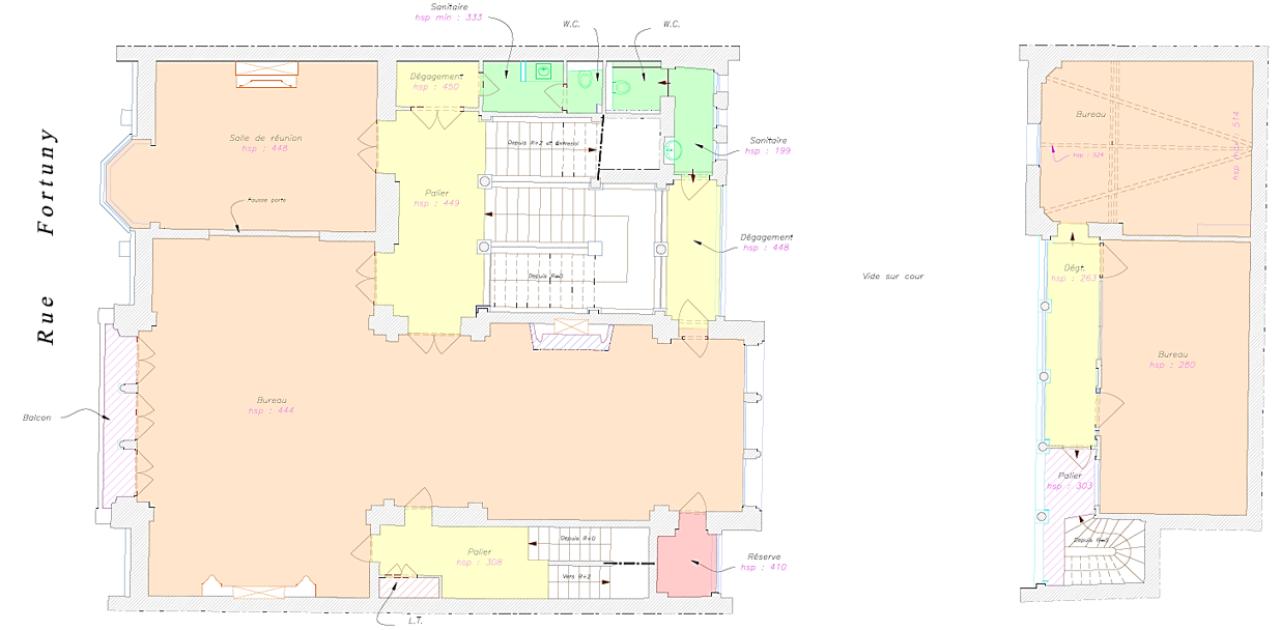
De nombreuses salles de réunion
Des salles de détente avec cuisines au RDC et une salle de sport avec douches en sous-sol
Balcons aux 1er et 2e étages
2 escaliers de part et d'autre du bâtiment
Des matériaux de qualité
Des éléments protégés et classés (façades, toitures, escalier d'honneur, pièces patrimoniales et bâtiment en fond de cour)
Des réserves
un actif parfaitement connecté : 2 lignes de métro, 5 lignes de bus, 1 ligne de RER et de grands axes de la Rive Droite à toute proximité.
N'hésitez pas et venez découvrir ce bien d'exception.
Services & prestations
Aménagements
-
Accueil
-
Aménagement des bureaux : Cloisonnés/Ouverts
Equipements
-
Climatisation
-
Douche : 4
Prestations de service
-
Parking : Et trottinettes
Extérieurs
-
Terrasses - jardins : Et cour intérieure
Type / Etat du bâtiment
-
Etat de l'immeuble : Seconde main
-
Immeuble indépendant
-
Type d'immeuble : Hôtel particulier partiellement classé
Informations complémentaires
-
Internet haut débit (double fibre)
-
Plusieurs salles de réunion
-
Salle de sport au sous-sol










