




6 Rue du Général Camou
75007 Paris
1 084 m²
15 000 000 €
HT/HD
Disponibilité : Immédiate

Pierre BITTON
Description
EXCEPTIONNEL - A 5 MINUTES A PIED DE LA TOUR EIFFEL
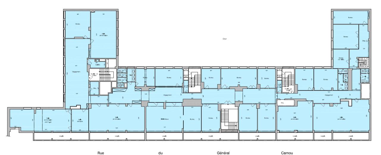
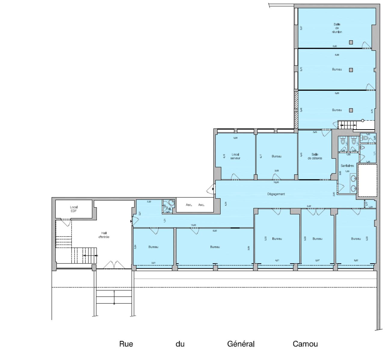
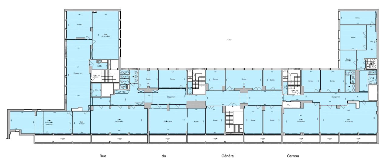
PLUS DE 1 000 M² DE BUREAUX A VENDRE
Au sein du prestigieux 7e arrondissement, BNP Paribas Real Estate vous propose des bureaux situés aux RDC et 1er étage d'un immeuble mixte, aux prestations de qualité :
- Un accès indépendant sur rue avec un espace d'accueil en rez-de-chaussée,
- Une configuration rationnelle permettant un aménagement totalement modulable,
- Des espaces de travail en premier jour donnant sur la rue ou sur un jardin,
- Des locaux en très bon état,
- Des loggias tout le long du 1er étage côté rue.
*Surfaces en cours de vérification.
Services & prestations
Aménagements
-
Accueil
Equipements
-
Climatisation : Partielle
-
Faux plafond
-
Plinthes techniques périphériques : Pour le câblage informatique
-
Sol bureaux : Moquette
-
Type de chauffage : Collectif
Prestations de service
-
Restauration : Kitchenette
Type / Etat du bâtiment
-
Immeuble copropriété
Informations complémentaires
-
Accès indépendant sur rue, Salle informatique










