




6 Rue de la Haye
67300 Schiltigheim
143 m²
110 €
HT/HC/m²/an
Disponibilité : Immédiate

Nalan KOLAT
Description
BUREAUX A LOUER - STRASBOURG - Immeuble LE MIKADO
ESPACE EUROPEEN DE L'ENTREPRISE - Réf OLBUR2316913
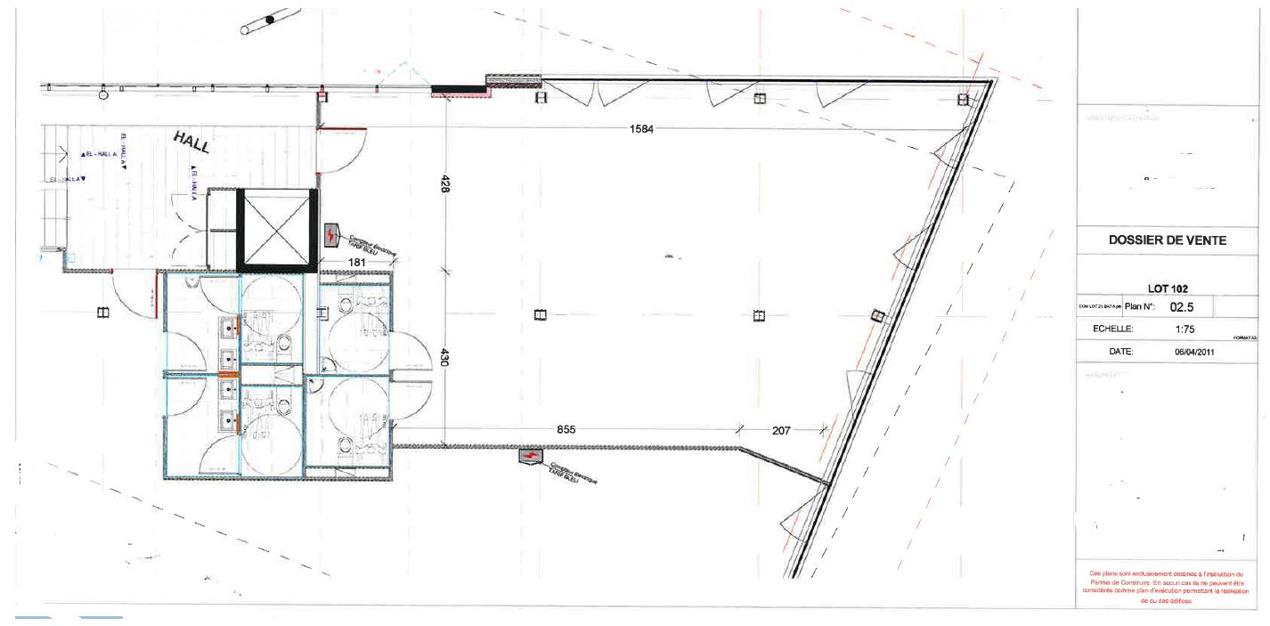
A louer, des bureaux cloisonnés, climatisés et fibrés, d'une surface de 140 m² environ PCI. Ils sont situés au 1er étage de l'immeuble Le MIKADO, et accessibles par ascenseur (normes PMR).
Le lot se compose d'un grand open-space, 4 bureaux, un local archives, un espace kitchenette et deux sanitaires privatifs.
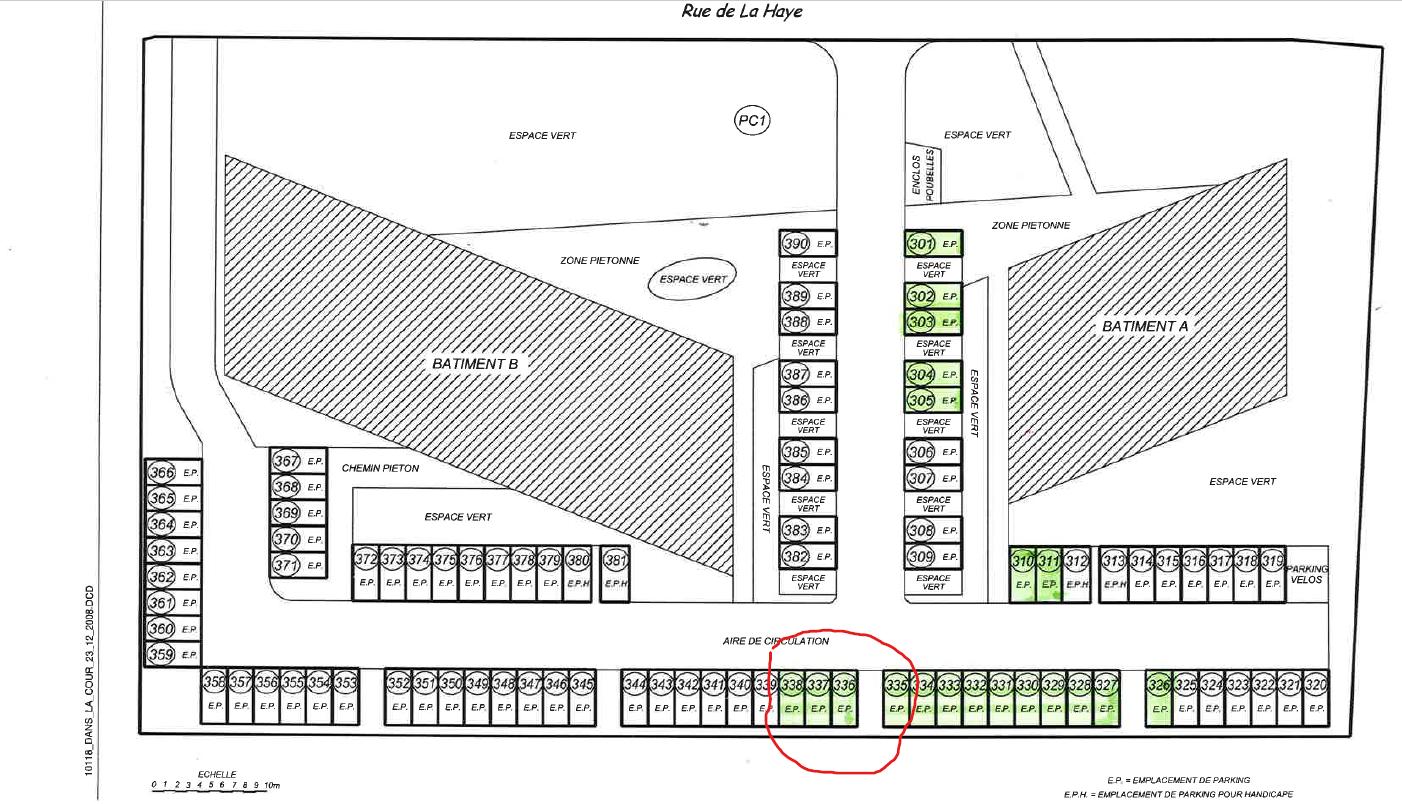
Nombreuses places de parking extérieures . Disponibilité immédiate.
Ces bureaux sont modernes et lumineux, au sein de l'immeuble LE MIKADO, sont situés à l'ESPACE EUROPEEN DE L'ENTREPRISE, le premier PARC TERTIAIRE de STRASBOURG.
Le lot disponible se compose de BUREAUX déjà aménagés, cloisonnés, climatisés, câblés et fibrés, avec un espace kitchenette et des sanitaires privatifs. Il est accessible par un ascenseur aux normes PMR.
LE MIKADO est un immeuble d'architecture moderne et dynamique.
Le BUS reliant la GARE TGV de STRASBOURG à l'ESPACE EUROPEEN DE L'ENTREPRISE en 10 minutes s'arrête à proximité de l'immeuble.
Des pistes cyclables desservent également le parc et permettent de rejoindre le CENTRE-VILLE de STRASBOURG et la GARE TGV en une quinzaine de minutes. Enfin, le pôle est accessible depuis les axes AUTOROUTIERS (A4 / A35) que l'on vienne du nord de Strasbourg ou du Sud.
Aux alentours : de nombreux services comme des RESTAURANTS, CRECHES, hôtel, centre de formation, SALLE DE SPORT.
Aujourd'hui, ce sont 500 entreprises et institutionnels, 9 000 salariés et plus de 1 000 étudiants qui sont installés sur le secteur.
DPE en cours de réalisation.
Les informations sur les risques auxquels ce bien est exposé sont disponibles sur le site Géorisques : www. georisques. gouv. fr
Contactez-nous pour une visite !
Services & prestations
Aménagements
-
Accès Pers. Mobilité Réduite
-
Aménagement des bureaux : Cloisonnés Partiellement
-
Salle informatique
-
Sanitaires : Privatif(s)
Equipements
-
Ascenseurs
-
Climatisation : Réversible
-
Distribution chauffage : Réversible
-
Eclairage Bureaux : Luminaires encastrés
-
Fenêtres : Double vitrage
-
Sol bureaux : Moquette
-
Source chauffage : Electrique
Prestations de service
-
Parking : Extérieur
Type / Etat du bâtiment
-
Etat de l'immeuble : Seconde main
Informations complémentaires
-
Ascenseur, Open space










