




APOLLO
12 Avenue d'Italie
75013 Paris
13 112 m²
Divisible dès 581 m²
550 €
HT/HC/m²/an
Disponibilité : Immédiate

Lise CARBONNE
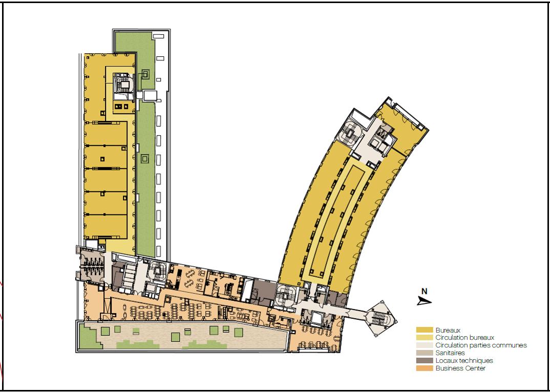
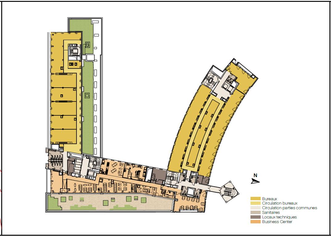
Description
Sur la Place d'Italie, au cœur du 13ème arrondissement, nous vous proposons un immeuble entièrement restructuré.
Plusieurs grands plateaux de 2800 m² à louer. FLEXIBLE ET LUMINEUX.
Hall d'accueil avec hotesse, RIE et Roof Top extraordinaire avec des vues sur tout Paris.
L'immeuble bénéficie également d'un co-working avec un business center pour plus de flexibilité.
Les Points essentiels de l'immeuble, situé dans un quartier animé avec une douceur de vivre, au pied du métro Place d'Italie :
- Grand plateau en U articulé autour d'un grand atrium
- Trame de façade de 2.70 m
- Ouvrant de confort à chaque trame
- Désenfumage mécanique
- Technique apparente en circulation
- Faux- Plafond rayonnant
- Profondeurs plateau variables: 13m /18m /19m
- HSP: 2.60 m
Services & prestations
Aménagements
-
Accueil
-
Effectif théorique : 1702 personne(s)
-
Espaces Co-working
-
Hall d'accueil
Equipements
-
Ascenseurs
-
Climatisation : + ventilation double flux
-
Eclairage Bureaux : LED avec régulation automatique 20%
-
Faux plafond
-
Gestion technique centralisée
Hauteurs
-
Hauteur sous-plafond : 2,60 mètre(s) dans les espaces bureaux
Prestations de service
-
Cafétéria
-
Parking : Nombreux parkings en sous-sol
-
Restauration : + salon de direction
-
Sécurité
Extérieurs
-
Terrasses - jardins : ROOF TOP
-
Trame de façade : 2,70 mètre(s)
Type / Etat du bâtiment
-
Immeuble indépendant
Informations complémentaires
-
SKY BAR










