




8 Rue Cimarosa
75116 Paris
1 248 m²
1 200 €
HT/HC/m²/an
Disponibilité : 01/02/2026

camille rousseau-busson
Description
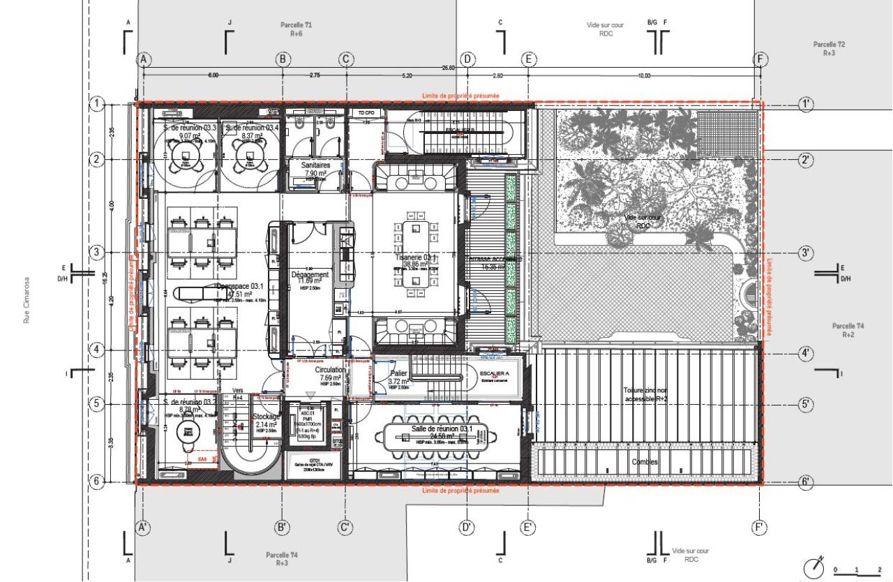
Quartier Central des Affaires, Paris 16ème , entre l'avenue Kléber et la place Victor Hugo, nous vous proposons à la location cet Hôtel particulier «pierre de taille» construit à la fin XIXème siècle par l’architecte Jacques Hermant. Il fait l'objet aujourd'hui d'une restructuration menée par le Studio Vincent Eschalier,.une restructuration haut de gamme comprenant des matériaux nobles, une cour intérieure privative ainsi qu’une terrasse aménagée et végétalisée en R+3.
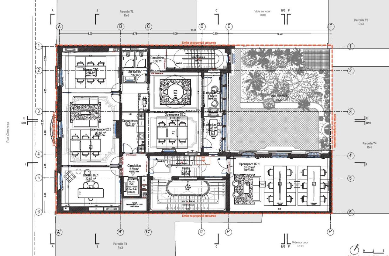
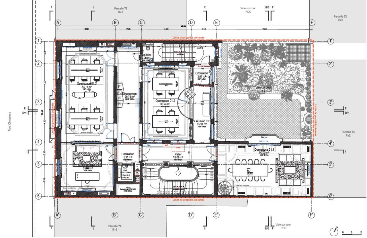
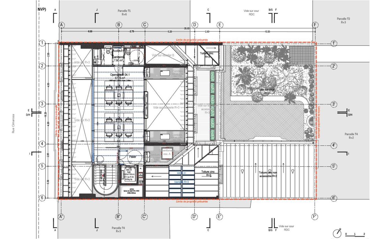
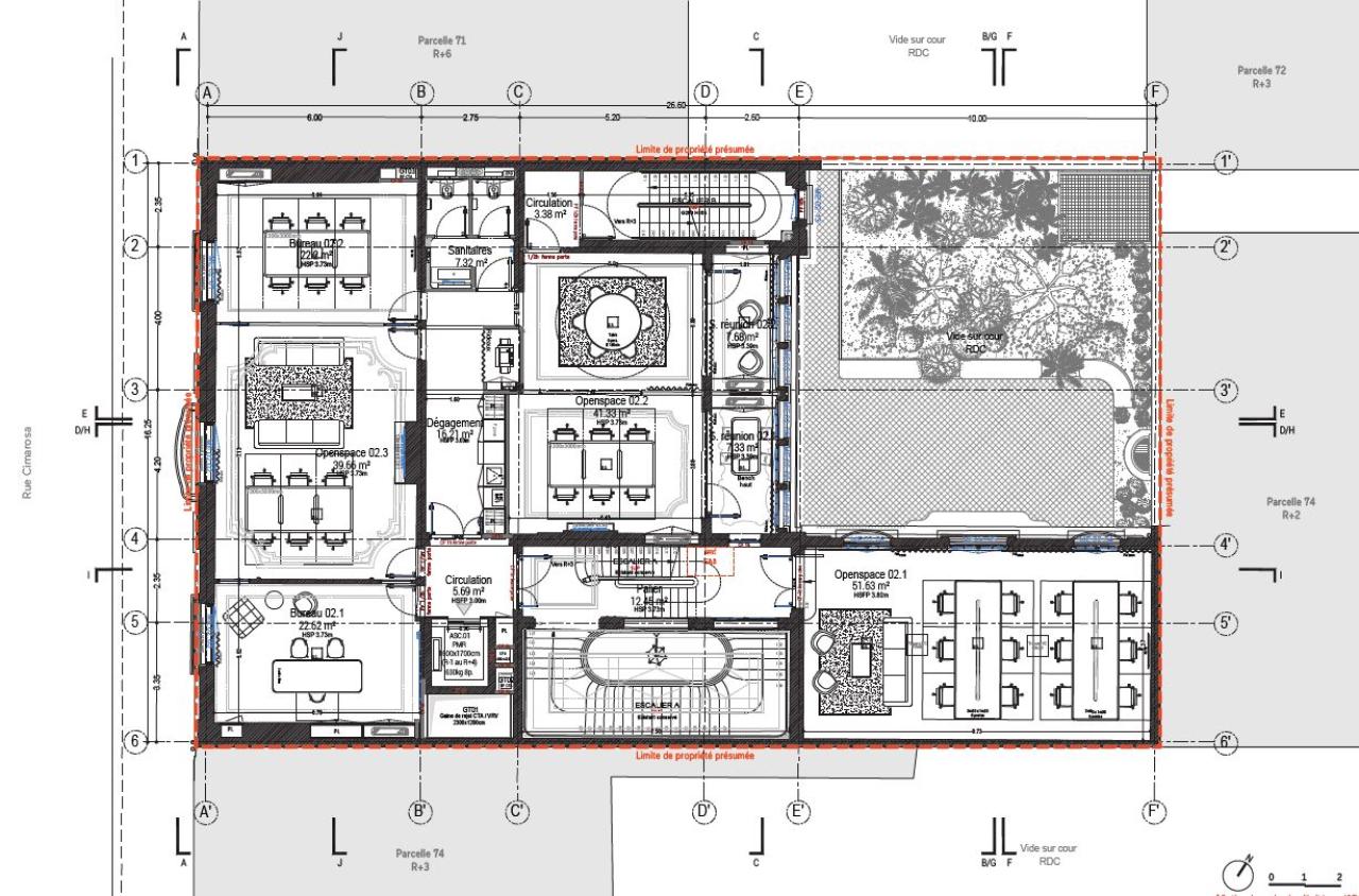
La livraison de l’immeuble est prévue en mars 2026. 1 248 m² (SDP) à usage de bureaux, Capacitaire : 200 personnes
LOCATION DE BUREAUX PARIS 16
IMMEUBLE INDEPENDANT
Quartier Central des Affaires
Paris 16ème
entre l'avenue Kléber et la place Victor Hugo
Hôtel particulier «pierre de taille» construit à la fin XIXème siècle par l'architecte Jacques Hermant en cours de restructuration menée par le Studio Vincent Eschalier,.une restructuration haut de gamme comprenant des matériaux nobles, une cour intérieure privative paysagée ainsi qu'une terrasse aménagée et végétalisée en R+3.
- 1 248 m² (SDP) à usage de BUREAUX A LOUER
- capacitaire (code du travail) : 200 personnes
- Grande modularité
- Certification BREEAM RFO niveau excellent
- Escalier monumental
- Ascenseur
- Parquets et moulures
- Larges fenêtres
- Grande hauteur sous plafond
- Chaud et froid ventilo-convecteurs en allège
- Climatisation 3 tubes
- Parquet chêne type Versailles et lame
- Récupération des eaux de pluie
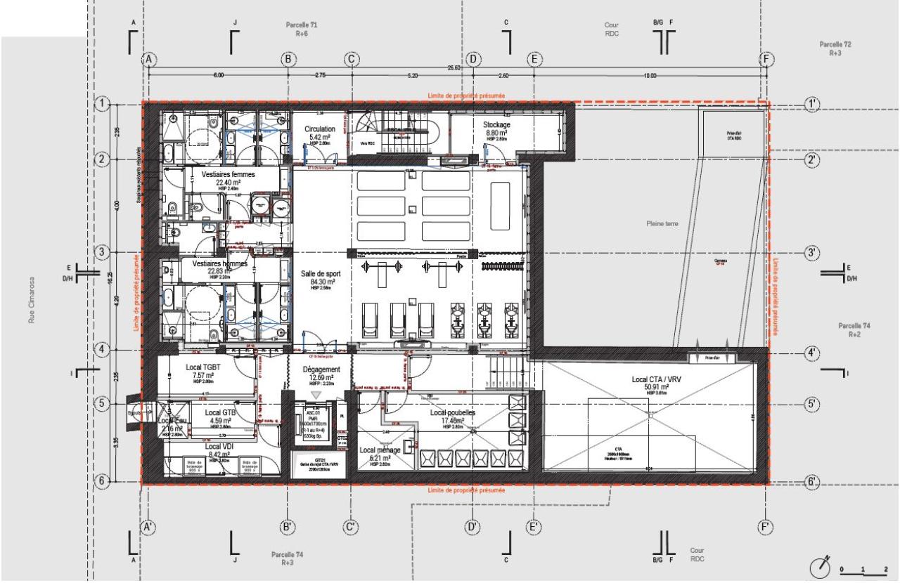
- GBT et CTA en sous-sol
DISPONIBILITE : mars 2026
Services & prestations
Aménagements
-
Accès Pers. Mobilité Réduite
-
Aménagement des bureaux : Cloisonnés/Ouverts
-
Effectif théorique : 200 personne(s)
-
Hall d'accueil : Indépendant
Equipements
-
Ascenseurs : 1
-
Distribution climatisation : Ventilo convecteur en allège
-
Gestion technique centralisée
-
Sol bureaux : Parquet en chêne
Hauteurs
-
Hauteur sous-plafond : Entre 3,73 m et 4,10 m selon les niveaux
Prestations de service
-
Parking : Local vélos au RDC
Extérieurs
-
Terrasses - jardins : Cour végértalisée au RDC, Terrasse accessible au R+3
Normes, Certifications et Labels
-
Certification : BREEAM
Type / Etat du bâtiment
-
Etat de l'immeuble : Restructuré avec PC pour T1 2026
-
Etat des locaux : Restructuré avec PC
-
Immeuble indépendant
-
Type d'immeuble : Hôtel particulier
Informations complémentaires
-
Espaces patrimoniaux conservés










