




Vente Bureau 435 m²
75016 Paris
435 m²
7 395 000 €
HT/HD
Disponibilité : Nous consulter

Gauthier BOMPAIRE
Description
A proximité du métro Victor Hugo, nous vous proposons d'acquérir une surface rare dans un très bel immeuble haussmannien aux parties communes de grand standing.
Possibilité d'acquérir les locaux dans le cadre d'une cession de parts de société : 17 000 €/m² net vendeur ou hors cession de parts à 9 135 000 € net vendeur.
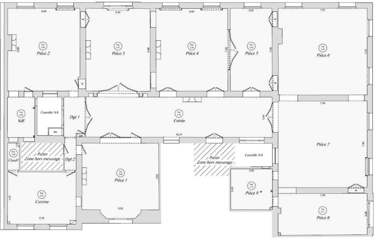
BNP Paribas Real Estate vous propose d'acquérir une surface climatisée d'environ 435 m² dans le 16ème arrondissement de Paris.
Les locaux se situent au 1er étage d'un très bel immeuble haussmannien avec façade d'angle.
Vous y retrouverez de beaux volumes lumineux et vecteurs d'image pour un Utilisateurs. Le plan est efficace, il offre des espaces de travail spacieux et agréables avec moulures au plafond, cheminées et parquet pointe de Hongrie.
Possibilité d'acquérir les locaux dans le cadre d'une cession de parts de société : 17 000 /m² net vendeur ou hors cession de parts à 9 135 000 net vendeur.
Il dispose d'une très bonne accessibilité à seulement 2 minutes à pied du métro Victor Hugo, à 7 minutes à pied de la place de l'Etoile et à 4 minutes en voiture de la Porte Dauphine.
Services & prestations
Aménagements
-
Accueil : Très belle entére
-
Aménagement des bureaux : Cloisonnés Grands bureaux
-
Bureaux cloisonnés : 11
-
Complexe Salle de réunion
-
Sanitaires : 2
Equipements
-
Faux plafond
-
Sol bureaux : Parquet Pointe de Hongrie
-
Type de chauffage : Individuel
Hauteurs
-
Hauteur sous-plafond : Beaux volumes
Prestations de service
-
Restauration : Cuisine
Type / Etat du bâtiment
-
Etat de l'immeuble : Etat d'usage Haussmannien
-
Etat des locaux : Etat d'usage
-
Immeuble copropriété
Informations complémentaires
-
Moulures et cheminée, Parties communes de grand stan
-
Très belles parties communes










