




179 RUE DE LA POMPE
75016 Paris
231 m²
560 €
HT/HC/m²/an
Disponibilité : Immédiate

Edouard DAGORNE
Description
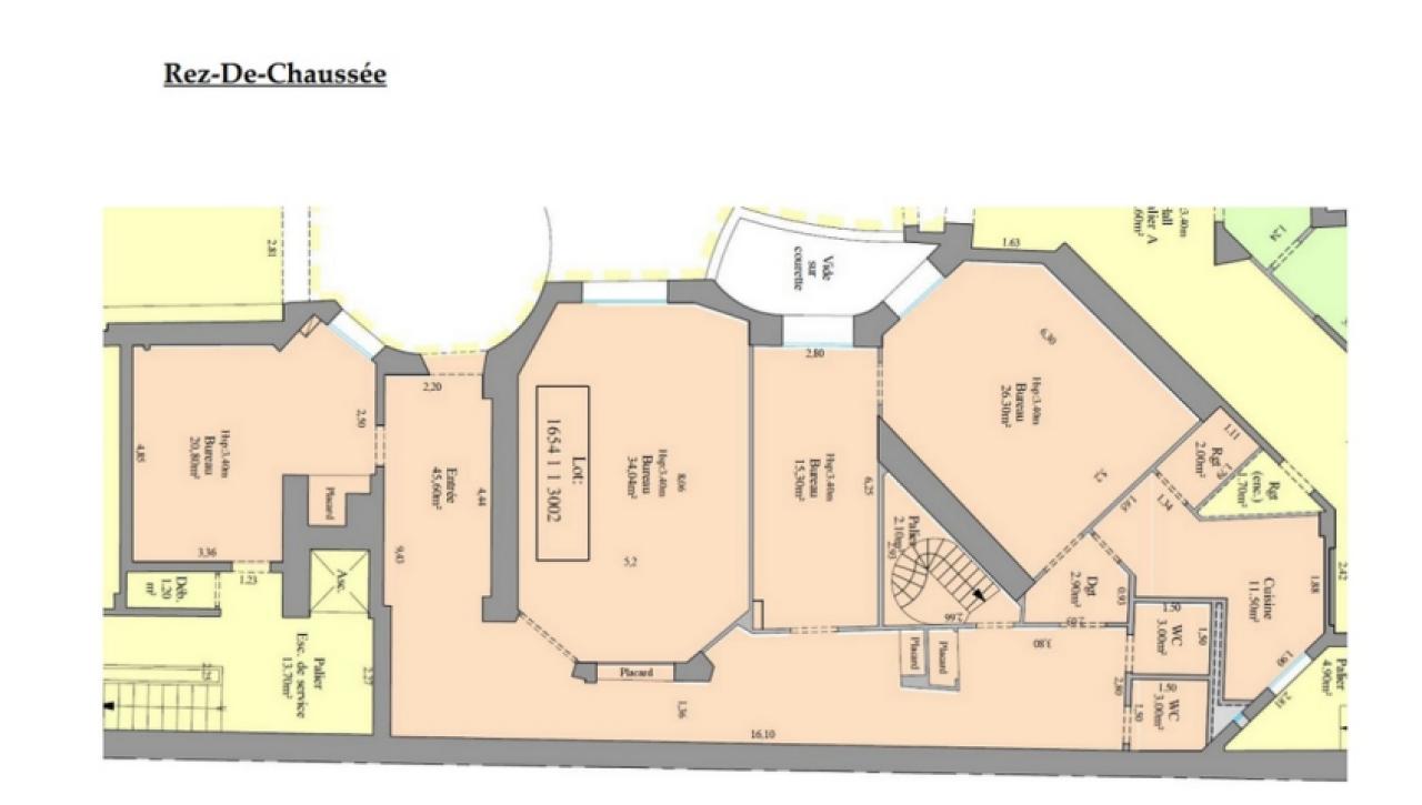
BUREAU A LOUER EN DUPLEX
Dans un immeuble ancien de très bon standing, à proximité du métro Victor Hugo, BNPPRE vous propose une surface de bureaux
Dans un immeuble ancien de très bon standing, à proximité du métro Victor Hugo, BNPPRE vous propose une surface de bureaux
Services & prestations
Aménagements
-
Accès Pers. Mobilité Réduite
-
Sanitaires : Double
Equipements
-
Sol bureaux : Parquet
Hauteurs
-
Hauteur sous-plafond : Belle hauteur
Prestations de service
-
Sécurité : Gardiennage
Type / Etat du bâtiment
-
Etat de l'immeuble
-
Type d'immeuble : Immeuble ancien de très bon standing
Informations complémentaires
-
5 bureaux en RDC sur cour et 2 bureaux en RDJ, Coin cuisine, Possibilité plaque
-
Moulures
-
Cour privative










