




Location Bureau 1 076 m²
75019 Paris
1 076 m²
Divisible dès 285 m²
à partir de 180 €
HT/HC/m²/an
Disponibilité : Immédiate

Quentin THORE
Description
Location Bureau Paris 19 Climatisation ERP PMR Terrasse
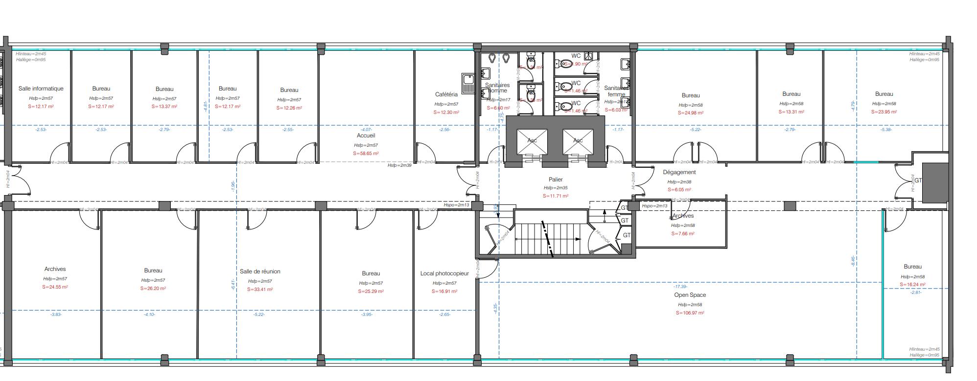
BNP Paribas Real Estate vous propose à la location plusieurs plateaux de bureaux lumineux et traversant de allant de 284 à 791m². Situé dans un environnement calme et commerçant proche du parc de la Villette. Offre à ne pas manquer, disponibilité selon les lots.. Peu de contraintes porteuses. Caution bancaire : 6 mois de loyer TTC. Les 8e et 9e étage seront livrés entièrement rénovés : sols, peintures, menuiseries, climatisation réversible. Le R+8 bénéficie d'une terrasse privative.
Services et Prestations :
- Hôtesse d'accueil
- Double accès au plateau
- Contrôle d'accès par badge
- Climatisation réversible
- 10 Bureaux cloisonnés
- Un open-space de 106 m²
- Une salle de réunion
- Un local photocopieur
- Une cafétéria
- Une salle informatique
- Deux salles d'archives
- Parkings en sous-sol
Surface : 791 m² divisible à partir de 284 m²
Loyer : selon les lots
Provisions pour charges : selon les lots
Taxer foncière : selon les lots
Taxe bureau: selon les lots
Frais de rédaction d'actes : à prévoir
Honoraires de commercialisation de BNP : 30 % du loyer annuel HT HC
Accessibilité :
- Métro : Ligne 5 "Ourcq" à 400m
- Tram : Ligne 3b "Porte de Pantin à 700m
- Accès routier : "Porte de Pantin"
Contact :
Quentin Thoré
07 85 63 05 18
01 72 37 29 55
quentin.thore@realestate.bnpparibas
Services & prestations
Aménagements
-
Accueil
-
Aménagement des bureaux : Cloisonnement amovible
-
Complexe Salle de réunion
-
Sanitaires : Parties communes
Equipements
-
Ascenseurs : 4
-
Climatisation : Réversible
-
Eclairage Bureaux : Luminaires encastrés
-
Faux plafond : Dal. fibres minéral.
-
Sol bureaux : Dls.thermoplastiques
Prestations de service
-
Cafétéria : Cuisine
-
Parking
Type / Etat du bâtiment
-
Etat de l'immeuble : Etat d'usage
-
Immeuble copropriété










