




16 Rue d'Artois
75008 Paris
1 925 m²
1 040 €
HT/HC/m²/an
Disponibilité : T4 2025

Virgile PAGES
Description
Au cœur du quartier central des affaires, à toute proximité de Saint Philippe du Roule, de la rue du Faubourg Saint Honoré et de l’avenue Franklin D Roosevelt, nous vous proposons à la location cet ensemble immobilier développant 1925 m² de bureaux.
Le 16 rue d'Artois est un ensemble développé sur 2 bâtiments organisés autour d'une belle cour pavée.
Le bâtiment Haussmannien (bâtiment A) développe des salles prestigieuses quand le bâtiment arrière (bâtiment B), plus récent confère à l'ensemble un style atypique.
L’ensemble doit faire l’objet d’une restructuration avec services au R-1
Le bâtiment Haussmannien (bâtiment A) développe des salles prestigieuses quand le bâtiment arrière (bâtiment B), plus récent confère à l'ensemble un style atypique.
L’ensemble doit faire l’objet d’une restructuration.
Services & prestations
Aménagements
-
Accès Pers. Mobilité Réduite
-
Aménagement des bureaux : Espaces Ouverts
-
Effectif théorique : 188 personne(s)
-
Hall d'accueil : Indépendant
Equipements
-
Ascenseurs : 2
Extérieurs
-
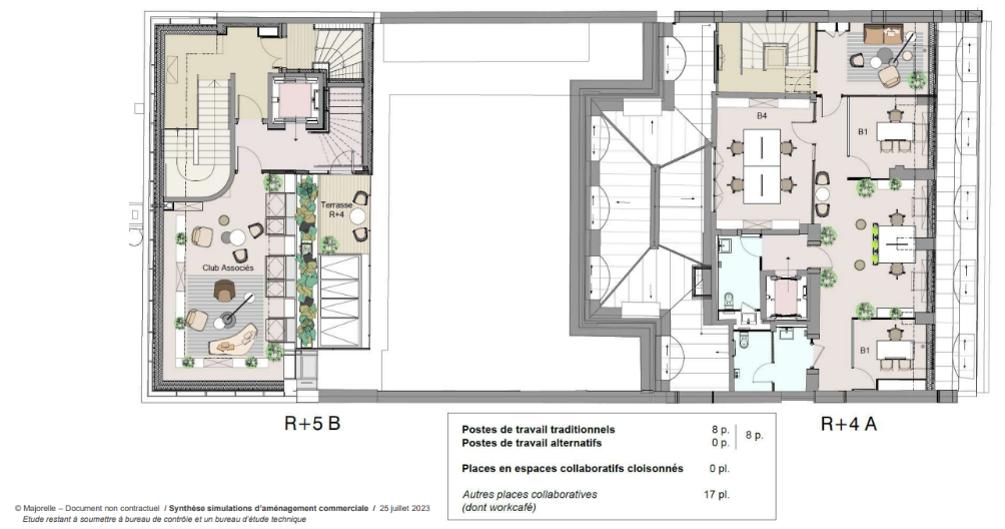
Terrasses - jardins : 146 m² d'espaces extérieurs accessibles
Type / Etat du bâtiment
-
Etat de l'immeuble : Restructuré avec PC
-
Immeuble indépendant
Informations complémentaires
-
Réunion de 2 bâtiments : 1 sur rue et 1 sur rue avec connexion entre les 2 bâtiments jusqu'au -2
-
Services au R-1
-
Création d'un local vélo










