


69 Avenue Franklin D. Roosevelt
75008 Paris
2 089 m²
Loyer sur demande
Disponibilité : T1 2025 en l'état - 2026 rénové

Caroline DE MONCAN
Description
Au cœur du Quartier Central des Affaires, à toute proximité du Rond-point des Champs Elysées, nous vous proposons à la location ce bel immeuble haussmannien à l’angle de la Rue La Boétie et au pied du métro Saint-Philippe du Roule.
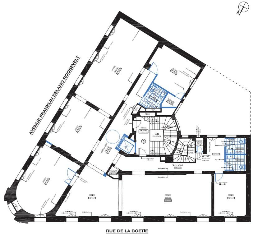
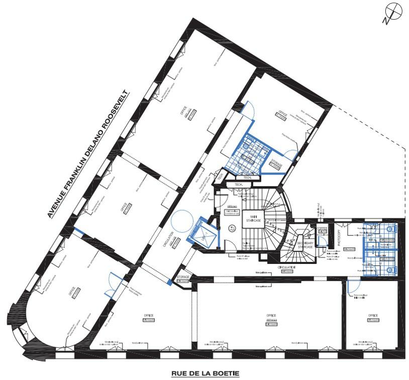
Cet immeuble développe 2 089 m² de bureaux répartis sur Rdc Bas et haut et 5 étages. Les plateaux sont lumineux et permettent un aménagement fonctionnel en espaces ouverts ou cloisonnés.
Dans le cadre d’une livraison rénové, une terrasse accessible sera créée au R+5.
•Hall d'entrée indépendant statutaire de très haut standing
•Parties communes sécurisées
•Ascenseur privatif
•Terrasse privative
•Etat des locaux : A définir
•Configuration mixte permettant de bénéficier d’espaces cloisonnés et de grands open space
•Belles salles de réunion dans les étages bas
•Climatisation
Services & prestations
Aménagements
-
Accueil : Accès sous porche
-
Accès Pers. Mobilité Réduite
-
Aménagement des bureaux : Cloisonnés/Ouverts
-
Effectif théorique : 200 personne(s)
-
Hall d'accueil : Indépendant
Equipements
-
Ascenseurs : 1
-
Climatisation : Réversible
-
Câblage informatique
-
Eclairage Bureaux : Luminaires encastrés
-
Faux plafond
-
Groupe électrogène
-
Sol bureaux : Moquette
Hauteurs
-
Hauteur sous-plafond : Entre 2,40 et 3,50 m
Prestations de service
-
Parking : Haussmann Berri
Extérieurs
-
Aire de livraison : Rue La Boétie
-
Façade d'angle : Angle boétie et F Roosevelt
-
Terrasses - jardins : Balcons aux R+1 R+2 et R+4
Type / Etat du bâtiment
-
Etat de l'immeuble : Etat d'usage
-
Etat des locaux : Etat d'usage
-
Immeuble indépendant : Haussmannien










