




GALERIE ROYALE
9 Rue Royale
75008 Paris
5 331 m²
Divisible dès 1 000 m²
1 000 €
HT/HC/m²/an
Disponibilité : Juin 2026

Sophie HENON
Description
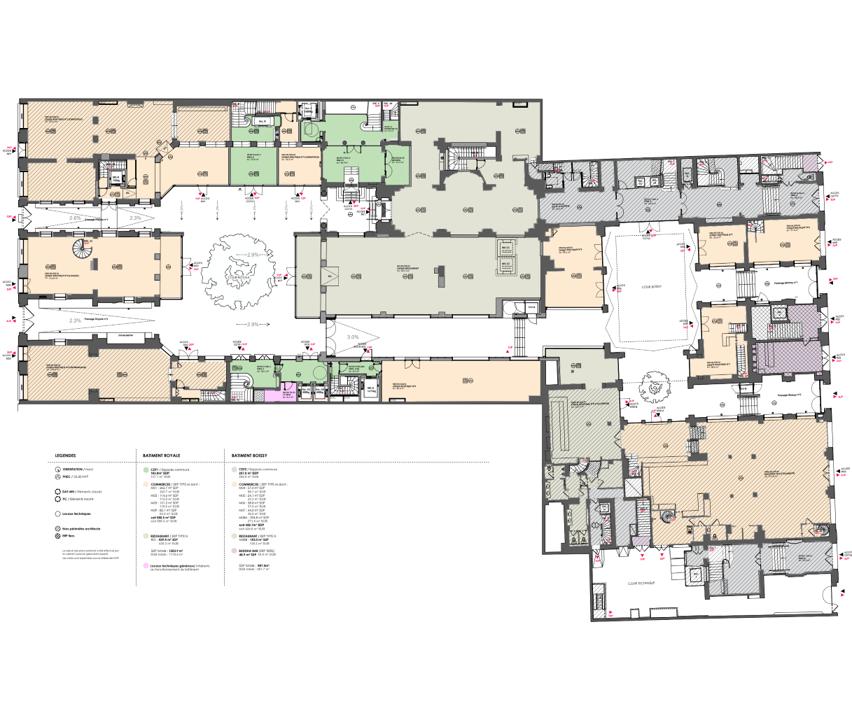
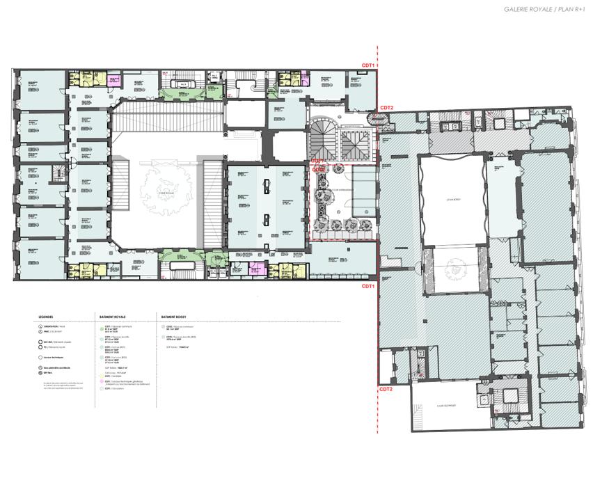
Idéalement situé entre la place de la Madeleine et la place de la Concorde, au sein d’un ensemble immobilier haussmannien de prestige dénommé « La Galerie Royale », nous vous proposons à la location d’environ 5 000 m² de bureaux répartis du 1er au 6è étage. Les bureaux donnent sur la rue Royale et sur une majestueuse cour pavée.
L’ensemble fera l’objet d’une restructuration lourde réalisée par le cabinet d’architecture WILMOTTE & ASSOCIES.
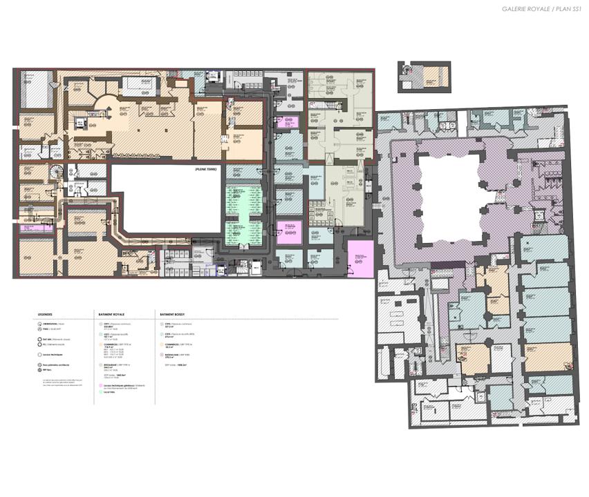
L'objet principal de la restructuration est de redonner vie à ce passage (de la rue Royale à la rue Boissy d'Anglas) composé de commerces de luxe et d'arts de la table,
d'un grand restaurant, de belles cours pavées et d'éléments architecturaux remarquables comme de belles verrières et des sols en mosaïque datant de l'origine de l'immeuble
La mixité des flux (piétons/utilisateurs de bureaux) est l'un des axes majeurs de réflexion.
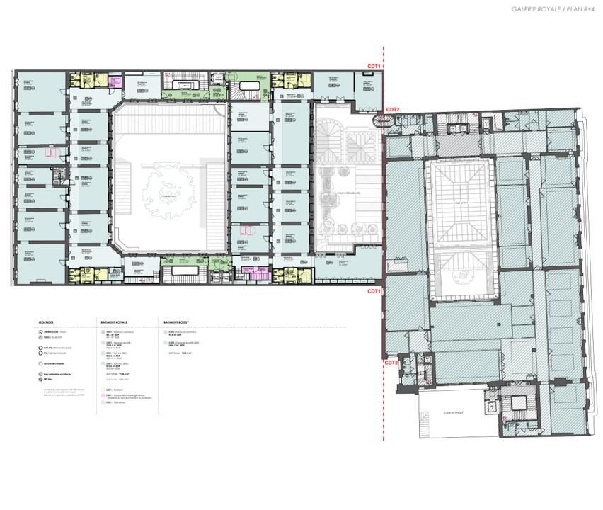
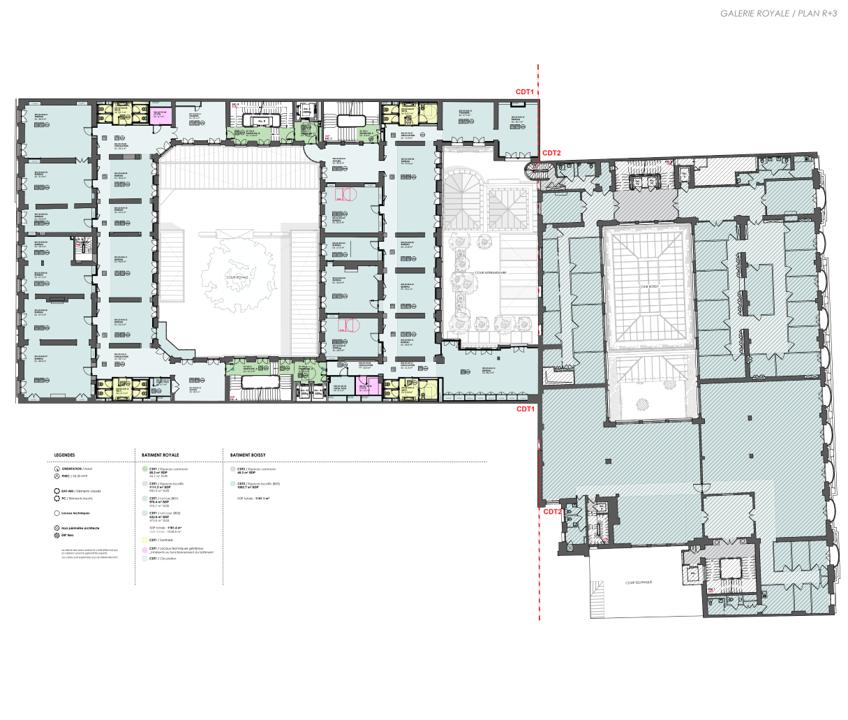
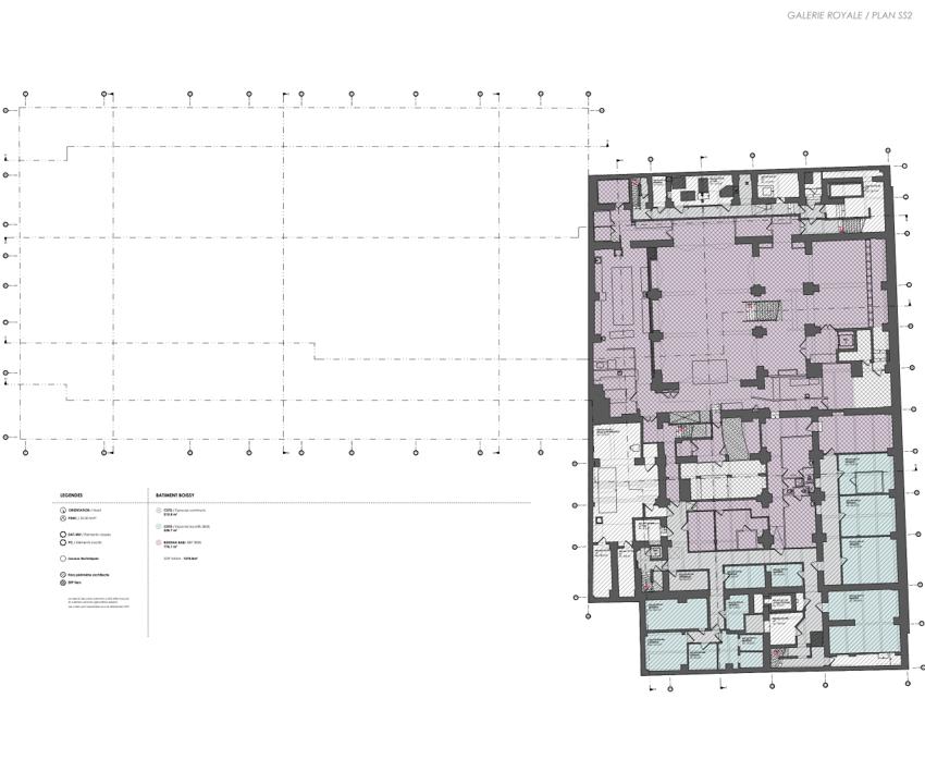
Ensemble à usage de bureaux : 4 891 m²
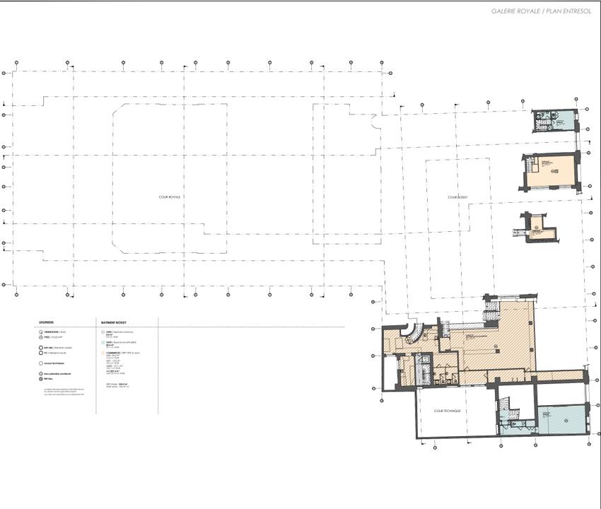
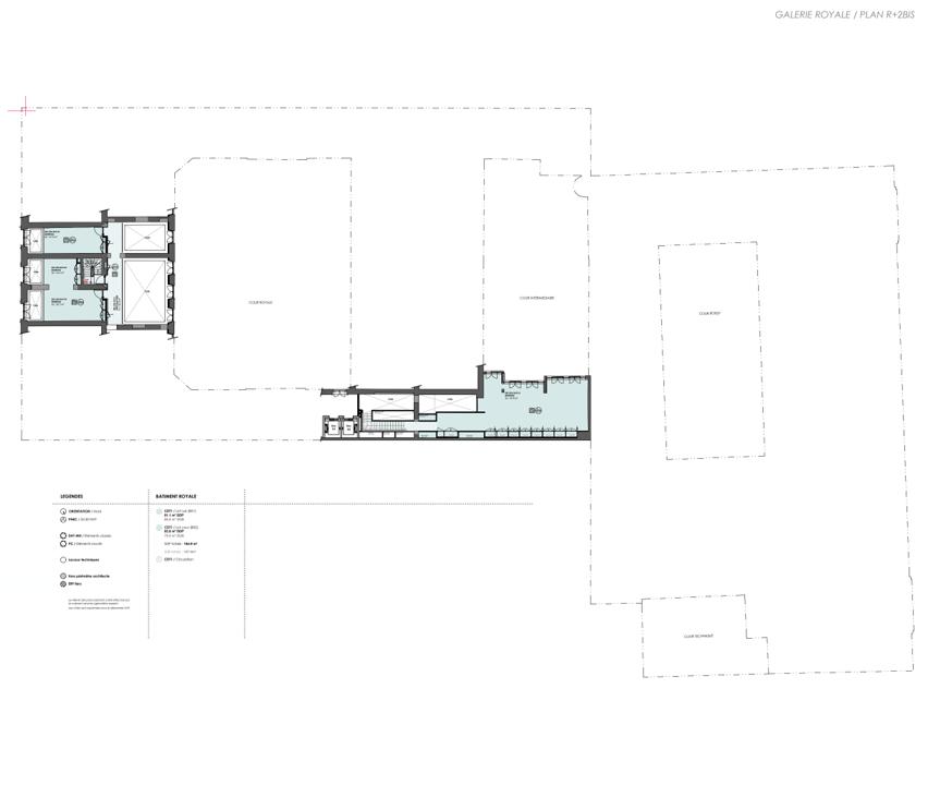
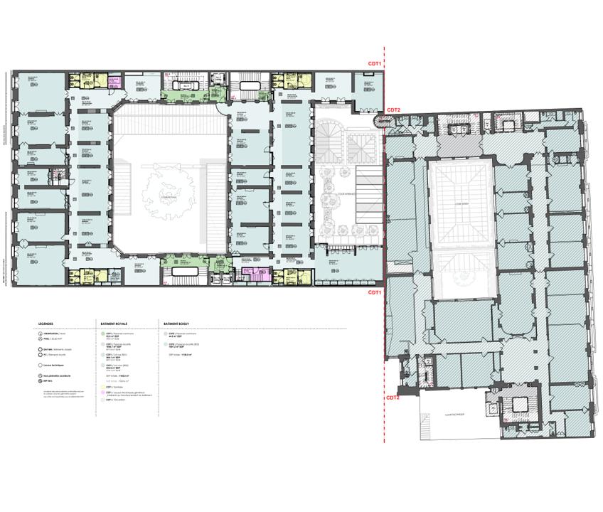
Grand plateaux d'environ 995 m² tournant autour d'une grande cour pavée
Terrasse d'environ 50 m² au 5è étage
Effectif : 567 personnes (1/9)
Services & prestations
Aménagements
-
Accueil
-
Accès Pers. Mobilité Réduite
-
Aménagement des bureaux : Cloisonnés/Ouverts
-
Effectif théorique : 567 personne(s) 1/8 personnes
-
Hall d'accueil : Indépendant 3 accès distints pour les bureaux
Equipements
-
Ascenseurs : 2 neufs dont 1 PMR
-
Climatisation : Réversible
-
Eclairage Bureaux : Luminaires suspendus LED
-
Faux plafond
-
Faux plancher
-
Production climatisation : Réseau urbain Fraicheur de Paris
-
Type de chauffage : Collectif
Hauteurs
-
Hauteur sous-plafond : Belle hauteur jusqu'à 3,30 m
Prestations de service
-
Sécurité : Contrôle d'accès
Extérieurs
-
Terrasses - jardins : Grande cour pavée végétalisée dite "Cour Royale"
Normes, Certifications et Labels
-
Certification : BREEAM
Type / Etat du bâtiment
-
Etat de l'immeuble : Restructuré avec PC
-
Orientation façade : RUE & COUR
Informations complémentaires
-
Local vélos fermé, Quelques éléments patrimoniaux conservés et restaurés, Terrasse au R+5
-
Commerces de luxe desservis par la Galerie Royale, Espace tisanerie
-
Cour arborée grand olivier, Création d'un restaurant Brasserie










