




Location Bureau 411 m²
75009 Paris
411 m²
800 €
HT/HC/m²/an
Disponibilité : 01/03/2026

Alexia DE LAMBILLY
Description
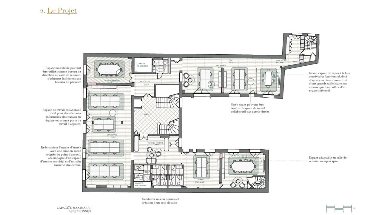
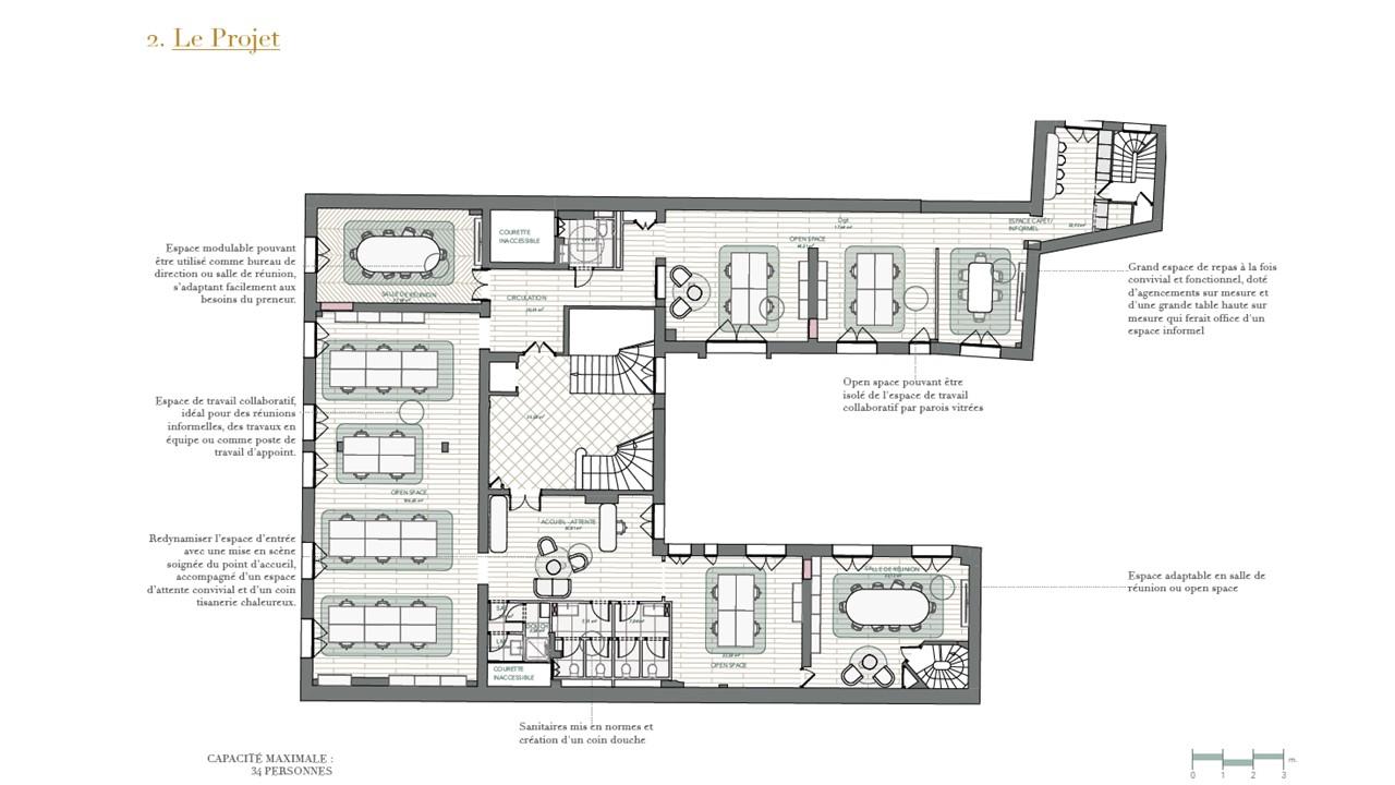
Dans un immeuble très standing de bureaux, nous vous proposons au 1er étage une surface entièrement rénovée de 411 m². Plateau de style haussmannien, surface d'une grande flexibilité, plateau traversant en U sur rue et cour. Grande trame de fenêtres permettant de cloisonner en fonction des besoins. Les locaux sont climatisés et vont être livrés entièrement rénovés. Gestionnaire technique sur place afin de gérer l'immeuble.
Services & prestations
Aménagements
-
Complexe Salle de réunion : 1 salle(s)
Equipements
-
Ascenseurs : 1
-
Type de chauffage : Immeuble
Prestations de service
-
Cafétéria
Extérieurs
-
Linéaire de façade : 3,00 mètre(s)
-
Terrasses - jardins
Type / Etat du bâtiment
-
Etat de l'immeuble : Etat d'usage Très bon standing
-
Etat des locaux : Rénové










