




37 BOULEVARD SUCHET
75016 Paris
250 m²
2 850 000 €
HT/HD
Disponibilité : Nous consulter

Gauthier BOMPAIRE
Description
A proximité du métro Ranelagh, nous vous proposons d'acquérir une surface entièrement rénovée au 1er étage d'un immeuble de bon standing.
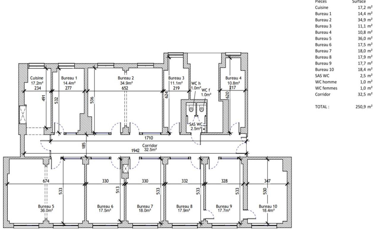
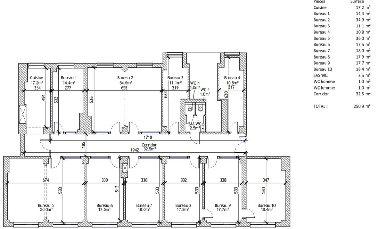
BNP Paribas Real Estate vous propose d'acquérir des locaux rénovés d'une surface totale de 250 m² dans le 16ème arrondissement de Paris.
Les locaux se situent au 1er étage d'un ensemble immobilier mixte.
Les locaux sont organisés en espaces ouverts et cloisonnés, ils offrent un plan efficace et fonctionnel.
Possibilité d'acquérir deux parkings en sous-sol en sus du prix : 70 000 /u. NV
Il dispose d'une bonne accessibilité à seulement 5 minutes à pied du métro Boucicaut, à 9 minutes à pied du métro Convention et à 6 minutes en voiture de la Porte de Versailles.
N'hésitez plus et venez découvrir ce bien.
Services & prestations
Aménagements
-
Aménagement des bureaux : Cloisonnés/Ouverts Cloisonnement léger
-
Sanitaires
Equipements
-
Eclairage Bureaux : Luminaires encastrés
-
Sol bureaux : Parquet
Prestations de service
-
Cafétéria : Cuisine
-
Sécurité
Type / Etat du bâtiment
-
Etat de l'immeuble : Etat d'usage
-
Etat des locaux : Rénové
-
Orientation façade : SUR RUE










