




4 RUE DE LA POMPE
75116 Paris
422 m²
10 000 000 €
HT/HD
Disponibilité : Nous consulter

Benjamin HECTOR
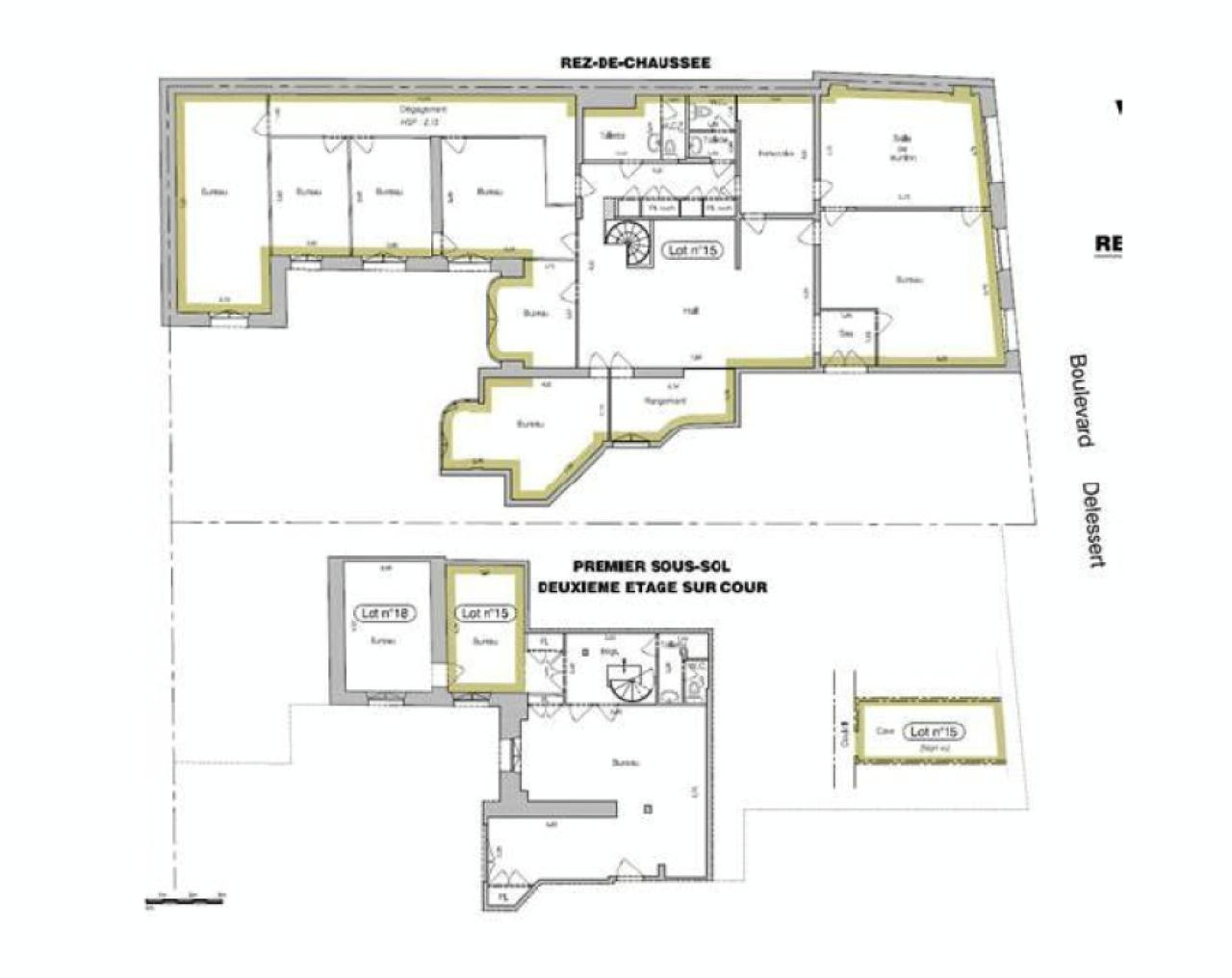
Description
BNP Paribas Real Estate vous propose d'acquérir un actif rare d'une surface totale d'environ 421 m² dans le 16ème arrondissement de Paris.
Les locaux se situent aux rez-de-chaussée, rez de patio et 1er étage d'un très bel immeuble au fonctionnement indépendant sur cour.
Vous y retrouverez une architecture vectrice d'image pour un siège social avec des espaces de travail spacieux et agréables et des bureaux principalement situés en premier jour.
Un jardin privatif et un rooftop au 1er étage complètent l'actif.
Il dispose d'une bonne accessibilité à seulement 2 minutes à pied du métro La Muette, à 4 minutes à pied du RER Boulainvilliers et à 4 minutes en voiture de la Porte de la Muette.
Services & prestations
Aménagements
-
Aménagement des bureaux : Cloisonnés/Ouverts
-
Complexe Salle de réunion
-
Sanitaires
Equipements
-
Câblage informatique
-
Type de chauffage : Chauffage au gaz individuel
Prestations de service
-
Cafétéria : Cuisine avec espace de repos
-
Sécurité
Extérieurs
-
Terrasses - jardins : Jardin privatif & terrasse
Type / Etat du bâtiment
-
Etat de l'immeuble : Seconde main
-
Immeuble copropriété
-
Orientation façade : SUR RUE










