




118 Rue de Vaugirard
75006 Paris
377 m²
Divisible dès 77 m²
4 500 000 €
HT/HD
Disponibilité : Nous consulter

Curtis HELLEGOUARCH
Description
A proximité du métro Falguière et de la gare Montparnasse, nous vous proposons d'acquérir des plateaux dans un ensemble immobilier de bon standing.
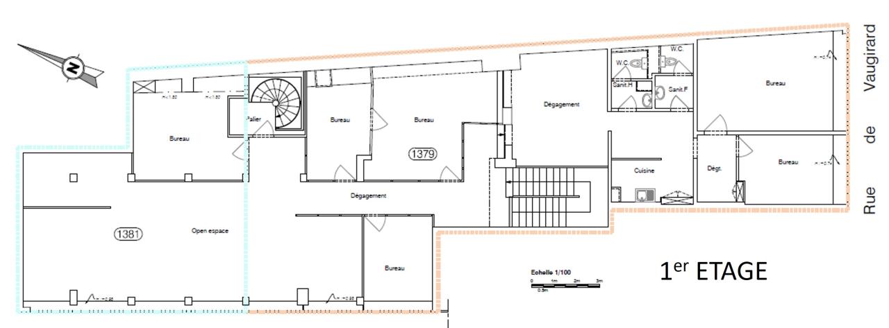
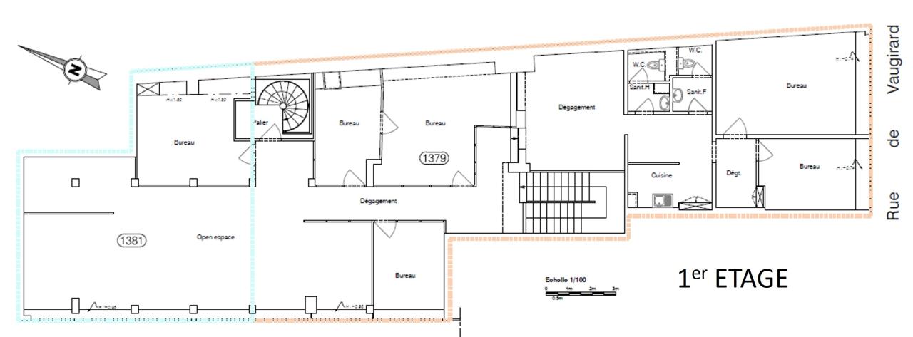
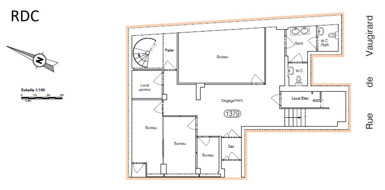
BNP Paribas Real Estate vous propose d'acquérir des locaux d'une surface totale de 376 m² divisibles à partir de 77 m² dans le 6ème arrondissement de Paris.
Les locaux se situent au rez-de-chaussée d'un immeuble d'angle.
Vous y retrouverez un plan facilement modulable composé d'espaces ouverts, de bureaux avec cloisonnement vitré amovible, de salle de réunion, d'une cuisine et de sanitaires P.M.R.
De plus, l'actif bénéficie d'un espace d'archives et de sept emplacements de parking en sous-sol.
Il dispose d'une bonne accessibilité à seulement 3 minutes à pied du métro Falguière, à 6 minutes à pied du métro Saint-Placide et à 8 minutes à pied de la gare Montparnasse.
Prix de vente : 4 500 000 NV
Parkings : 35 000 /unité NV
Services & prestations
Prestations de service
-
Parking : Intérieurs
Normes, Certifications et Labels
-
Catégorie ERP
Type / Etat du bâtiment
-
Etat des locaux : Rénové
Informations complémentaires
-
Lots détenus en copropriété, Nombreux accès (sur jardin et parties communes)
-
Locaux articulés autour d'une cour arborée, Locaux livrés curés
-
Affectation en cours de détermination, Beaux volumes










