




Location Bureau 1 390 m²
75006 Paris
1 390 m²
Divisible dès 180 m²
300 €
HT/HC/m²/an
Disponibilité : Immédiate

Marie CHARRA
Description
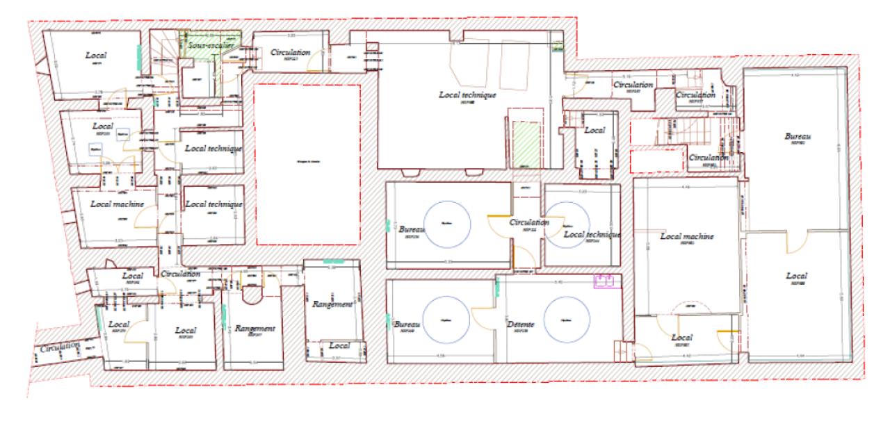
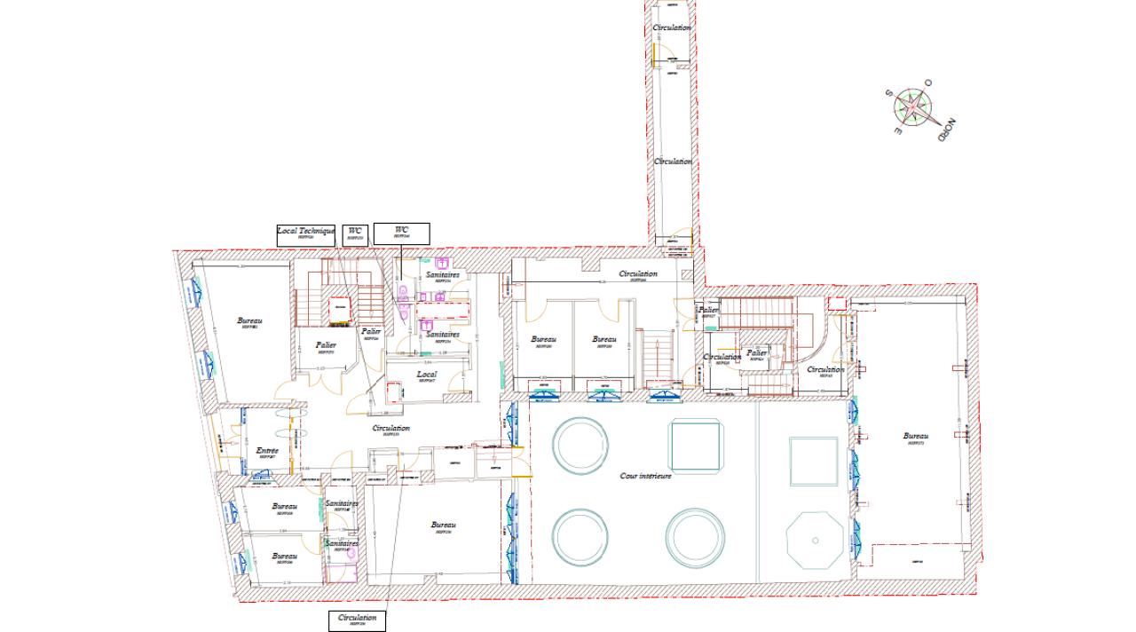
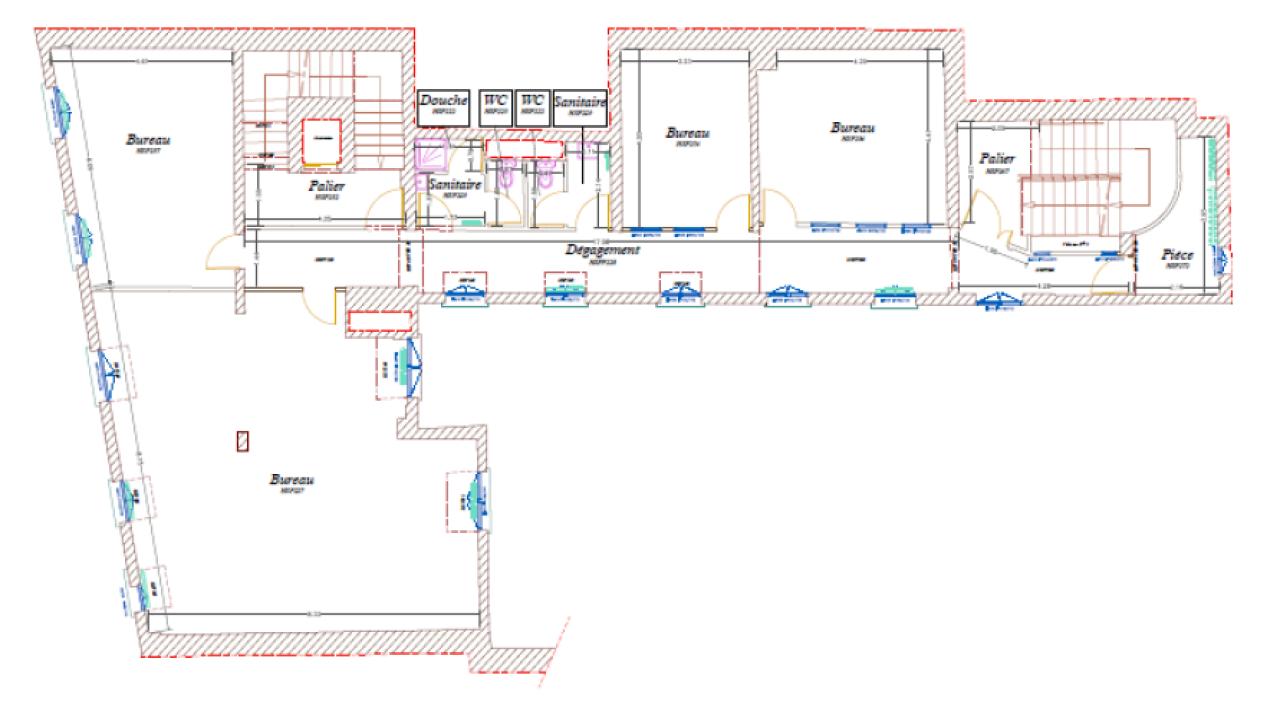
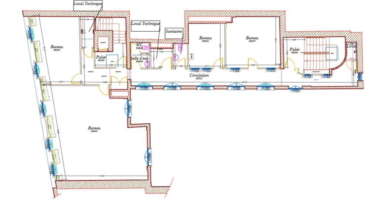
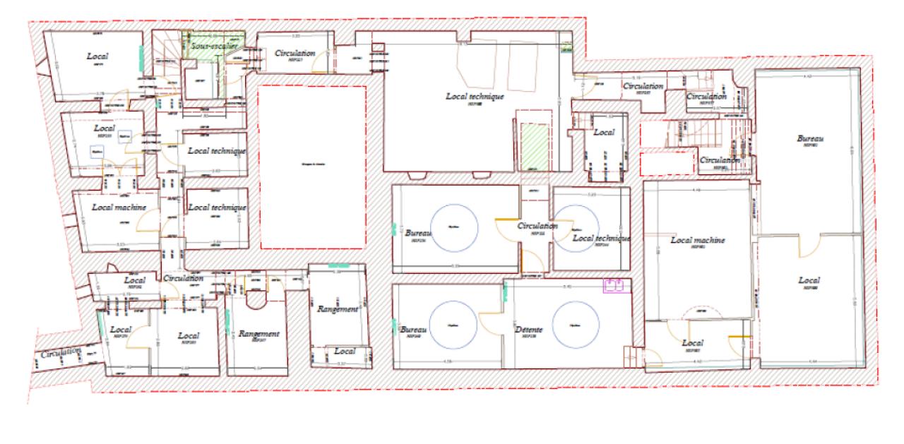
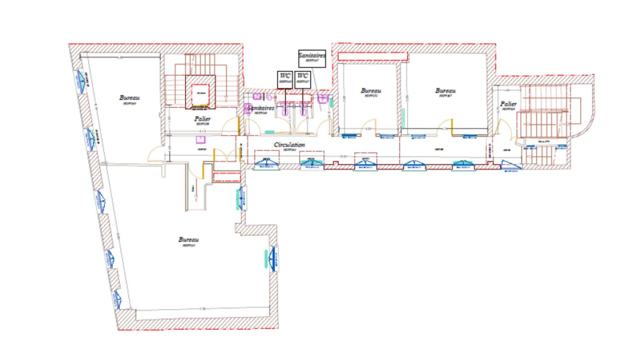
Dans un quartier commerçant et très dynamique, immeuble indépendant de bureaux à louer dans le cadre d'un bail dérogatoire.
A 2 pas de Montparnasse !
Immeuble situé dans le VI ème arrondissement, comportant trois bâtiments communiquant entre eux. Au coeur d'un quartier central et recherché, à proximité des transports (Metro ligne 12, 4 ainsi que nombreuses lignes de bus).
Le bâtiment est situé dans un secteur dynamique et en plein essor, entouré de nombreux commerces de proximité, restaurants et cafés, et à quelques pas de lieux emblématiques tels que le jardin du Luxembourg et le quartier de Saint-Germain-des-Prés. Ce secteur très prisé bénéficie d'une forte demande locative, renforçant ainsi le potentiel de l'actif.
Contatctez-nous !










