




8 Rue Euler
75008 Paris
1 008 m²
16 200 000 €
HT/HD
Disponibilité : Nous consulter

Jesse CASSUTO
Description
En exclusivité
Au coeur du QCA Etoile, à proximité de l'Arc de Triomphe, nous vous proposons d'acquérir dans le cadre d'une exclusivité un Hôtel Particulier en l'état détenu en pleine propriété.
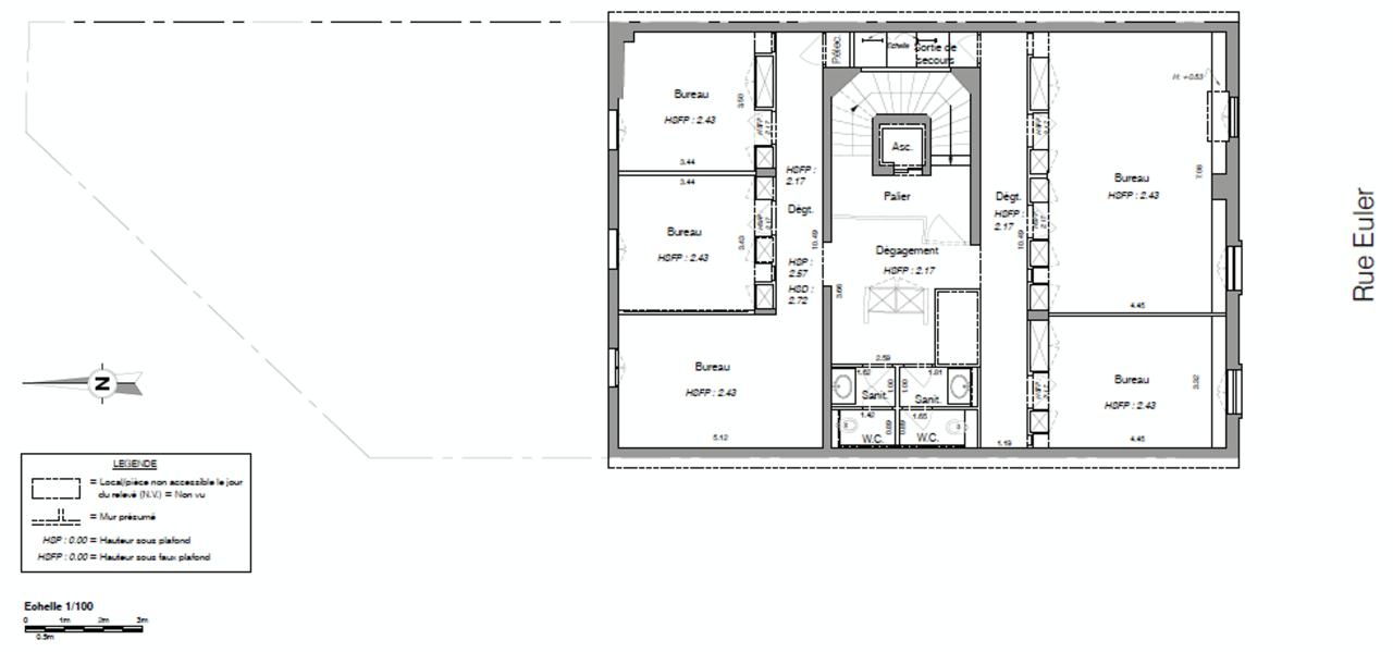
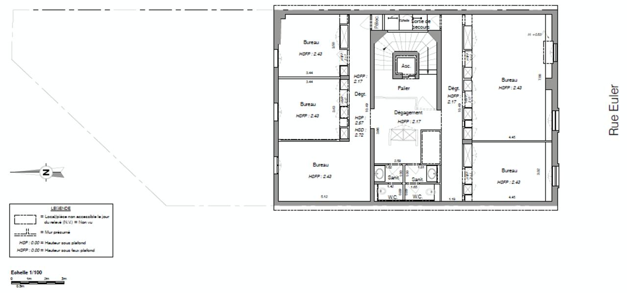
BNP Paribas Real Estate vous propose d'acquérir un bel Hôtel particulier climatisé d'une surface utile brute totale de 1 008,2 m² dans le 8ème arrondissement de Paris.
L'actif est édifié en R+4 sur un niveau de sous-sol, il offre de beaux volumes en état d'usage avec partie sous verrière.
Vous y retrouverez un accueil, des espaces ouverts, plusieurs grands bureaux et bureaux individuels ainsi que des salles de réunion.
Les étages sont desservis par un ascenseur.
Il dispose d'une bonne accessibilité à seulement 5 minutes à pied du métro George V, à 7 minutes à pied de la place de l'Etoile et à 8 minutes en voiture de la Porte Maillot.
N'hésitez plus et venez découvrir ce bien.
Services & prestations
Aménagements
-
Accès Pers. Mobilité Réduite
-
Aménagement des bureaux : Cloisonnés/Ouverts
-
Effectif théorique
-
Hall d'accueil : Indépendant
Equipements
-
Ascenseurs : 1 sauf le sous-sol
-
Climatisation
-
Faux plafond
-
Faux plancher
-
Type de chauffage : Individuel
Prestations de service
-
Parking : George V
Type / Etat du bâtiment
-
Etat de l'immeuble : Etat d'usage, Récent
-
Etat des locaux : Etat d'usage
-
Immeuble indépendant
-
Orientation façade : SUR RUE
-
Type d'immeuble : Hôtel particulier










