




152 Avenue des Champs-Élysées
75008 Paris
293 m²
950 €
HT/HC/m²/an
Disponibilité : Immédiate

Marc TRAVERSE
Description
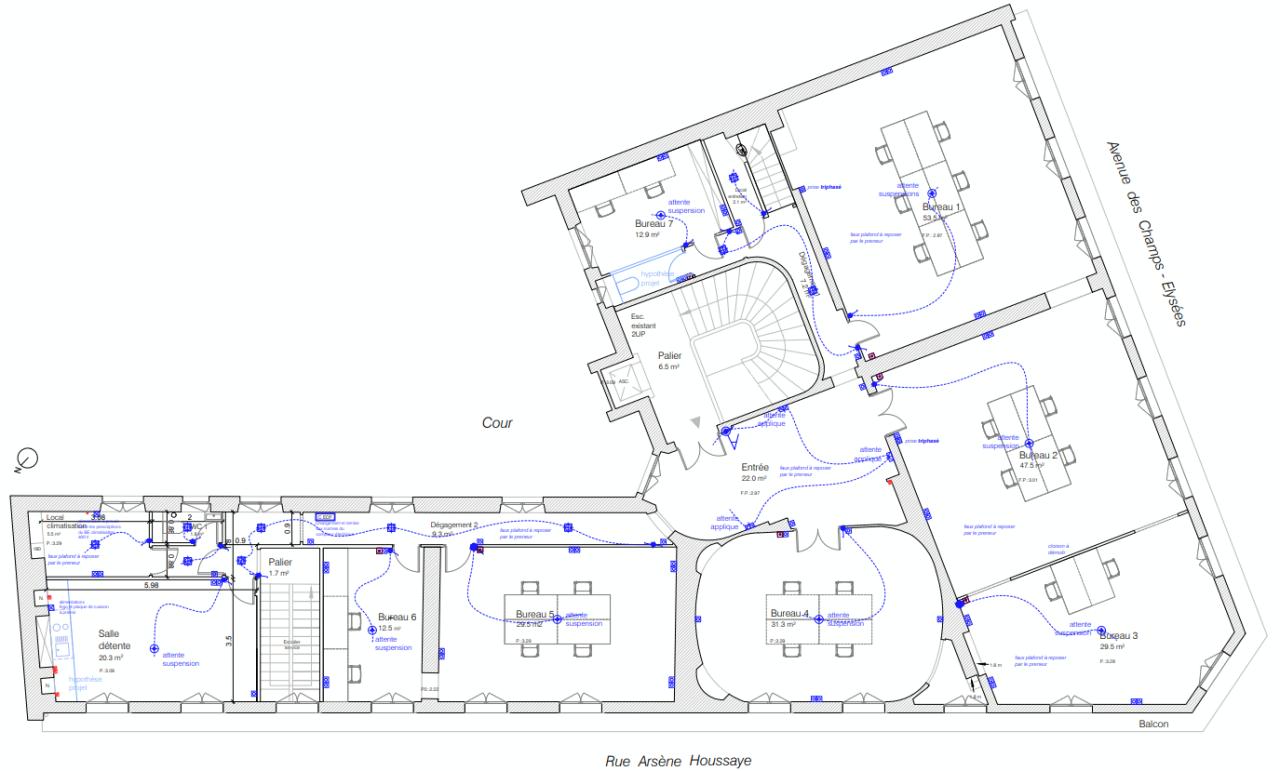
Au 4e étage dans un bel immeuble d'angle en pierre de taille, nous vous proposons une surface de 293 m2 situé dans un immeuble de bureaux.
Les bureaux seront climatisés et rénovés pour le T4 2025.
Ils sont composés d'une entrée, de 8 Bureaux et de sanitaires.
Locaux climatisés dotés d'une belle hauteur sous plafond.
Double vitrage et double fenêtres sur l'avenue.
Au 4e étage dans un bel immeuble d'angle en pierre de taille, nous vous proposons une surface de 293 m2 situé dans un immeuble de bureaux.
Les bureaux seront climatisés et rénovés pour le T4 2025.
Ils sont composés d'une entrée, de 8 Bureaux et de sanitaires.
Locaux climatisés dotés d'une belle hauteur sous plafond.
Double vitrage et double fenêtres sur l'avenue.
Services & prestations
Aménagements
-
Sanitaires : Privatif(s)
Equipements
-
Ascenseurs
Hauteurs
-
Hauteur sous-plafond : Grande hauteur sous-plafond
Prestations de service
-
Parking : Indigo George V à 200 mètres
-
Sécurité : Gardiennage
Type / Etat du bâtiment
-
Orientation façade : SUR RUE
-
Type d'immeuble : Très bel Immeuble d'angle Haussmannien
Informations complémentaires
-
Cour intérieure, Parties communes bien entretenues, Signalétique
-
Au 4ème : Locaux lumineux avec balcon filant, Une large galerie d'entrée
-
8 bureaux avec de beaux volumes, Cuisine, Fibre optique, Mixte parquet point de Hongrie et moquette










