




8 Rue Christophe Colomb
75008 Paris
758 m²
Divisible dès 338 m²
à partir de 700 €
HT/HC/m²/an
Disponibilité : Immédiate

Marc TRAVERSE
Description
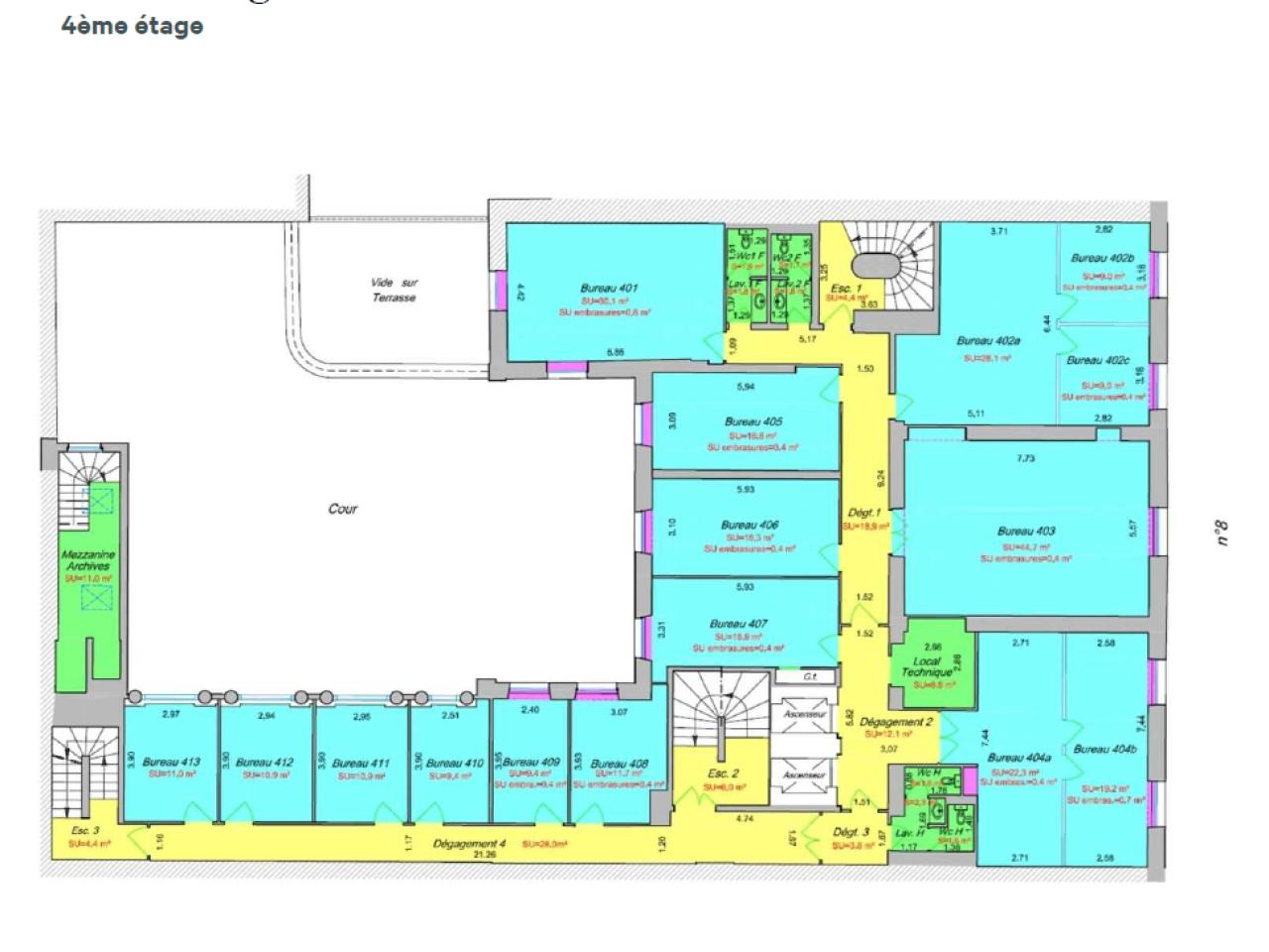
BNPPRE vous propose à la location des bureaux de 419m² au 4ème étage et de 338m² au 7ème étage
Situés dans le Triangle d’Or, BNPP RE vous propose à la location des bureaux de 419 m² au 4ème étage et de 338 m² au 7ème étage d’un bel immeuble indépendant.
La surface très lumineuse bénéficie d’une magnifique terrasse avec vue sur le Tour Eiffel !
Bail dérogatoire jusqu'au 31/12/2027 - Charges : 193,98 €/m² incluant le standard, le ménage, la sécurité du site (rondier/alarme) et bien sur les maintenances (électricité, plomberie, chauffage, clim, sureté,…) et les taxes.
Situé dans le triangle d'or, BNPPRE vous propose à la location des bureaux de 419m² au 4ème étage et de 338m² au 7ème étage d'un très bel immeuble indépendant.
La surface très lumineuse bénéficie d'une magnifique terrasse avec vue sur la tour Eiffel
Services & prestations
Aménagements
-
Accueil : Hôtesses
-
Complexe Salle de réunion : 3 salle(s)
Equipements
-
Ascenseurs : Direct dans la surface et par badge
-
Climatisation : Réversible
-
Câblage informatique
Prestations de service
-
Parking : 7 Places
Extérieurs
-
Terrasses - jardins : Terrasse
Type / Etat du bâtiment
-
Etat de l'immeuble : Rénové HOTEL PARTICULIER
Informations complémentaires
-
R+4 : 13 bureaux et R+7 : 9 bureaux
-
Vue tour Eiffel










