




ROMANCE
38 Rue de Provence
75009 Paris
3 009 m²
84 000 000 €
HT/HD
Disponibilité : 30/06/2026

Guillaume NOULIN
Description
Proche de Saint-Lazare et d'Opéra, BNP Paribas Real Estate vous propose un très bel hôtel particulier à usage de bureaux en cours de restructuration, offrant un environnement unique, mêlant l'élégance du passé au design contemporain : ROMANCE. Les espaces de travail, agencés autour de 2 cours intérieures paysagées, ont été conçus pour s'adapter aux nouveaux modes de travail : des espaces de réception et de services, des plateaux modulables et de nombreuses salles de réunion. Romance offre également de nombreux espaces extérieurs dont un rooftop au dernier étage.
UN QUARTIER RENOMME
Au coeur du 9e arrondissement, ROMANCE s'inscrit dans un environnement animé et renommé tant pour sa vie de quartier (brasseries, restaurants, Grands Magasins, commerces, bars, cinémas, Opéra Garnier, théâtres...) que pour son effervescence économique (présence de très nombreuses sociétés nationales et internationales de la finance, du droit, du luxe et de la Net Economie...).
UNE EXCELLENTE ACCESSIBILITE
ROMANCE profite d'un réseau de transports en commun exceptionnel : 5 lignes de métro, 2 lignes de RER, 8 lignes de bus et la Gare Saint-Lazare dans un rayon de 10 minutes à pied ou en transport : Châtelet-les-Halles, Gare du Nord et La Défense à 16 minutes environ, Gare de Lyon et Gare Montparnasse à moins de 30 minutes.
UNE RESTRUCTURATION DE GRAND STANDING
ROMANCE est entièrement réhabilité afin d'atteindre un niveau d'exigence élevé tant sur le plan environnemental et architectural, que sur le plan du bien-être de ses utilisateurs :
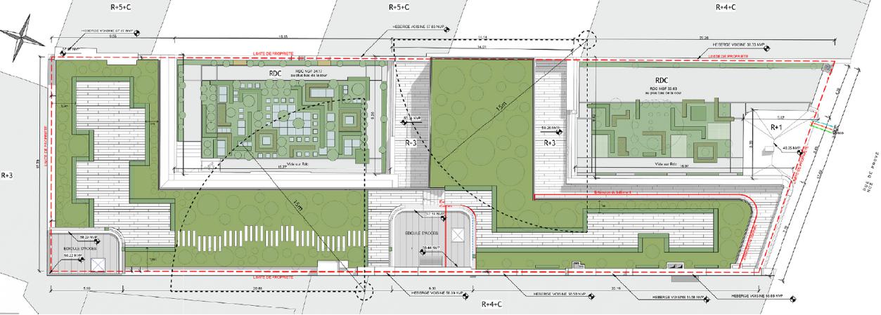
3 396 m² de surface totale (espaces extérieurs compris) en R+5 sur sous-sol
Des étages nobles offrant des espaces de réception avec une hauteur sous plafond remarquable
Des plateaux courants modulables organisés autour des deux cours intérieures, et accessibles par les deux noyaux d'ascenseurs
Des espaces de travail en premier jour et, à chaque étage, un emplacement dédié pour l'aménagement d'une salle de réunion
3,40 m de hauteur dalle à dalle en moyenne
387 m² d'espaces extérieurs accessibles dont 119 m² de rooftop accessible PMR et d'une capacité de 50 personnes
300 m² environ d'espaces bénéficiant de lumière naturelle en sous-sol dont 160 m² d'agora, avec la possibilité d'aménager un auditorium ou un showroom (80 personnes).
Autour de cet espace, diverses salles de réunion peuvent être déclinées en salles de sport, de formation ou de divertissement
65 m² de locaux vélos pour accueillir les mobilités douces
3 labels environnementaux visés, des matériaux choisis avec soin et un chantier orchestré pour répondre à une démarche bas carbonne.
Services & prestations
Aménagements
-
Accès Pers. Mobilité Réduite : Monte personne
-
Aménagement des bureaux : Espaces Ouverts
-
Auditorium : Possible au R-1
-
Complexe Salle de réunion
-
Effectif théorique : 399 personne(s)
-
Hall d'accueil
Equipements
-
Ascenseurs : 3
-
Climatisation : Réversible CPCU-Fraicheur de Paris
-
Plinthes techniques périphériques
-
Sol bureaux : Parquet
Prestations de service
-
Fitness : Possible au R-1
Extérieurs
-
Terrasses - jardins : 2 cours intérieures végétalisées, Roof-top au R+5, Terrasses au R+4
Normes, Certifications et Labels
-
Certification : Autre certification, BREEAM, HQE Rénovation
Type / Etat du bâtiment
-
Etat de l'immeuble : Restructuré avec PC
-
Immeuble indépendant
Informations complémentaires
-
Salle de réception patrimoniale magnifique










