




54 Rue Taitbout
75009 Paris
1 411 m²
Loyer sur demande
Disponibilité : 28/02/2027

Sophie HENON
Description
Quartier Central des Affaires, au cœur du 9ème arrondissement, entre la rue de La Victoire et la rue de Provence, au 54 rue Taitbout, nous vous proposons à la location cet immeuble d'une superficie d'environ 1411 m² en cours de restructuration pour des surfaces de bureaux classiques ou flexibles avec espaces communs et des espaces extérieurs d'environ 158 m². Il sera constitué de surfaces hybrides réparties entre des plateaux de bureaux en étages et des espaces polyvalents au rez-de- chaussée et au sous-sol, accessibles au public et au personnel.
Quartier Central des Affaires
LOCATION DE BUREAU Paris 9ème
IMMEUBLE INDEPENDANT
1411 M² DE BUREAUX A LOUER
Entre la rue de Provence et la rue de la Victoire
Métro Chaussée d'Antin La Fayette
RER A - Auber
Proximité Opéra
Immeuble indépendant livré restructuré en février 2027
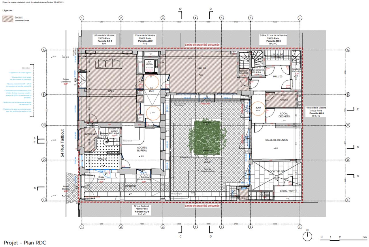
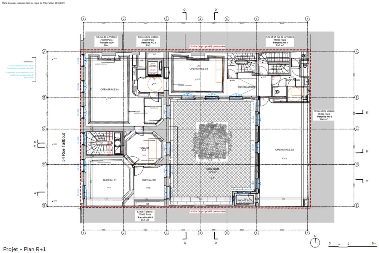
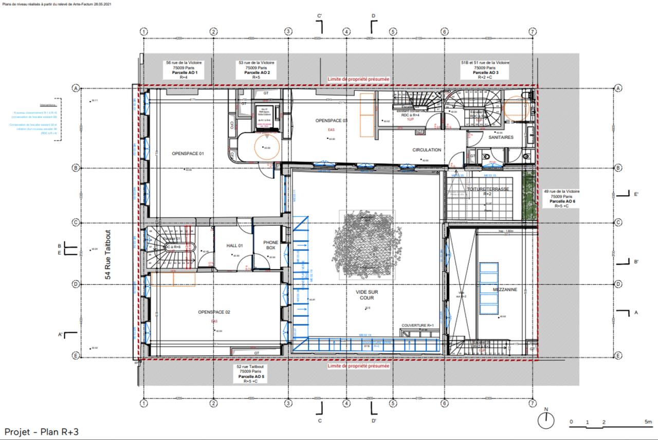
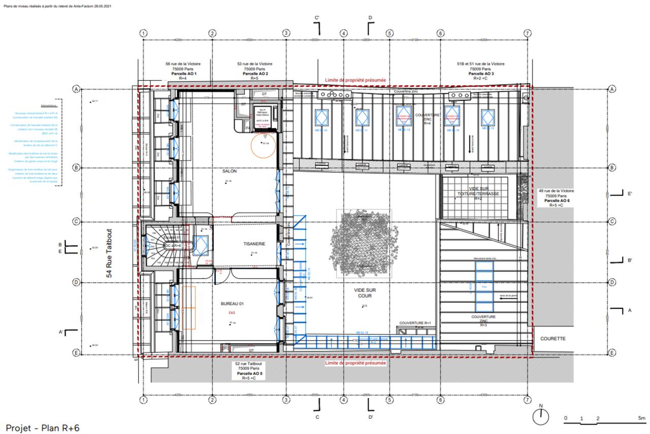
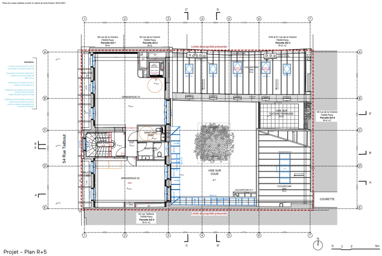
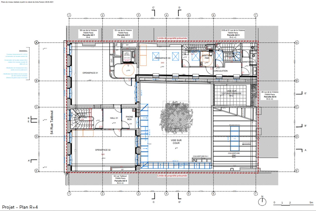
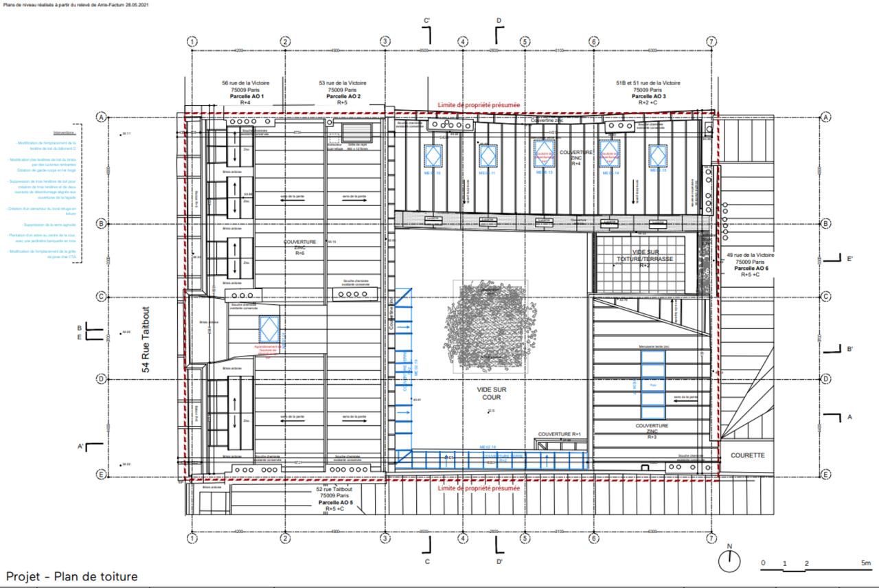
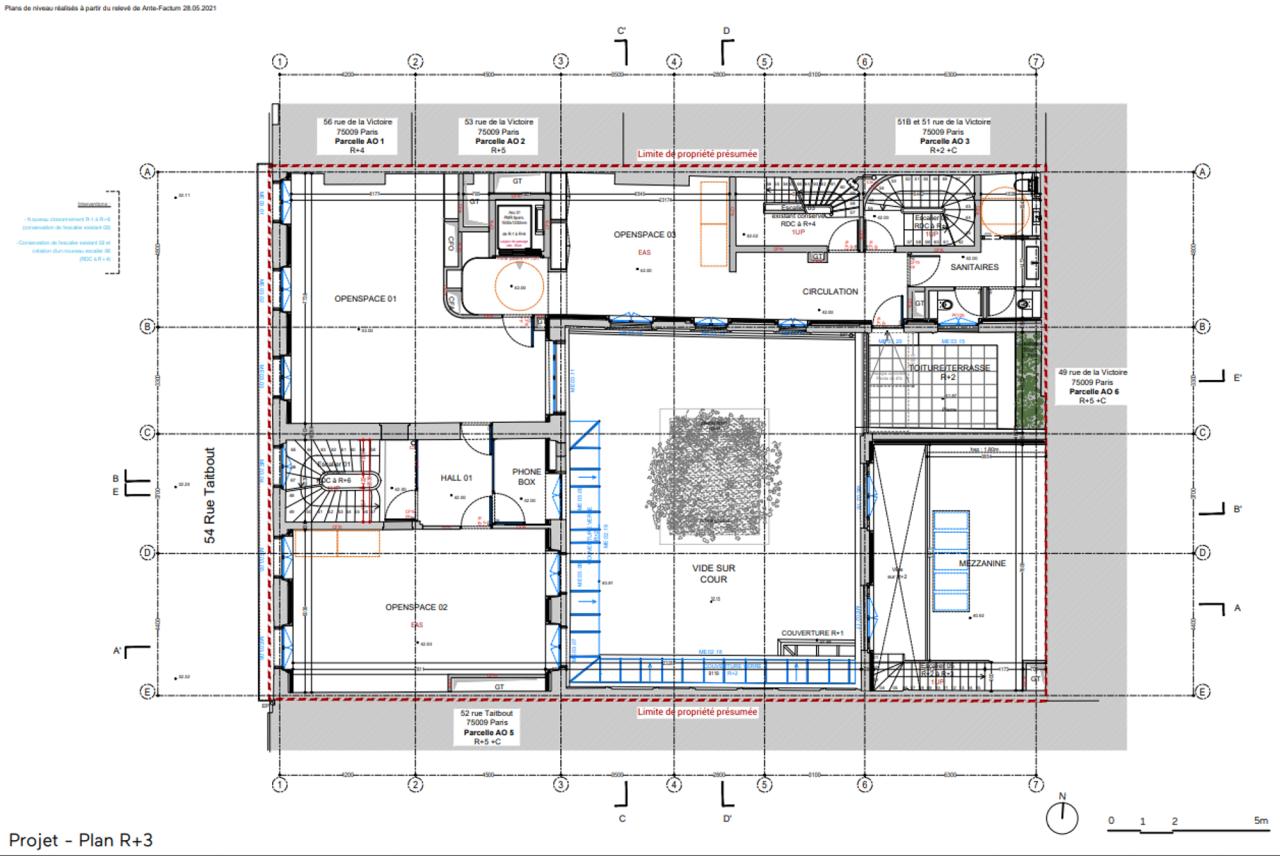
L'ensemble immobilier, constitué de 3 bâtiments, a connu plusieurs phases d'évolution principalement par surélévation :
Le bâtiment A sur rue est élevé sur 6 niveaux
Le bâtiment C sur cour est élevé sur 2 niveaux
Le bâtiment B qui relie les deux précédents possède 4 niveaux
Ils possèdent chacun un niveau de sous-sol.
Services & prestations
Aménagements
-
Accès Pers. Mobilité Réduite
-
Aménagement des bureaux : Cloisonnés/Ouverts
-
Effectif théorique : 101 personne(s) Commerces, 157 personne(s) Bureaux
-
Hall d'accueil : Indépendant
Equipements
-
Ascenseurs
-
Climatisation : Réversible
-
Production climatisation : Réseau urbain Fraîcheur de Paris
-
Source chauffage : Géothermie CPCU
-
Type de chauffage : Individuel
Extérieurs
-
Terrasses - jardins : Vaste cour intérieure
Normes, Certifications et Labels
-
Catégorie ERP : 5 RDC et R-1
-
Certification : BREEAM
Type / Etat du bâtiment
-
Etat de l'immeuble : Restructuré avec PC
-
Etat des locaux : Restructuré avec PC
-
Immeuble indépendant
Informations complémentaires
-
Double accès (par hall immeuble et via le porche), Entrée de 4m, Espace de réception au R-1
-
Espace extérieur de 3m










