




ROMANCE
38 Rue de Provence
75009 Paris
3 097 m²
Divisible dès 168 m²
Loyer sur demande
Disponibilité : 01/03/2026

Caroline DE MONCAN
Description
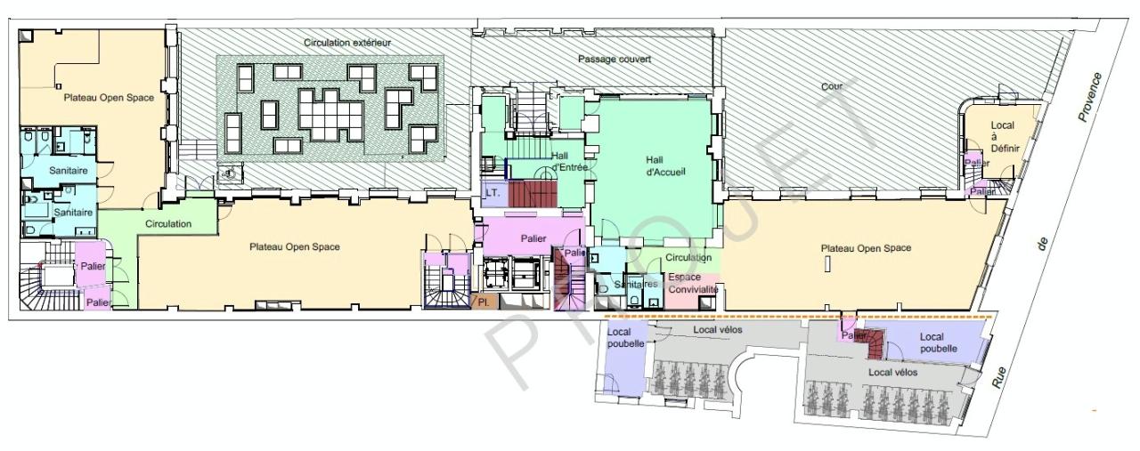
A toute proximité de Saint-Lazare, nous vous proposons un bel hôtel particulier indépendant de 3097 m² environ répartis sur 6 niveaux, comprenant une somptueuse salle de réception avec parquet et moulures historiques.
L'immeuble sera entièrement restructuré et bénéficiera d'un roof-top d'une centaine de m² et de deux cours végétalisées.
Capacitaire de 399 personnes.
La surface totale de bureaux avoisinera les 3097 m², sera entièrement réhabilité et atteindra un niveau d'exigence élevé, tant sur le plan environnemental et architectural, que sur le plan du bien-être de ses utilisateurs.
Les espaces de travail, agencés autour de deux cours intérieures verdoyantes, ont été conçus pour être adaptables, répondant ainsi aux besoins des entreprises soucieuses du bien-être de leurs employés, tout en respectant les normes internationales et les nouvelles pratiques de travail.
Des espaces de services et de nombreuses salles de réunion ont été spécialement conçus pour offrir des fonctionnalités complémentaires.
Services & prestations
Aménagements
-
Accès Pers. Mobilité Réduite : Monte personne
-
Aménagement des bureaux : Espaces Ouverts
-
Effectif théorique : 399 personne(s)
Equipements
-
Ascenseurs : 3
-
Climatisation : Réversible CPCU-Fraicheur de Paris
-
Douche : Au r-1
-
Plinthes techniques périphériques
-
Sol bureaux : Parquet
Prestations de service
-
Fitness : Possible au R-1
Extérieurs
-
Terrasses - jardins : 2 Cours intérieures végétalisées, Roof-top au R5, Terrasses au R4
Normes, Certifications et Labels
-
Certification : Autre certification, BREEAM, HQE Rénovation
Type / Etat du bâtiment
-
Etat de l'immeuble : Restructuré avec PC
-
Immeuble indépendant
Informations complémentaires
-
Salle de réception patrimoniale exceptionnelle, Salle de réception patrimoniale magnifique
-
Elévateur PMR RDC au R+1










