Que recherchez-vous ?
Quel est votre besoin ?





Créer une alerte
- Trier par
Afficher des points d'intérêts
- Afficher les points d'intérêts
Afficher des points d'intérêts
TransportsMétroRERBusTramwayGare ferroviaireAéroportVélo partagéTaxiCommerce & ServiceRestaurantParkingCentre commercialSupermarché et HypermarchéSupéretteBoulangerieCrècheBureau de posteBanqueStation serviceParc & JardinParc, Jardin et SquareHotelHotelSportSalle de sportStade & GymnaseSantéHôpitalMédecin généralisteMédecin spécialistePharmacieService PublicGendarmerieMairiePréfecture
- Paramétrer l'affichage
Actualiser la recherche quand je déplace la carte
Lorsque cette option est activée, les résultats de recherche s'actualisent en fonction du positionnement de la carte.Paramétrer la zone de distance
- Paramétrer la zone
Lorsque cette option est activée, une zone de distance s'affiche autour d'un point sélectionné.
Personnalisez et délimitez la zone de distance en fonction du moyen de locomotion. Par défaut, la zone est programmée à 5 min à pieds.
Moyen de locomotion :
en voitureen transportsà véloà piedsTemps de trajet :
annonces à la même adresse
À partir de
HT/HC/m²/an
À partir de
HT/HC/m²/an
Immobilier d'entreprise Chasselay (69380)
1 bien immobilier à vendre ou à louer et 39 à proximité.
Vente Local d'activité2 587 m²
(Divisible dès 224 m²)
à partir de 352 280 €
HT/HD
Informations :
- HT : Hors taxes
- HD : Hors droits de notaires
- Honoraires à la charge de l'acquéreur : 2% HT du prix HT/HD. à la signature de l'acte
Location Local d'activité1 028 m²
(Divisible dès 53 m²)
à partir de 120 €
HT/HC/m²/an
Informations :
- HT : Hors taxes
- HC : Hors charges locatives
- Honoraires à la charge de l'acquéreur : 20% HT du loyer HT/HC. à la signature du bail

74 m²
133 200 €
HT/HD
Informations :
- HT : Hors taxes
- HD : Hors droits de notaires
- Honoraires à la charge de l'acquéreur : 2.5% HT du prix HT/HD. à la signature de l'acte

190 m²
(Divisible dès 94 m²)
à partir de 220 900 €
HT/HD
Informations :
- HT : Hors taxes
- HD : Hors droits de notaires
- Honoraires à la charge de l'acquéreur : 2.5% HT du prix HT/HD. à la signature de l'acte
Vente Bureau246 m²
(Divisible dès 83 m²)
à partir de 222 523 €
HT/HD
Informations :
- HT : Hors taxes
- HD : Hors droits de notaires
- Honoraires à la charge de l'acquéreur : 2.5% HT du prix HT/HD. à la signature de l'acte
Location Local d'activité329 m²
120 €
HT/HC/m²/an
Informations :
- HT : Hors taxes
- HC : Hors charges locatives
- Honoraires à la charge de l'acquéreur : Nous consulter. à la signature du bail
Location Local d'activité463 m²
119 €
HT/HC/m²/an
Informations :
- HT : Hors taxes
- HC : Hors charges locatives
- Honoraires à la charge de l'acquéreur : 15% HT du loyer HT/HC. à la signature du bail
Vente Local d'activité329 m²
670 000 €
HT/HD
Informations :
- HT : Hors taxes
- HD : Hors droits de notaires
- Honoraires à la charge de l'acquéreur : Nous consulter. à la signature de l'acte
Location Local d'activité1 050 m²
55 €
HT/HC/m²/an
Informations :
- HT : Hors taxes
- HC : Hors charges locatives
- Honoraires à la charge de l'acquéreur : Nous consulter. à la signature du bail
Location Local d'activité482 m²
(Divisible dès 250 m²)
Loyer sur demande
Location Local d'activité2 060 m²
58 €
HT/HC/m²/an
Informations :
- HT : Hors taxes
- HC : Hors charges locatives
- Honoraires à la charge de l'acquéreur : 20% HT du loyer HT/HC. à la signature du bail
Vente Local d'activité2 060 m²
2 300 000 €
HT/HD
Informations :
- HT : Hors taxes
- HD : Hors droits de notaires
- Honoraires à la charge de l'acquéreur : Nous consulter. à la signature de l'acte
Vente Local d'activité1 810 m²
1 700 000 €
HT/HD
Informations :
- HT : Hors taxes
- HD : Hors droits de notaires
- Honoraires à la charge de l'acquéreur : 5% HT du prix HT/HD. à la signature de l'acte
Location Local d'activité2 894 m²
(Divisible dès 134 m²)
84 €
HT/HC/m²/an
Informations :
- HT : Hors taxes
- HC : Hors charges locatives
- Honoraires à la charge de l'acquéreur : Nous consulter. à la signature du bail
Vente Local d'activité4 266 m²
2 498 212 €
HT/HD
Informations :
- HT : Hors taxes
- HD : Hors droits de notaires
- Honoraires à la charge de l'acquéreur : 2.5% HT du prix HT/HD. à la signature de l'acte
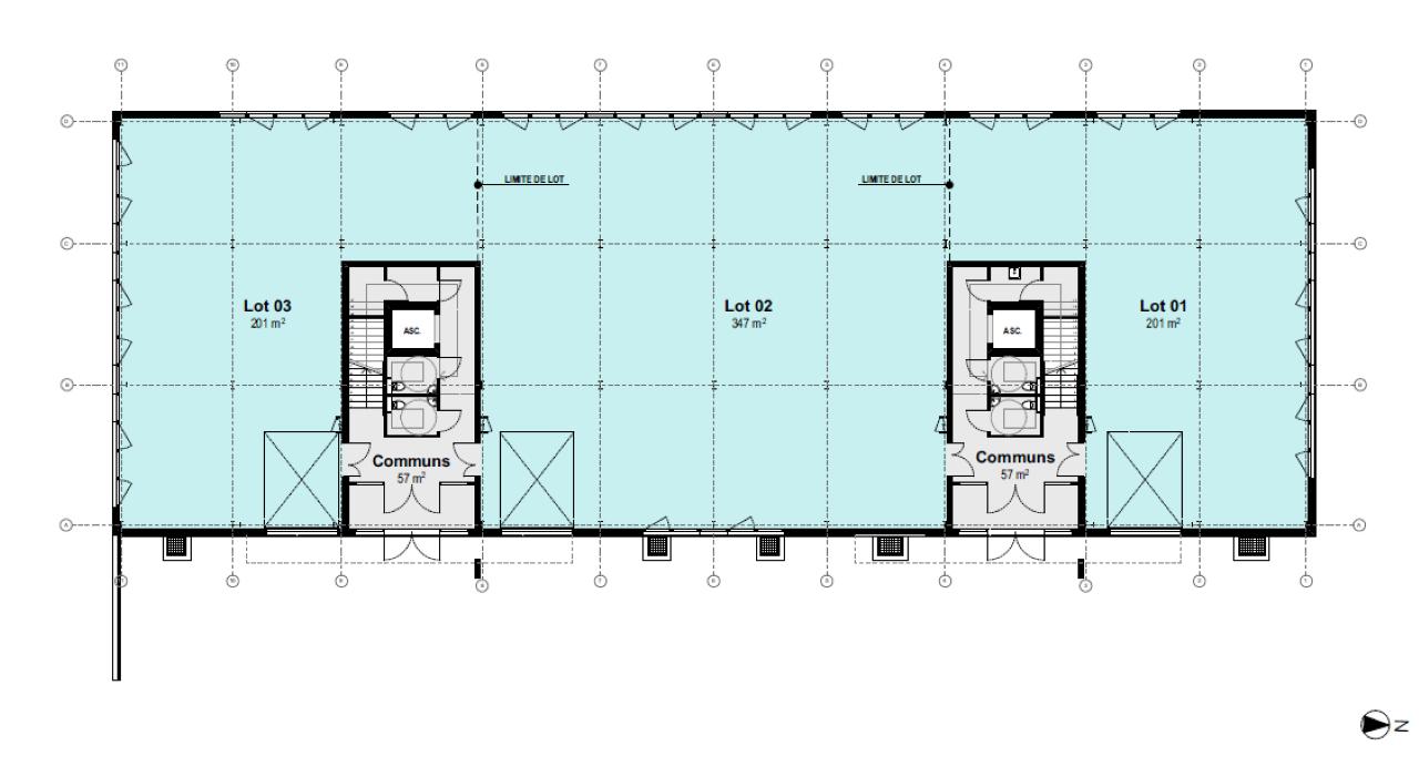
Location Entrepôt Classe B5 347 m²
Loyer sur demande
Location Bureau2 437 m²
(Divisible dès 168 m²)
à partir de 165 €
HT/HC/m²/an
Informations :
- HT : Hors taxes
- HC : Hors charges locatives
- Honoraires à la charge de l'acquéreur : 15% HT du loyer HT/HC. à la signature du bail
Location Bureau127 m²
170 €
HT/HC/m²/an
Informations :
- HT : Hors taxes
- HC : Hors charges locatives
- Honoraires à la charge de l'acquéreur : 15% HT du loyer HT/HC. à la signature du bail
Location Local d'activité2 375 m²
(Divisible dès 211 m²)
111 €
HT/HC/m²/an
Informations :
- HT : Hors taxes
- HC : Hors charges locatives
- Honoraires à la charge de l'acquéreur : 15% HT du loyer HT/HC. à la signature du bail
Location Bureau3 089 m²
(Divisible dès 69 m²)
à partir de 159 €
HT/HC/m²/an
Informations :
- HT : Hors taxes
- HC : Hors charges locatives
- Honoraires à la charge de l'acquéreur : 15% HT du loyer HT/HC. à la signature du bail
Location Local d'activité290 m²
(Divisible dès 142 m²)
155 €
HT/HC/m²/an
Informations :
- HT : Hors taxes
- HC : Hors charges locatives
- Honoraires à la charge de l'acquéreur : Nous consulter. à la signature du bail
Location Local d'activité442 m²
136 €
HT/HC/m²/an
Informations :
- HT : Hors taxes
- HC : Hors charges locatives
- Honoraires à la charge de l'acquéreur : 15% HT du loyer HT/HC. à la signature du bail
Vente Local d'activité442 m²
900 000 €
HT/HD
Informations :
- HT : Hors taxes
- HD : Hors droits de notaires
- Honoraires à la charge de l'acquéreur : 5% HT du prix HT/HD. à la signature de l'acte
Vente Local d'activité496 m²
1 326 000 €
HT/HD
Informations :
- HT : Hors taxes
- HD : Hors droits de notaires
- Honoraires à la charge de l'acquéreur : 4% HT du prix HT/HD. à la signature de l'acte

283 m²
452 800 €
HT/HD
Informations :
- HT : Hors taxes
- HD : Hors droits de notaires
- Honoraires à la charge de l'acquéreur : 2.5% HT du prix HT/HD. à la signature de l'acte
Location Bureau345 m²
(Divisible dès 54 m²)
à partir de 140 €
HT/HC/m²/an
Informations :
- HT : Hors taxes
- HC : Hors charges locatives
- Honoraires à la charge de l'acquéreur : 15% HT du loyer HT/HC. à la signature du bail
Vente Bureau345 m²
(Divisible dès 54 m²)
à partir de 146 988 €
HT/HD
Informations :
- HT : Hors taxes
- HD : Hors droits de notaires
- Honoraires à la charge de l'acquéreur : 3% HT du prix HT/HD. à la signature de l'acte
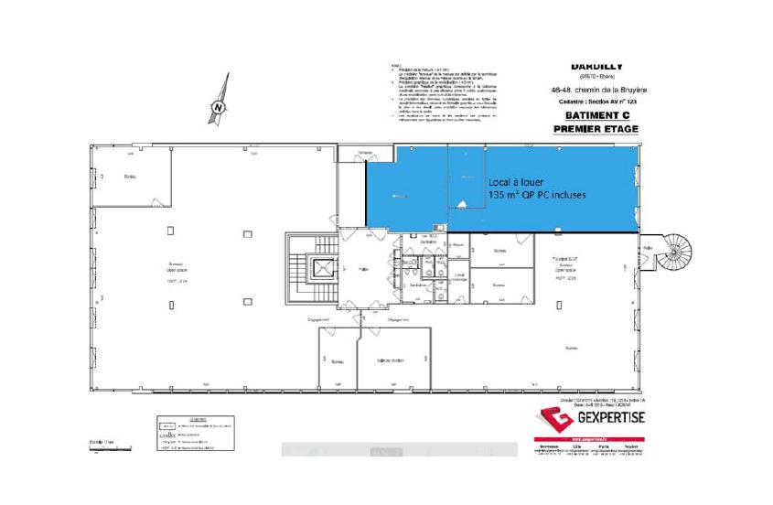
VidéoLocation Bureau1 183 m²
(Divisible dès 137 m²)
à partir de 180 €
HT/HC/m²/an
Informations :
- HT : Hors taxes
- HC : Hors charges locatives
- Honoraires à la charge de l'acquéreur : Nous consulter. à la signature du bail
VidéoLocation Bureau830 m²
(Divisible dès 144 m²)
à partir de 180 €
HT/HC/m²/an
Informations :
- HT : Hors taxes
- HC : Hors charges locatives
- Honoraires à la charge de l'acquéreur : Nous consulter. à la signature du bail
VidéoVente Bureau1 183 m²
(Divisible dès 137 m²)
à partir de 135 700 €
HT/HD
Informations :
- HT : Hors taxes
- HD : Hors droits de notaires
- Honoraires à la charge de l'acquéreur : Nous consulter. à la signature de l'acte
Location Bureau1 501 m²
(Divisible dès 189 m²)
à partir de 145 €
HT/HC/m²/an
Informations :
- HT : Hors taxes
- HC : Hors charges locatives
- Honoraires à la charge de l'acquéreur : 15% HT du loyer HT/HC. à la signature du bail
Vente Local d'activité1 625 m²
(Divisible dès 140 m²)
à partir de 249 001 €
HT/HD
Informations :
- HT : Hors taxes
- HD : Hors droits de notaires
- Honoraires à la charge de l'acquéreur : 3% HT du prix HT/HD. à la signature de l'acte
Location Bureau366 m²
(Divisible dès 127 m²)
à partir de 130 €
HT/HC/m²/an
Informations :
- HT : Hors taxes
- HC : Hors charges locatives
- Honoraires à la charge de l'acquéreur : 15% HT du loyer HT/HC. à la signature du bail
Location Bureau235 m²
135 €
HT/HC/m²/an
Informations :
- HT : Hors taxes
- HC : Hors charges locatives
- Honoraires à la charge de l'acquéreur : 15% HT du loyer HT/HC. à la signature du bail
Vente Bureau235 m²
517 000 €
HT/HD
Informations :
- HT : Hors taxes
- HD : Hors droits de notaires
- Honoraires à la charge de l'acquéreur : 3% HT du prix HT/HD. à la signature de l'acte
Location Bureau1 097 m²
(Divisible dès 180 m²)
à partir de 130 €
HT/HC/m²/an
Informations :
- HT : Hors taxes
- HC : Hors charges locatives
- Honoraires à la charge de l'acquéreur : Nous consulter. à la signature du bail
Vente Bureau1 097 m²
(Divisible dès 180 m²)
Prix sur demande
VidéoLocation Bureau1 439 m²
(Divisible dès 281 m²)
à partir de 165 €
HT/HC/m²/an
Informations :
- HT : Hors taxes
- HC : Hors charges locatives
- Honoraires à la charge de l'acquéreur : 15% HT du loyer HT/HC. à la signature du bail
Location Bureau345 m²
(Divisible dès 50 m²)
à partir de 170 €
HT/HC/m²/an
Informations :
- HT : Hors taxes
- HC : Hors charges locatives
- Honoraires à la charge de l'acquéreur : 15% HT du loyer HT/HC. à la signature du bail
Location Local d'activité2 182 m²
(Divisible dès 356 m²)
103 €
HT/HC/m²/an
Informations :
- HT : Hors taxes
- HC : Hors charges locatives
- Honoraires à la charge de l'acquéreur : Nous consulter. à la signature du bail

Sélectionner jusqu’à 5 biens pour comparer
Comparateur
| Annuler la suppression |
Photos |
Prix |
Surface |
Capacité |
Carte |
Personnaliser la zone de distance
Personnalisez et délimitez la zone de distance en fonction du moyen de locomotion. Par défaut, la zone est programmée à 5 mn à pieds.
Personnaliser la zone de distance
Personnalisez et délimitez la zone de distance en fonction du moyen de locomotion. Par défaut, la zone est programmée à 5 mn à pieds.
Moyen de locomotion :
Temps de trajet :

Location et vente bien immobilier Chasselay : tout savoir
Vous pourrez développer votre activité dans vos nouveaux biens immobiliers à Chasselay après avoir consulté les annonces qui correspondent à vos besoins professionnels.
Consultez dès maintenant la liste des biens immobiliers à vendre ou louer de notre site.






































































































































































































































































































































































































































































































































































































































































































































