




Location Bureau 381 m²
75001 Paris
381 m²
1 100 €
HT/HC/m²/an
Disponibilité : 01/06/2026

Alexis UNOULE
Description
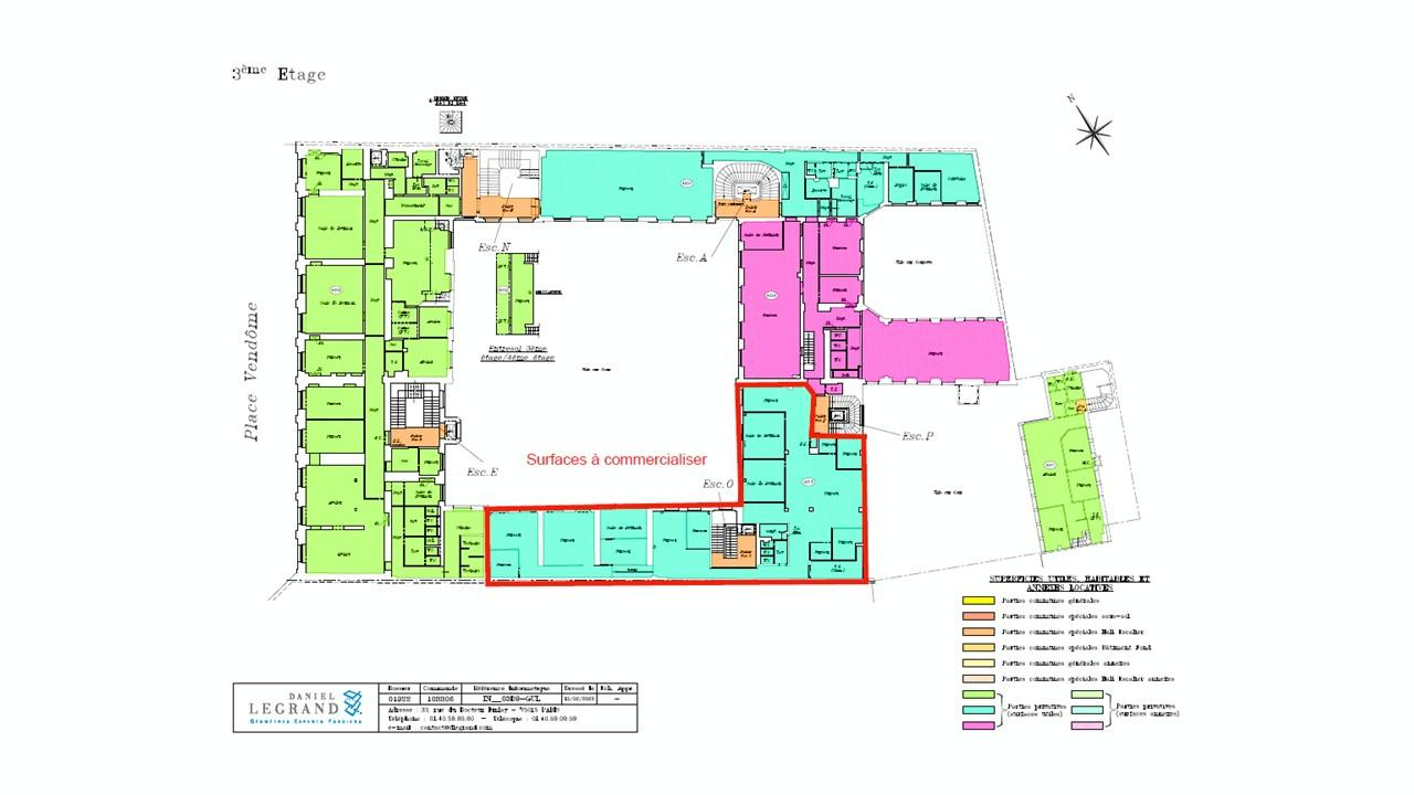
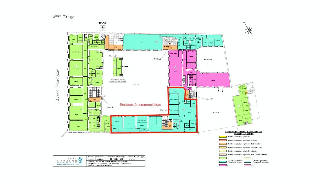
Localisée au cœur du 1er arrondissement sur la très prestigieuse Place Vendôme, BNP PRE vous propose à la location une surface de bureaux de 380,9 m².
La surface se situe au 3ème étage d'un immeuble de grand standing donnant sur une très belle cour végétalisée.
Le plateau dispose de peu de contraintes porteuses et s'aménage très facilement. Places de parking dans l'immeuble.
Disponibilité juin 2026.
A visiter sans tarder !!!
Services & prestations
Aménagements
-
Hall d'accueil
Equipements
-
Ascenseurs : 2
-
Climatisation : Réversible Par ventilo-convecteurs
-
Type de chauffage : Par ventilo-convecteurs
Prestations de service
-
Parking : 140 Places En sous-sol
-
Sécurité : Contrôle d'accès et gardiennage
Extérieurs
-
Terrasses - jardins : Cour intérieure végétalisée
Type / Etat du bâtiment
-
Etat de l'immeuble : Seconde main
-
Etat des locaux : Très bon état










