



5 RUE ETIENNE MARCEL
75001 Paris
99 m²
840 €
HT/HC/m²/an
Disponibilité : Immédiate

Elliott KASBY
Description
Loft Industriel - Bureaux
Au sein d'un bel immeuble , BNP Paribas RE vous propose une superbe surface de bureaux à louer très lumineuse, de type loft industriel.
Atypique et plein de charme.
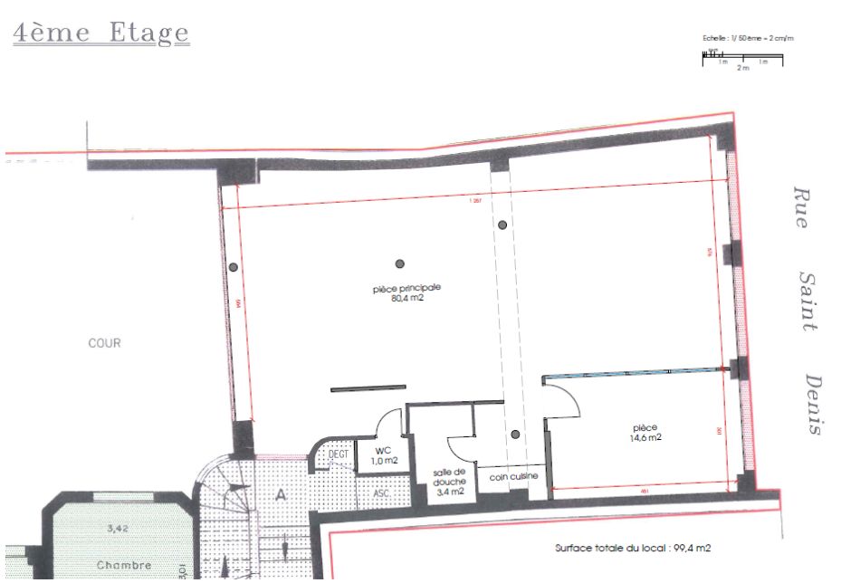
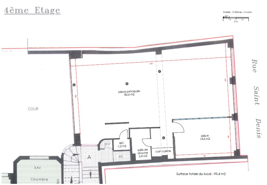
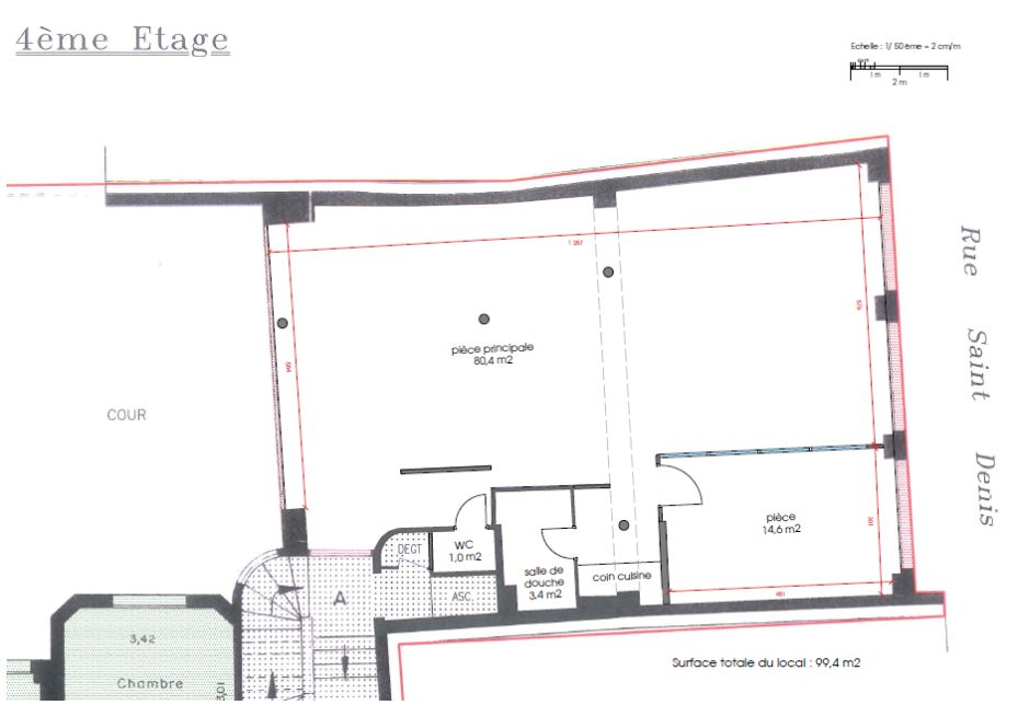
Distribution des locaux :
Un très grand open-space
Une salle de réunion ou bureau cloisonné
Une cuisine équipée
sanitaires
Très bonne flexibilité d'aménagement, surface efficace.
Belle exposition (Est-Ouest) Locaux traversants.
Surface en cours de rénovation par le bailleur.
Au coeur d'un emplacement Premium, BNPP RE vous propose des bureaux parfaitement fonctionnels et exploitables.
Le plan optimisé offre une organisation efficace des espaces de travail, adaptée à une équipe exigeante recherchant rationalité et performance.
Localisation centrale, dynamique et très bien desservie, à proximité immédiate des commerces, transports et services.
Services & prestations
Aménagements
-
Aménagement des bureaux : 1 bureau + 1 open space
-
Sanitaires : Privatif(s)
Equipements
-
Ascenseurs : 1
-
Distribution chauffage
-
Douche
-
Fenêtres
-
Sol bureaux : Parquet
-
Source chauffage : Electrique
-
Type de chauffage : Individuel
Type / Etat du bâtiment
-
Etat de l'immeuble : Etat d'usage Très bon
-
Etat des locaux : Etat d'usage Très bon
-
Immeuble copropriété
Informations complémentaires
-
Kitchenette










