




Location Bureau 160 m²
75004 Paris
160 m²
650 €
HT/HC/m²/an
Disponibilité : 26/02/2026

Quentin THORE
Description
Location Bureau Paris 4 Beaubourg Châtelet Les Halles Hôtel de Ville Climatisation
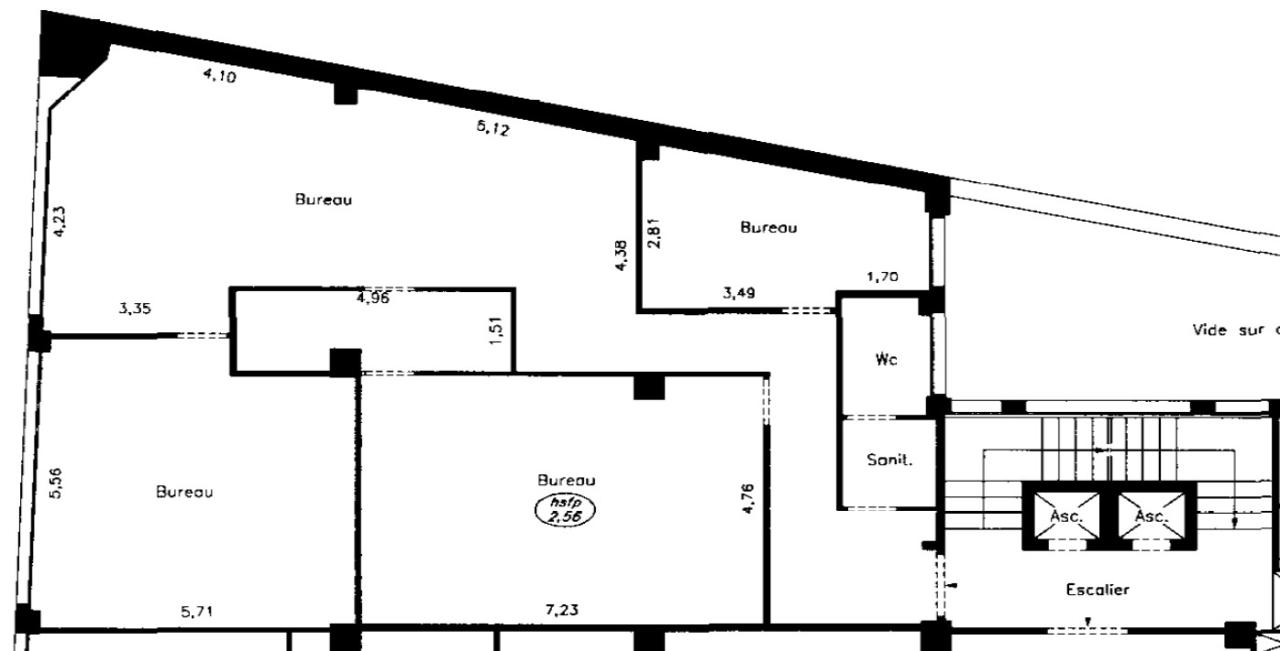
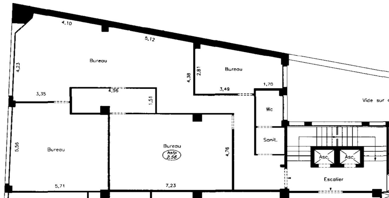
BNP Paribas Real Estate a le plaisir de vous présenter en tri-exclusivité, une surface de bureaux idéalement située à deux pas de l’Hôtel de Ville et de Châtelet-Les Halles. Au sein d'un très bel immeuble d'angle, vous trouverez au 5ème étage accessible par 2 ascenseurs, une surface d'environ 160 m² disposant d'un espace accueil, 4 bureaux cloisonnés et lumineux, une grande salle de réunion, un espace cuisine et 2 sanitaires dont 1 PMR. Le cloisonnement amovible permettra de s'adapter à vos besoins.
Bureaux à louer Rue Beaubourg / Hôtel de Ville Paris 4e
À deux pas de l'Hôtel de Ville et de Châtelet-Les Halles, dans un immeuble bien entretenu, bureaux lumineux et au calme situés au 5e étage avec accès par deux ascenseurs.
Ces locaux se composent de :
- Un espace d'accueil,
- 4 bureaux indépendants,
- Une grande salle de réunion (14 places),
- Un espace cuisine aménagé,
- 2 sanitaires, dont 1 PMR.
Bureaux climatisés (climatisation réversible). Environnement calme, lumineux et fonctionnel.
Emplacement recherché, à proximité immédiate des métros Hôtel de Ville, Rambuteau et Châtelet-Les Halles, au coeur du Marais et du centre de Paris.
Idéal pour société, cabinet ou agence souhaitant allier confort de travail et adresse prestigieuse.
Services & prestations
Aménagements
-
Accueil
-
Aménagement des bureaux : Cloisonnés Cloison amovible
-
Bureaux cloisonnés : 4
-
Complexe Salle de réunion : 1 salle(s)
-
Sanitaires : 2 Privatif(s) Dont un aux normes PMR
Equipements
-
Ascenseurs : 2
-
Climatisation : Réversible
-
Câblage informatique : Du locataire sortant, à auditer
-
Eclairage Bureaux : Luminaires encastrés Pavé LED
-
Faux plafond : Dal. fibres minéral.
-
Sol bureaux : Dls.thermoplastiques
-
Type de chauffage : Collectif
Hauteurs
-
Hauteur sous-plafond : 2,56 mètre(s)
Prestations de service
-
Sécurité : Contrôle d'accès
Type / Etat du bâtiment
-
Etat de l'immeuble : Seconde main
-
Orientation façade : SUR RUE










