




82-92 Rue Réaumur
75002 Paris
1 452 m²
850 €
HT/HC/m²/an
Disponibilité : 31/01/2026

Sophie HENON
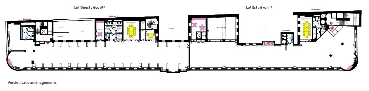
Description
Situé rue Réaumur, au 5ème étage de ce bel immeuble de style Eiffel, nous vous proposons à la location un grand plateau à usage de bureaux d’environ 1 452 m².
Celui-ci fera l’objet d’une rénovation complète et sera livré en espace ouvert.
Le plateau est composé d'espaces de travail classiques et aussi, côté Montmartre, de 2 grands volumes ATYPIQUES avec verrières et poutres apparentes.
Vues exceptionnelles sur tout PARIS.
Paris 2ème, entre le Métro Sentier et Réaumur Sébastopol.
Situé rue Réaumur, au 5ème étage de ce bel immeuble de style Eiffel, nous vous proposons à la location un grand plateau à usage de bureaux d'environ 1 452 m².
Celui-ci fera l'objet d'une rénovation complète et sera livré en espace ouvert.
Le plateau est composé d'espaces de travail classiques et aussi, côté Montmartre, de 2 grands volumes ATYPIQUES avec verrières et poutres apparentes.
Vues exceptionnelles sur tout PARIS.
- Climatisation réversible
- Faux plafond
- Faux plancher
Plateau de bureau
- Le curage du plateau
- La création d'un réseau aéraulique (CTA double flux)
- Le remplacement des ventilo-convecteurs
- La création et rénovation des blocs sanitaires
- Le remplacement de la moquette, du faux plafond, du plancher technique, la mise en peinture
Immeuble
- Rénovation de la marquise réalisée en 2023
Parties communes
- Hall d'accueil rue DUSSOUBS récemment rénové
- Les paliers côté DUSSOUBS seront rafraîchis
- Les parties communes côté rue SAINT DENIS feront l'objet d'une rénovation courant 2025.
TRANSPORTS EN COMMUN :
- Métro Sentier - ligne 3
- Métro Réaumur Sébastopol - lignes 3 et 4
- Métro Bonne Nouvelle - lignes 8 et 9
DISPONIBILITE : Janvier 2026
Services & prestations
Aménagements
-
Aménagement des bureaux : Espaces Ouverts
-
Hall d'accueil : Collectif
Equipements
-
Ascenseurs
-
Climatisation : Réversible
-
Faux plafond
-
Faux plancher
-
Sol bureaux : Moquette
-
Type de chauffage : Collectif
Prestations de service
-
Parking : Sous l'immeuble
-
Sécurité : Contrôle d'accès et digicode
Type / Etat du bâtiment
-
Etat des locaux : Rénové
-
Type d'immeuble : En pierre de taille
Informations complémentaires
-
Bureaux en 1er jour










