




32 Rue de Paradis
75010 Paris
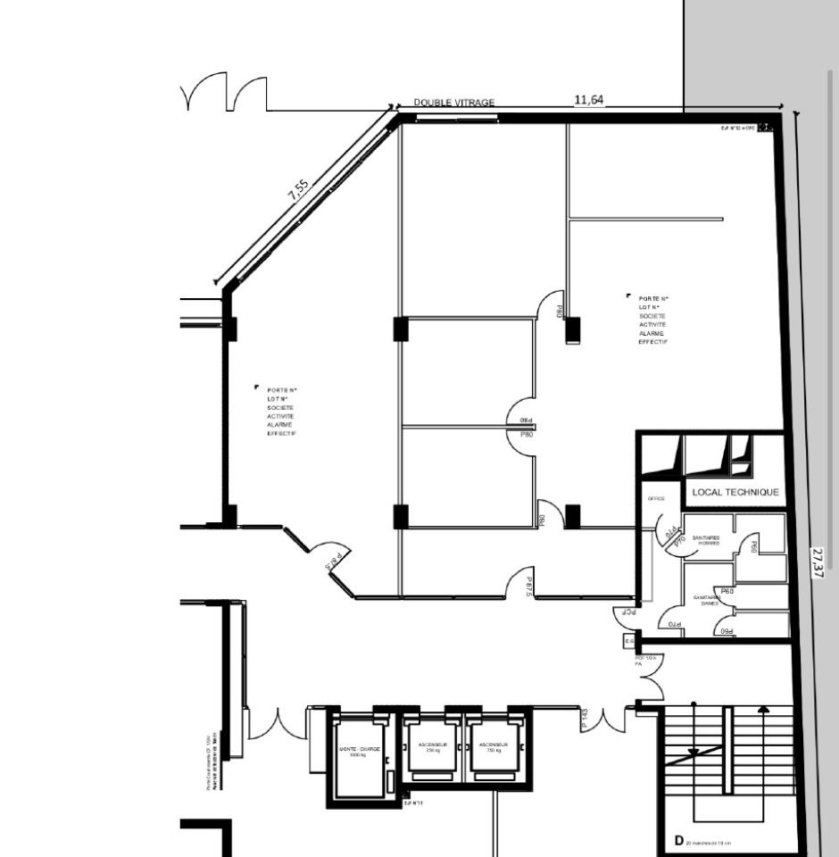
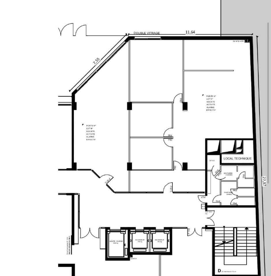
225 m²
450 €
HT/HC/m²/an
Disponibilité : Immédiate

Quentin THORE
Description
BNP Paribas Real Estate vous propose à la location une surface de bureaux de 225 m² dans immeuble emblématique du secteur Hauteville/Paradis. Les locaux en très bon état présentent une belle hauteur sous plafond et une souplesse d'aménagement pour le futur utilisateur. L'immeuble est PMR et propose une hôtesse d'accueil ainsi que des parkings en sous-sol.
Services et Prestations :
Immeuble tertiaire de bon standing
Accueil
Gardienne
Accès sécurisé
Parties communes en bon état
Ascenseurs
Monte-charge
Surface lumineuse
Cuisine privative
PVC au sol
Climatisation réversible
Surface : 225 m²
Loyer : 101 250/an HT HC
Charges : 21 984/an HT Incluant l'accueil, pc sécurité, ascenseurs, chauffage, climatisation, électricité, entretien des parties communes
Taxe foncière : 4 900/an
Taxe bureaux : 5 900/an
Honoraires de commercialisation de BNP : 30% HT du loyer annuel HT HC à la charge du preneur
Frais de rédaction d'acte : à prévoir
Coordonnées:
Quentin Thoré
07 85 63 05 18
01 49 93 70 46
quentin.thore@realestate.bnpparibas
Services & prestations
Aménagements
-
Accueil : 1 Hôtesses
-
Accès Pers. Mobilité Réduite
-
Aménagement des bureaux : Cloisonnés/Ouverts Décloisonnement possible
-
Sanitaires
Equipements
-
Ascenseurs : PMR
-
Climatisation : Réversible Immeuble
-
Douche
-
Eclairage Bureaux : Luminaires suspendus
-
Monte-charge
-
Sol bureaux : Dls.thermoplastiques Imitation parquet
-
Type de chauffage : Collectif
Prestations de service
-
Parking : Possible dans l'immeuble en sus
-
Sécurité : Contrôle d'accès télésurveillance, gardiennage, pc sécurité
Type / Etat du bâtiment
-
Etat de l'immeuble : Etat d'usage
-
Etat des locaux : Rénové plateau lumineux sans contrainte porteuse
-
Immeuble copropriété
Informations complémentaires
-
Cloisonnement léger permettant une souplesse d'aménagement
-
Locaux rationnels, modulables










