

38 Avenue de New York
75116 Paris
2 976 m²
900 €
HT/HC/m²/an
Disponibilité : 30/06/2026

Caroline DE MONCAN
Description
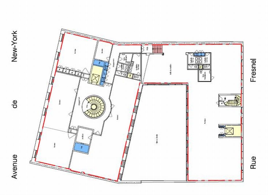
Paris 16ème, entre l'avenue d'Iéna et le Trocadéro, au 38-40 avenue de New York, nous vous proposons à la location ce superbe ensemble immobilier composé de deux bâtiments reliés entre eux à chaque niveau.
LOCATION DE BUREAUX PARIS 16
IMMEUBLE INDEPENDANT
2916 m² ENVIRON DE BUREAUX A LOUER
TERRASSES ACCESSIBLES
SITUATION ET DESSERTE
Emplacement exceptionnel
Proximité Trocadéro et Iéna
PRESTATIONS
Très bel ensemble immobilier
Climatisation réversible
Faux plafond
Plinthes techniques périphériques
Contrôle d'accès
Accès PMR
2 ascenseurs
57 parkings en sous-sol
Archives en sous-sol
Jardin au R-1
Rooftop au R+3 sur l'arrière
Terrasse en toiture du bâtiment avant
DISPONIBILITE : JUIN 2026
Services & prestations
Aménagements
-
Accueil
-
Aménagement des bureaux : Cloisonnés/Ouverts
-
Hall d'accueil : En poirier et marbre
Equipements
-
Ascenseurs : 2
-
Climatisation : Réversible Par ventilo-convecteurs
-
Faux plafond
-
Plinthes techniques périphériques
Prestations de service
-
Parking : 57 Places
-
Sécurité : Contrôle d'accès (pavillon 38 m² )
Extérieurs
-
Terrasses - jardins : 2 terrasses panoramiques vues sur Paris
Type / Etat du bâtiment
-
Etat de l'immeuble : Rénové
-
Type d'immeuble : Hôtel particulier










