




31-33 Avenue de Wagram
75017 Paris
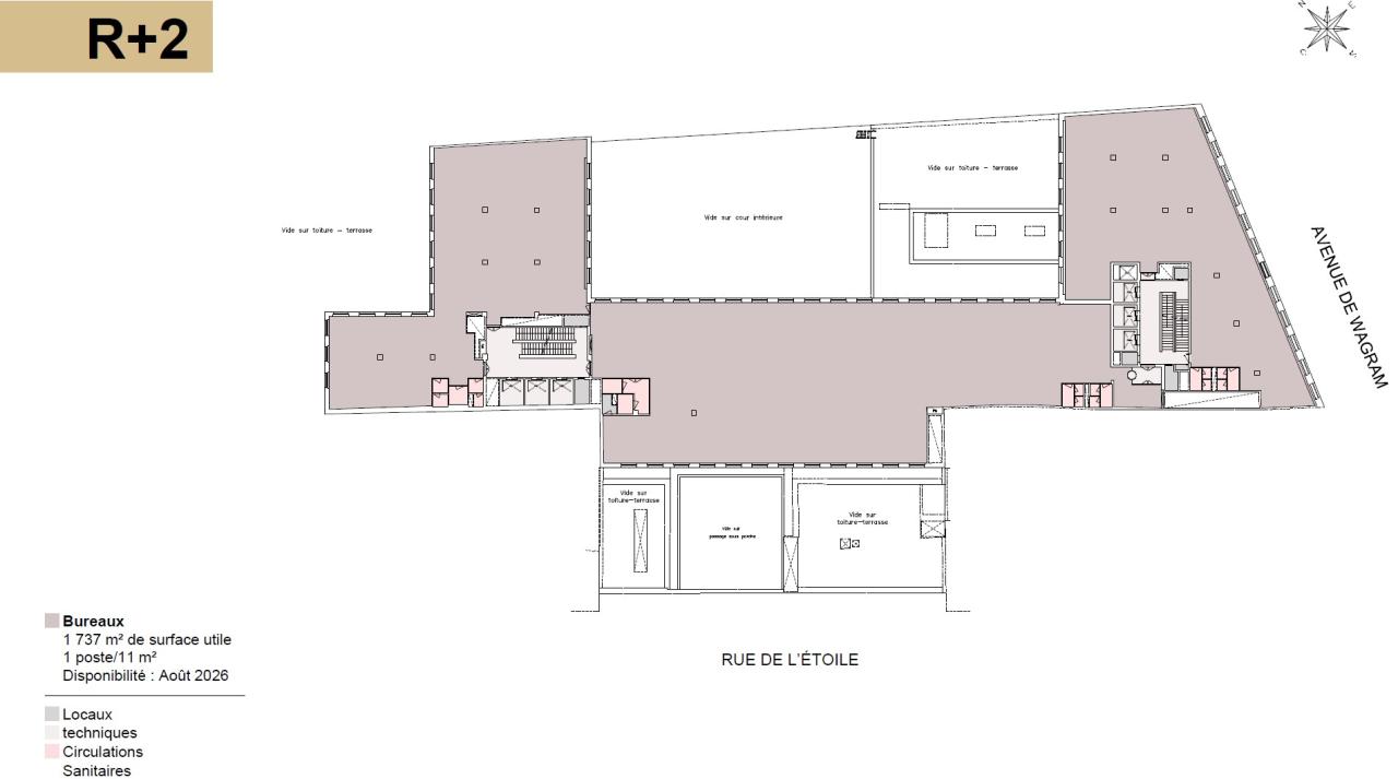
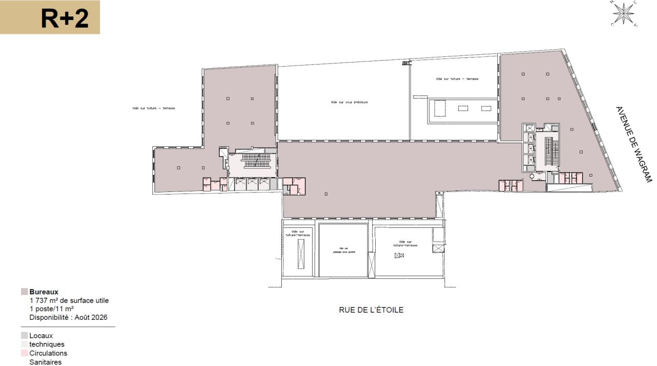
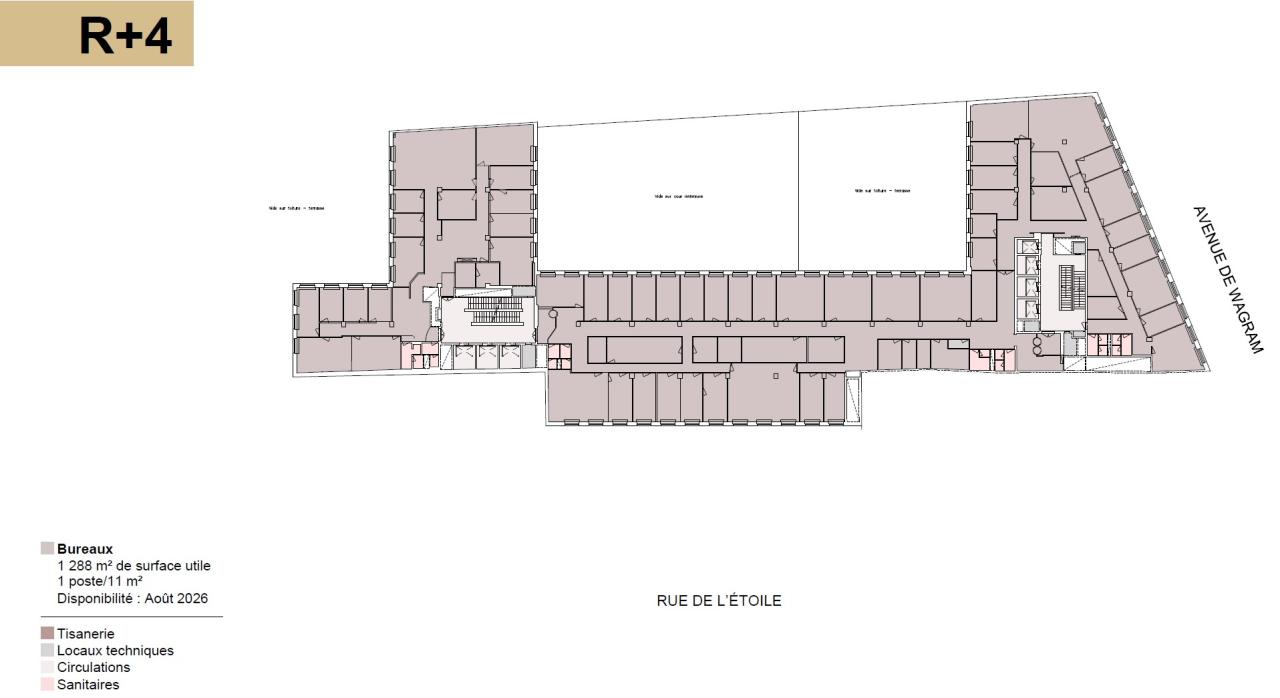
3 543 m²
Divisible dès 142 m²
Loyer sur demande
Disponibilité : 01/08/2026

Aurelien CHERON
Description
À toute proximité de la place de l‘Etoile, dans un immeuble de standing avec hôtesse d'accueil, nous vous proposons à la location un grand plateau de bureaux d'une superficie d'environ 3542 m² divisibles à partir de 141 m²
Quartier Central des Affaires
LOCATION DE BUREAUX PARIS 17
GRANDS PLATEAUX
Entre la place de l'Etoile et la place des Ternes
RER A : Charles de Gaulle Etoile
Immeuble d'architecture moderne
3542 m² de BUREAUX A LOUER
Climatisation, parkings, hôtesse d'accueil
Disponibilité : Aout 2026 et Janvier 2027
Services & prestations
Aménagements
-
Accueil : Hôtesses
-
Accès Pers. Mobilité Réduite
-
Aménagement des bureaux : Cloisonnés/Ouverts
-
Hall d'accueil : Collectif
Equipements
-
Ascenseurs : 6 2 triplex
-
Climatisation
-
Câblage informatique
-
Distribution climatisation : Ventilo convecteur en plafonnier
-
Eclairage Bureaux : Luminaires encastrés
-
Faux plafond : Dal. fibres minéral.
-
Plinthes techniques périphériques
-
Production climatisation : Autonome Groupe froid en toiture
-
Sol bureaux
-
Source chauffage : Gaz
-
Type de chauffage : Collectif
Prestations de service
-
Parking : 46 Places
Type / Etat du bâtiment
-
Etat de l'immeuble : Seconde main
-
Etat des locaux : Très bon état
-
Orientation façade : SUR RUE
-
Type d'immeuble : Plateau Sup 1000m










